BẢN ĐỒ SỐ SÀI GÒN
                Dịch vụ nhà đất
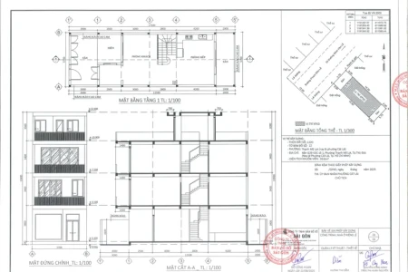
            Xin giấy phép xây dựng nhà 3 tầng tại TP. Thủ Đức, TP.HCM – BK-Saigon
BK-Saigon chuyên xin giấy phép xây dựng nhà 3 tầng tại TP. Thủ Đức, TP.HCM, hỗ trợ khảo sát, thiết kế bản vẽ, lập hồ sơ, nộp và nhận kết quả nhanh. Dịch vụ trọn gói – nhanh – chuẩn – đúng pháp luật, cam kết ra giấy phép chỉ trong 5–7 ngày, chi phí rõ ràng, tư vấn miễn phí.
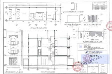
                            Xin giấy phép xây dựng nhà cấp 4 tại TP. Thủ Đức, TP.HCM – BK-Saigon
BK-Saigon – đơn vị chuyên xin giấy phép xây dựng nhà cấp 4 tại TP. Thủ Đức, TP.HCM. Hỗ trợ khảo sát, thiết kế bản vẽ, lập hồ sơ, nộp và nhận giấy phép nhanh chóng. Dịch vụ trọn gói – nhanh – chuẩn – đúng pháp luật, giúp bạn ra giấy phép trong 10–15 ngày, tiết kiệm thời gian và chi phí.
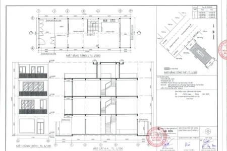
                            Hồ sơ xin giấy phép xây dựng tại TP. Thủ Đức, TP.HCM–BK-Saigon hỗ trợ trọn gói
BK-Saigon – chuyên hồ sơ xin giấy phép xây dựng tại TP. Thủ Đức, TP.HCM. Hỗ trợ kiểm tra quy hoạch, thiết kế bản vẽ, nộp hồ sơ và nhận kết quả nhanh. Dịch vụ trọn gói – nhanh – chuẩn – đúng pháp luật, ra giấy chỉ trong 5–7 ngày, chi phí minh bạch, tư vấn miễn phí.
                            Dịch vụ cấp phép xây dựng TP. Thủ Đức, TP.HCM – BK-Saigon
BK-Saigon – đơn vị hàng đầu trong lĩnh vực cấp phép và xin giấy phép xây dựng TP. Thủ Đức, TP.HCM. Hỗ trợ hồ sơ, bản vẽ, kiểm tra quy hoạch, nộp & nhận kết quả tận nơi. Dịch vụ trọn gói, nhanh chóng, uy tín, chi phí hợp lý. Hotline: 0977 960 616 (Mr. Hoan).
                            Dịch vụ xin phép xây dựng nhà trọ tại TP. Thủ Đức – BK-Saigon
BK-Saigon – đơn vị hàng đầu chuyên xin giấy phép xây dựng nhà trọ TP. Thủ Đức, TP.HCM. Dịch vụ trọn gói, uy tín, ra giấy nhanh chỉ trong 5–7 ngày. Tư vấn miễn phí – hỗ trợ hồ sơ, bản vẽ, nộp & nhận kết quả tận nơi. Hotline: 0977 960 616 (Mr. Hoan).
                            Dịch vụ xin giấy phép xây dựng phường Bình Hưng Hòa, TP.HCM trọn gói
Cần xin giấy phép xây dựng tại phường Bình Hưng Hòa, TP.HCM? BK-Saigon chuyên xử lý hồ sơ, thiết kế bản vẽ, nộp và nhận giấy phép trọn gói. Dịch vụ nhanh, chi phí minh bạch, tư vấn miễn phí, cam kết ra giấy phép xây dựng trong 5–7 ngày – đúng quy định, đúng tiến độ.
                            Dịch vụ xin giấy phép xây dựng phường Bình Trị Đông, TP.HCM trọn gói
Dịch vụ xin giấy phép xây dựng tại phường Bình Trị Đông, TP.HCM? BK-Saigon chuyên xử lý hồ sơ, thiết kế bản vẽ và đại diện nộp – nhận kết quả nhanh. Dịch vụ trọn gói, chi phí minh bạch, tư vấn miễn phí. Cam kết ra giấy phép xây dựng chỉ trong 5–7 ngày làm việc.
                            Hướng dẫn chi tiết xin giấy phép xây dựng nhà ở Thủ Đức |BK-SAIGON
Tìm hiểu thủ tục, hồ sơ và chi phí xin giấy phép xây dựng nhà ở Thủ Đức mới nhất theo quy định của TP.HCM. BK-Saigon cung cấp dịch vụ xin phép xây dựng trọn gói – tư vấn quy hoạch, thiết kế bản vẽ, nộp hồ sơ và nhận kết quả tận nơi. Giúp công trình của bạn được cấp phép nhanh – đúng luật – hợp pháp 100%.
                            Hướng Dẫn Xin Giấy Phép Xây Dựng Tại TP. Thủ Đức, TP.HCM | BK-Saigon
BK-Saigon chia sẻ hướng dẫn xin giấy phép xây dựng tại TP. Thủ Đức, TP.HCM đầy đủ và thực tế. Hỗ trợ tư vấn quy hoạch, thiết kế bản vẽ, soạn hồ sơ và nộp cấp phép nhanh chóng. Dịch vụ trọn gói – minh bạch – đúng pháp luật, giúp công trình của bạn khởi công hợp lệ, tiết kiệm thời gian và chi phí.
                            Danh Sách Công Ty Xin Giấy Phép Xây Dựng Tại TP. Thủ Đức | BK-Saigon
BK-Saigon nằm trong top đầu danh sách công ty xin giấy phép xây dựng tại TP. Thủ Đức, chuyên cung cấp dịch vụ trọn gói, uy tín, minh bạch. Hỗ trợ tư vấn quy hoạch, thiết kế bản vẽ, soạn hồ sơ và nộp cấp phép nhanh. Cam kết duyệt hồ sơ lần đầu – chi phí hợp lý – đúng pháp luật.
                            BK-Saigon nhà thầu xin giấy phép xây dựng TP. Thủ Đức uy tín, trọn gói
Bản đồ số Sài Gòn cung cấp dịch vụ nhà thầu xin giấy phép xây dựng TP. Thủ Đức trọn gói, chuyên nghiệp. Hỗ trợ tư vấn quy hoạch, thiết kế bản vẽ, soạn hồ sơ và nộp cấp phép nhanh. Cam kết minh bạch – đúng quy định – không phát sinh chi phí, giúp công trình hợp pháp, khởi công thuận lợi.
                            Dịch vụ làm giấy phép xây dựng tại Thủ Đức
BK-Saigon chuyên làm giấy phép xây dựng Thủ Đức và toàn TP.HCM. Hỗ trợ trọn gói từ tư vấn quy hoạch, chuẩn bị hồ sơ, thiết kế bản vẽ đến nộp và nhận kết quả. Dịch vụ uy tín – minh bạch – nhanh chóng, giúp công trình khởi công đúng tiến độ, đúng pháp lý.
                            LĨNH VỰC HOẠT ĐỘNG
			
				01
			
			
				
				
		
			Xin giấy phép xây dựng là bước bắt buộc trước khi khởi công bất kỳ công trình nào, và BK-SAIGON chính là đơn vị uy tín giúp bạn thực hiện thủ tục này nhanh chóng, chính xác. Với kinh nghiệm xử lý hồ sơ xin giấy phép xây dựng cho nhiều loại công trình từ nhà ở riêng lẻ, nhà phố đến dự án lớn, BK-SAIGON cam kết hỗ trợ trọn gói từ khâu tư vấn, chuẩn bị hồ sơ, nộp và theo dõi tiến trình để khách hàng tiết kiệm tối đa thời gian và công sức.
			
			
				02
			
			
				
				
		
			Bạn đang tìm kiếm dịch vụ đo vẽ nhà đất uy tín, chính xác tại TPHCM để phục vụ thủ tục pháp lý, xin phép xây dựng hoặc giải quyết tranh chấp? Trong môi trường đô thị phát triển nhanh, giá trị bất động sản tăng cao, một bản vẽ đo vẽ chính xác có thể quyết định việc bạn tiết kiệm hàng chục triệu đồng và tránh những rắc rối pháp lý kéo dài nhiều năm. BK-SAIGON – với đội ngũ kỹ thuật viên giàu kinh nghiệm, thiết bị đo đạc hiện đại và quy trình chuyên nghiệp – cam kết mang đến dịch vụ đo vẽ nhà đất nhanh chóng, chuẩn xác, giá hợp lý, đáp ứng yêu cầu của cả cá nhân lẫn doanh nghiệp.
			
			
				03
			
			
				
				
		
			Dịch vụ đo vẽ hoàn công nhà ở riêng lẻ chính xác, đúng hiện trạng thi công, hỗ trợ lập hồ sơ hoàn công, cập nhật sổ hồng nhanh chóng. Cam kết trọn gói A–Z, tư vấn pháp lý miễn phí, khảo sát tận nơi, không phát sinh chi phí. Liên hệ BK-SAIGON gặp Mr. Hoan - 0977 960 616
			
			
				04
			
			
				
				
		
			Dịch vụ cấp đổi sổ đỏ, sổ hồng nhanh chóng, đúng quy trình tại TP.HCM. Hỗ trợ đo vẽ hiện trạng, lập hồ sơ, nộp tại Văn phòng đăng ký đất đai. Tư vấn miễn phí – không phát sinh – cam kết ra sổ đúng hẹn, phù hợp cho sang tên, tách thửa, hoàn công.
			
			
				05
			
			
				
				
		
			BK-SAIGON là đơn vị chuyên cung cấp dịch vụ đo vẽ hiện trạng cắm mốc ranh uy tín tại TP.HCM. Chúng tôi cam kết đảm bảo hồ sơ kỹ thuật đúng chuẩn pháp lý, đo đạc nhanh chóng, chính xác và tiết kiệm chi phí cho khách hàng. Với đội ngũ kỹ sư chuyên nghiệp và trang thiết bị hiện đại, BK-SAIGON tự hào mang đến dịch vụ chất lượng cao, đáp ứng nhu cầu của khách hàng trong bối cảnh thị trường bất động sản đang phát triển mạnh mẽ.
			
			
				06
			
			
				
				
		
			Hồ sơ pháp lý nhà đất gồm giấy tờ chứng minh quyền sử dụng đất, quyền sở hữu nhà ở, hợp đồng chuyển nhượng, giấy phép xây dựng, bản vẽ hoàn công… Chúng tôi cung cấp dịch vụ trọn gói hồ sơ pháp lý nhà đất tại TP.HCM: đo vẽ, hoàn công, mua bán, tách thửa, hợp thửa, sang tên, đăng ký thế chấp, tra thông tin quy hoạch.
			
			
				07
			
			
				
				
		
			Dịch vụ xin phép và thi công hệ thống PCCC trọn gói tại TP.HCM. Tư vấn – thiết kế – lập hồ sơ xin phép PCCC, thi công lắp đặt hệ thống báo cháy, chữa cháy đạt chuẩn, nghiệm thu bàn giao đúng quy định. Cam kết đúng quy chuẩn, không phát sinh, hỗ trợ trọn gói.
			
			
				08
			
			
				
				
		
			Xây nhà trọn gói chuyên nghiệp tại TP.HCM: từ thiết kế kiến trúc, xin phép xây dựng, thi công phần thô – hoàn thiện đến hồ sơ hoàn công. Cam kết đúng tiến độ, đúng pháp lý, bảo hành dài hạn. Miễn phí tư vấn – khảo sát – báo giá theo yêu cầu từng công trình.
			
			
				09
			
			
				
				
		
	Dịch vụ mua bán, ký gửi nhà đất chuyên nghiệp tại TP.HCM. Hỗ trợ định giá, tìm kiếm khách hàng, tư vấn pháp lý, thủ tục công chứng, sang tên nhanh chóng. Cam kết giao dịch minh bạch, giá trị thực, hiệu quả cao – hỗ trợ tận nơi, không phát sinh chi phí.
			TIN TỨC CẬP NHẬT
	Đề nghị TP.Thủ Đức tăng chỉ tiêu hệ số sử dụng đất
BK-Saigon chia sẻ hệ số sử dụng đất và mật độ xây dựng Thủ Đức theo quy định mới nhất của TP.HCM. Hướng dẫn cách tính, ví dụ thực tế và lưu ý khi xin giấy phép xây dựng. Dịch vụ tư vấn – kiểm tra quy hoạch – xin phép xây dựng trọn gói, giúp hồ sơ được duyệt nhanh, hợp pháp và tiết kiệm chi phí.
				Các công ty đo đạc nhà đất uy tín – Cập nhật mới nhất
Việc đo đạc nhà đất là bước đầu tiên và cực kỳ quan trọng trong quá trình thực hiện các thủ tục pháp lý như: xin cấp sổ hồng, xin giấy phép xây dựng, hoàn công, tách thửa, hợp thửa, chuyển nhượng, tranh chấp đất đai... Tuy nhiên, không phải ai cũng biết lựa chọn công ty đo đạc nhà đất uy tín để đảm bảo độ chính xác, hợp pháp và đúng tiến độ.
				Xin giấy phép xây dựng cần những gì?
Việc xin giấy phép xây dựng là thủ tục bắt buộc trước khi khởi công bất kỳ công trình nào, đặc biệt là đối với nhà ở riêng lẻ. Tuy nhiên, nhiều người vẫn còn băn khoăn không biết xin giấy phép xây dựng cần những gì, nộp ở đâu và nếu xây không phép thì bị phạt bao nhiêu. Hãy cùng tìm hiểu chi tiết trong bài viết dưới đây.
				Sổ hồng và sổ đỏ khác nhau như thế nào?
Khi giao dịch nhà đất, cụm từ “sổ hồng” và “sổ đỏ” là những thuật ngữ rất quen thuộc với người dân. Tuy nhiên, không phải ai cũng hiểu rõ sự khác biệt giữa hai loại giấy tờ này. Bài viết dưới đây sẽ giúp bạn phân biệt rõ ràng sổ hồng và sổ đỏ, từ đó tránh nhầm lẫn trong các thủ tục pháp lý liên quan đến quyền sử dụng đất và tài sản gắn liền với đất.
				Thời gian làm hoàn công nhà mất bao lâu?
Khi hoàn thành việc xây dựng nhà ở, một trong những thủ tục pháp lý quan trọng không thể bỏ qua là hoàn công. Tuy nhiên, nhiều người băn khoăn không biết thời gian làm hoàn công nhà mất bao lâu, có nhanh không, liệu có ảnh hưởng đến việc làm sổ hồng hay giao dịch tài sản. Bài viết sau sẽ giúp bạn hiểu rõ thời gian hoàn công nhà ở, các yếu tố ảnh hưởng và cách rút ngắn quy trình.
				Có nên thuê dịch vụ làm hoàn công nhà không?
Khi công trình xây dựng nhà ở hoàn tất, một trong những bước cuối cùng và quan trọng nhất là hoàn công. Đây là thủ tục bắt buộc nếu bạn muốn công trình được công nhận về mặt pháp lý, làm sổ hồng, sang tên, thế chấp hoặc thực hiện các giao dịch liên quan đến nhà đất. Tuy nhiên, có nên thuê dịch vụ làm hoàn công nhà không, hay tự thực hiện để tiết kiệm chi phí? Câu trả lời sẽ được phân tích chi tiết trong bài viết này.
				Lệ phí xin giấy phép xây dựng nhà ở tại TP.HCM năm 2025
Việc xin giấy phép xây dựng là bước đầu tiên quan trọng khi bạn có ý định xây dựng, cải tạo nhà ở. Tại TP.HCM, lệ phí xin giấy phép xây dựng được quy định rõ ràng, giúp người dân chủ động chuẩn bị tài chính, hồ sơ đầy đủ và đúng quy định pháp luật. Bài viết dưới đây sẽ cung cấp chi tiết lệ phí, các khoản chi phí liên quan và những trường hợp bắt buộc phải xin giấy phép xây dựng theo quy định mới nhất năm 2025.
				Hướng dẫn xin giấy phép xây dựng nhà ở nhanh chóng
Khi xây dựng nhà ở, việc xin giấy phép xây dựng là thủ tục bắt buộc để đảm bảo quá trình thi công diễn ra đúng quy định pháp luật, phù hợp với quy hoạch và tránh những rủi ro pháp lý. Giấy phép xây dựng do cơ quan nhà nước có thẩm quyền cấp, không chỉ giúp cơ quan chức năng kiểm soát trật tự xây dựng mà còn là cơ sở để bảo vệ quyền lợi hợp pháp của cá nhân, hộ gia đình. Vậy thủ tục xin giấy phép xây dựng nhà ở bao gồm những gì? Cần chuẩn bị ra sao? Bài viết dưới đây sẽ hướng dẫn bạn chi tiết.
				TP.HCM Đề Xuất Giao Cấp Xã Cấp Phép Xây Dựng – Thủ Tục Sạch, Dễ Dàng
Từ ngày 1/7/2025, Sở Xây dựng TP.HCM đã chính thức kiến nghị UBND TP cho phép UBND cấp xã cấp phép xây dựng nhà ở riêng lẻ và cấp công trình cấp III, IV nhằm đáp ứng mô hình chính quyền 2 cấp, đảm bảo thủ tục hành chính không bị gián đoạn và thuận lợi tối đa cho người dân.
				Từ 1/7/2025: Cấp Xã/Phường Được Phép Cấp Sổ Đỏ Lần Đầu – Tiện Lợi & Nhanh Chóng
Một bước tiến đột phá trong cải cách hành chính ngành đất đai đang đến gần: Từ ngày 1/7/2025, người dân sẽ không cần phải lên quận/huyện để xin cấp Sổ đỏ lần đầu. Thay vào đó, UBND cấp xã, phường sẽ được phân quyền cấp Giấy chứng nhận quyền sử dụng đất (GCNQSDĐ) lần đầu cho người dân ngay tại địa phương. Đây là nội dung nổi bật trong Nghị định 151/2025/NĐ-CP, đánh dấu cách mạng trong quản lý đất đai theo mô hình hai cấp (tỉnh – xã).
				 
                    



 
                                 
                                 
                                 
                                 
                                 
                                 
                                 
                                 
                                 
                                 
                                 
                                









 
                 
                 
                 
                