TP. Thủ Đức – khu đô thị trẻ và năng động của TP.HCM – đang chứng kiến sự bùng nổ mạnh mẽ về nhu cầu xây dựng nhà ở, biệt thự và công trình thương mại. Để công trình được khởi công hợp pháp, việc xin giấy phép xây dựng Thủ Đức là bước bắt buộc, giúp đảm bảo đúng quy hoạch, tiêu chuẩn kỹ thuật và an toàn. Tuy nhiên, nhiều người vẫn gặp khó khăn trong việc chuẩn bị hồ sơ, bản vẽ và thủ tục hành chính. Bài viết dưới đây sẽ hướng dẫn chi tiết quy trình, điều kiện, chi phí và thời gian xin giấy phép xây dựng tại TP. Thủ Đức, đồng thời giới thiệu BK-Saigon – đơn vị chuyên hỗ trợ dịch vụ xin phép xây dựng trọn gói, giúp bạn tiết kiệm thời gian và đảm bảo hồ sơ được duyệt nhanh chóng, hợp pháp.
Nhu cầu xin giấy phép xây dựng tại TP. Thủ Đức
TP. Thủ Đức là khu đô thị sáng tạo phía Đông của TP.HCM, được thành lập trên cơ sở sáp nhập quận 2, quận 9 và quận Thủ Đức cũ. Với vị trí chiến lược, cơ sở hạ tầng hiện đại và tốc độ phát triển nhanh chóng, nơi đây thu hút hàng loạt dự án xây dựng nhà ở, công trình thương mại, dịch vụ và hạ tầng kỹ thuật.

Trong bối cảnh đó, xin giấy phép xây dựng Thủ Đức trở thành thủ tục bắt buộc để đảm bảo công trình hợp pháp, an toàn và phù hợp quy hoạch đô thị. Dù là xây mới, cải tạo hay nâng cấp công trình, việc có giấy phép hợp lệ không chỉ tránh bị xử phạt hành chính mà còn giúp chủ đầu tư yên tâm trong quá trình thi công.
Nhiều hộ gia đình và doanh nghiệp hiện nay vẫn gặp khó khăn khi thực hiện thủ tục xin giấy phép xây dựng tại Thủ Đức, do chưa nắm rõ hồ sơ, quy trình, cũng như các yêu cầu kỹ thuật – pháp lý. Vì vậy, nhu cầu tìm kiếm dịch vụ xin giấy phép xây dựng trọn gói ngày càng tăng, đặc biệt tại các phường đông dân như Linh Trung, Hiệp Bình Chánh, Bình Thọ, Thảo Điền, An Phú, Long Thạnh Mỹ…
Danh sách 34 phường của TP. Thủ Đức áp dụng dịch vụ
TP. Thủ Đức hiện có 34 phường sau khi sáp nhập các đơn vị hành chính từ quận 2, quận 9 và quận Thủ Đức cũ. Dịch vụ xin giấy phép xây dựng Thủ Đức áp dụng cho tất cả các khu vực này, đảm bảo hỗ trợ khách hàng từ khâu tư vấn, chuẩn bị hồ sơ đến khi nhận giấy phép.
Danh sách 34 phường tại TP. Thủ Đức: An Khánh, An Lợi Đông, An Phú, Bình Chiểu, Bình Thọ, Bình Trưng Đông, Bình Trưng Tây, Cát Lái, Hiệp Bình Chánh, Hiệp Bình Phước, Hiệp Phú, Linh Chiểu, Linh Đông, Linh Tây, Linh Trung, Linh Xuân, Long Bình, Long Phước, Long Thạnh Mỹ, Long Trường, Phú Hữu, Phước Bình, Phước Long A, Phước Long B, Tam Bình, Tam Phú, Tân Phú, Thạnh Mỹ Lợi, Thảo Điền, Thủ Thiêm, Trường Thạnh, Trường Thọ, Thạnh Xuân, Thạnh Lộc
Với phạm vi rộng và đặc điểm đô thị khác nhau ở từng phường, việc nắm rõ quy hoạch và quy định xây dựng của từng khu vực là yếu tố quan trọng để hồ sơ xin giấy phép được duyệt nhanh chóng. Ví dụ:
- Phường Thảo Điền, An Phú, Thủ Thiêm: tập trung nhiều dự án cao cấp, yêu cầu bản vẽ và thiết kế đạt chuẩn kiến trúc đô thị.
- Phường Linh Trung, Hiệp Bình Chánh, Tam Bình: khu dân cư đông, cần lưu ý khoảng lùi và mật độ xây dựng.
- Phường Long Thạnh Mỹ, Long Bình, Cát Lái: nhiều dự án mới, yêu cầu giấy phép phù hợp quy hoạch hạ tầng.
Khi nào cần xin giấy phép xây dựng tại Thủ Đức?
Theo Luật Xây dựng 2014 (sửa đổi 2020) và các quy định hiện hành, hầu hết các công trình xây dựng mới, cải tạo hoặc mở rộng tại TP. Thủ Đức đều phải xin giấy phép trước khi khởi công. Việc này nhằm đảm bảo công trình hợp pháp, an toàn và phù hợp quy hoạch đô thị.


>>>>> Xem thêm: Danh sách công ty xin giấy phép xây dựng tại TP. Thủ Đức
Bạn sẽ cần xin giấy phép xây dựng Thủ Đức trong các trường hợp sau:
Xây mới nhà ở hoặc công trình dân dụng
- Bao gồm nhà phố, biệt thự, nhà cấp 4, nhà liền kề, chung cư mini…
- Phải có hồ sơ thiết kế và giấy phép xây dựng được cơ quan có thẩm quyền phê duyệt.
Cải tạo, nâng tầng hoặc mở rộng công trình
- Khi thay đổi kết cấu chịu lực, nâng thêm tầng, mở rộng diện tích sàn.
- Khi cải tạo làm thay đổi công năng sử dụng của công trình.
Xây dựng công trình tạm hoặc công trình phụ
- Nhà kho, gara, nhà tạm phục vụ thi công…
- Vẫn cần xin phép nếu có kết cấu kiên cố và thời gian sử dụng lâu dài.
Trường hợp miễn giấy phép xây dựng
Một số trường hợp được miễn giấy phép theo quy định, ví dụ:
- Sửa chữa, cải tạo bên trong không thay đổi kết cấu và công năng.
- Công trình nhỏ thuộc dự án đã có quy hoạch chi tiết 1/500 được phê duyệt.
Tuy nhiên, vẫn nên tham khảo Phòng Quản lý đô thị TP. Thủ Đức hoặc dịch vụ xin giấy phép xây dựng trọn gói để được tư vấn chính xác.
Hồ sơ xin giấy phép xây dựng Thủ Đức cần chuẩn bị
Khi thực hiện thủ tục xin giấy phép xây dựng Thủ Đức, việc chuẩn bị đầy đủ và đúng biểu mẫu hồ sơ là yếu tố quan trọng để tránh bị trả lại, kéo dài thời gian xử lý. Hồ sơ bao gồm:
Đơn xin cấp giấy phép xây dựng
- Sử dụng mẫu số 01 theo Phụ lục II Nghị định 15/2021/NĐ-CP.
- Ghi rõ thông tin chủ đầu tư, địa chỉ, loại công trình, diện tích, số tầng và mục đích xây dựng.

Giấy tờ chứng minh quyền sử dụng đất
- Bản sao sổ hồng (Giấy chứng nhận quyền sử dụng đất, quyền sở hữu nhà ở).
- Đất phải đúng mục đích sử dụng (đất ở) và không có tranh chấp.

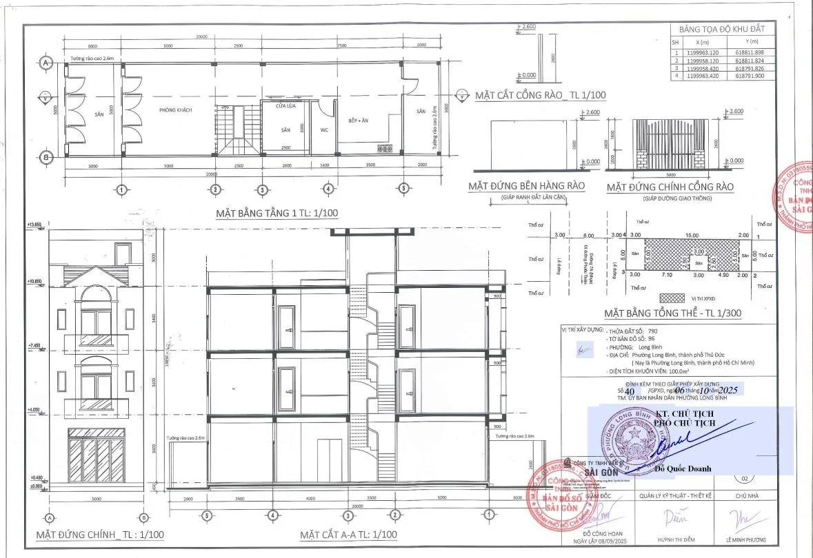
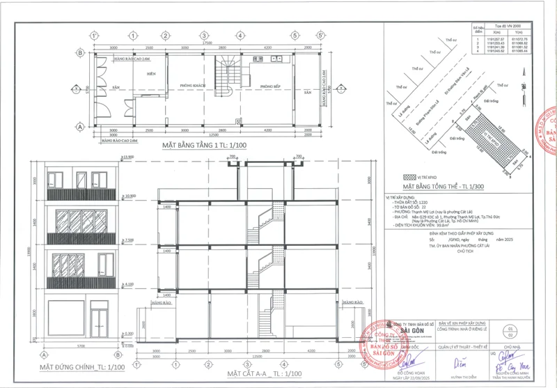
Bản vẽ thiết kế xây dựng
- 2 bộ bản vẽ do tổ chức, cá nhân có đủ điều kiện năng lực thiết kế thực hiện.
- Bao gồm:
- Mặt bằng công trình trên lô đất.
- Mặt bằng các tầng, mặt đứng và mặt cắt công trình.
- Sơ đồ vị trí công trình, hệ thống cấp thoát nước, điện.

Chứng chỉ hành nghề của đơn vị thiết kế
- Kèm theo bản sao giấy phép hoạt động xây dựng hoặc chứng chỉ hành nghề kiến trúc sư/kỹ sư.
Văn bản ủy quyền (nếu có)
- Nếu chủ đầu tư ủy quyền cho đơn vị dịch vụ hoặc cá nhân khác nộp hồ sơ, cần có giấy ủy quyền hợp pháp.

Một số giấy tờ bổ sung (tùy trường hợp)
- Văn bản thẩm duyệt PCCC (đối với công trình bắt buộc).
- Văn bản chấp thuận của cơ quan quản lý giao thông nếu công trình ảnh hưởng đến lộ giới.
Lưu ý quan trọng:
- Hồ sơ nên được rà soát kỹ trước khi nộp để tránh phải bổ sung nhiều lần.
- Nên scan toàn bộ hồ sơ để lưu trữ và phòng khi cần chỉnh sửa nhanh.
- Khách hàng tại các phường như Linh Trung, Hiệp Bình Chánh, Thảo Điền, An Phú, Thủ Thiêm… có thể sử dụng dịch vụ xin giấy phép xây dựng trọn gói Thủ Đức để được hỗ trợ chuẩn bị hồ sơ đầy đủ, đúng luật.
Quy trình xin giấy phép xây dựng tại Thủ Đức
Để xin giấy phép xây dựng Thủ Đức nhanh chóng và hợp pháp, bạn cần thực hiện đúng quy trình mà Phòng Quản lý đô thị TP. Thủ Đức quy định. Quy trình cơ bản gồm các bước sau:
Bước 1: Chuẩn bị hồ sơ
- Thu thập đầy đủ giấy tờ như đã liệt kê ở mục 4: đơn xin cấp phép, bản vẽ thiết kế, giấy tờ đất, chứng chỉ năng lực thiết kế…
- Kiểm tra kỹ hồ sơ để đảm bảo thông tin đầy đủ, đúng mẫu, tránh bị yêu cầu bổ sung.
Bước 2: Nộp hồ sơ
- Nộp trực tiếp tại Bộ phận Một cửa – UBND TP. Thủ Đức hoặc qua dịch vụ công trực tuyến của TP.HCM.
- Địa chỉ tiếp nhận hồ sơ: Phòng Quản lý Đô thị TP. Thủ Đức.
- Nhận giấy biên nhận hồ sơ và thời gian trả kết quả.
Bước 3: Thẩm định hồ sơ
- Cơ quan quản lý sẽ xem xét tính pháp lý, kiểm tra bản vẽ, đối chiếu quy hoạch và kiểm tra hiện trạng thực địa.
- Nếu hồ sơ chưa đạt, bạn sẽ được yêu cầu bổ sung hoặc chỉnh sửa.
Bước 4: Phê duyệt và cấp giấy phép xây dựng
- Sau khi hồ sơ hợp lệ, UBND TP. Thủ Đức sẽ ký và cấp giấy phép xây dựng.
- Bạn nhận giấy phép tại nơi đã nộp hồ sơ hoặc qua đường bưu điện (nếu đăng ký nhận kết quả tại nhà).
Bước 5: Triển khai thi công
- Công trình chỉ được phép khởi công khi giấy phép xây dựng đã có hiệu lực.
- Thi công phải đúng nội dung, quy mô và vị trí trong giấy phép.
Lưu ý quan trọng:
- Thời gian giải quyết hồ sơ thường từ 10 – 15 ngày làm việc (không tính ngày nghỉ).
- Có thể rút ngắn thời gian nếu sử dụng dịch vụ xin giấy phép xây dựng trọn gói Thủ Đức.
- Các phường như Thảo Điền, Thủ Thiêm, An Phú có yêu cầu quy hoạch khắt khe hơn, nên cần lưu ý trước khi nộp hồ sơ.
Thời gian xử lý và lệ phí xin giấy phép xây dựng Thủ Đức
Khi thực hiện thủ tục xin giấy phép xây dựng Thủ Đức, hai yếu tố mà hầu hết chủ đầu tư quan tâm là thời gian xử lý hồ sơ và lệ phí cấp phép. Nắm rõ thông tin này sẽ giúp bạn chủ động hơn trong việc chuẩn bị và triển khai dự án.

Thời gian xử lý hồ sơ xin giấy phép xây dựng
Theo quy định tại Luật Xây dựng 2014 (sửa đổi 2020) và Nghị định 15/2021/NĐ-CP, thời gian giải quyết hồ sơ xin cấp giấy phép xây dựng tại TP. Thủ Đức như sau:
- Đối với nhà ở riêng lẻ: khoảng 10 ngày làm việc kể từ ngày nhận đủ hồ sơ hợp lệ.
- Đối với công trình khác: từ 15 – 20 ngày làm việc.
- Trường hợp cần bổ sung, chỉnh sửa hồ sơ: thời gian xử lý sẽ tính lại kể từ ngày nhận đủ hồ sơ đã điều chỉnh.
Lưu ý: Một số phường có quy hoạch phức tạp như Thủ Thiêm, An Phú, Thảo Điền có thể mất nhiều thời gian thẩm định hơn do yêu cầu kiểm tra chặt chẽ về mật độ và kiến trúc.
Lệ phí cấp giấy phép xây dựng
Mức thu lệ phí tại TP. HCM (bao gồm TP. Thủ Đức) được áp dụng theo Nghị quyết 18/2017/NQ-HĐND:
- Nhà ở riêng lẻ của hộ gia đình, cá nhân: 50.000 VNĐ/giấy phép.
- Công trình khác: 100.000 VNĐ/giấy phép.
- Gia hạn giấy phép xây dựng: 10.000 VNĐ/giấy phép.
Cách tiết kiệm thời gian và chi phí khi xin giấy phép xây dựng
- Chuẩn bị hồ sơ đầy đủ, đúng biểu mẫu ngay từ đầu.
- Sử dụng dịch vụ xin giấy phép xây dựng trọn gói Thủ Đức để hạn chế việc bổ sung hồ sơ nhiều lần.
- Tra cứu trước quy hoạch phường để tránh hồ sơ bị trả về do không phù hợp quy hoạch.
Các lỗi thường gặp khi xin giấy phép xây dựng tại Thủ Đức
Dù quy trình xin giấy phép xây dựng Thủ Đức đã được công khai và hướng dẫn rõ ràng, nhưng nhiều hồ sơ vẫn bị trả lại hoặc kéo dài thời gian xử lý. Nguyên nhân thường đến từ những lỗi phổ biến dưới đây:

>>>>> Xem thêm: Hướng dẫn xin giấy phép xây dựng tại TP. Thủ Đức
Hồ sơ thiếu giấy tờ hoặc sai mẫu đơn
- Không nộp đủ các thành phần hồ sơ bắt buộc như bản vẽ thiết kế, giấy chứng nhận quyền sử dụng đất, chứng chỉ năng lực của đơn vị thiết kế.
- Sử dụng mẫu đơn xin cấp phép cũ không đúng theo Nghị định 15/2021/NĐ-CP.
Cách khắc phục: Luôn tham khảo danh mục hồ sơ mới nhất từ Phòng Quản lý đô thị TP. Thủ Đức hoặc đơn vị dịch vụ uy tín.
Bản vẽ thiết kế không đạt yêu cầu
- Thiếu các mặt bằng, mặt đứng, mặt cắt, sơ đồ vị trí công trình.
- Bản vẽ không đúng tỷ lệ hoặc không thể hiện rõ kích thước, khoảng lùi.
Cách khắc phục: Thuê đơn vị thiết kế có chứng chỉ hành nghề, am hiểu quy chuẩn xây dựng tại từng phường của Thủ Đức.
Không tuân thủ quy hoạch và chỉ giới xây dựng
- Xây dựng vượt mật độ cho phép, lấn chỉ giới đường đỏ hoặc hành lang bảo vệ công trình công cộng.
- Đất không đúng mục đích sử dụng (ví dụ: đất nông nghiệp).
Cách khắc phục: Tra cứu trước bản đồ quy hoạch sử dụng đất và xây dựng của phường để điều chỉnh thiết kế cho phù hợp.
Chậm bổ sung hồ sơ khi được yêu cầu
- Sau khi cơ quan thẩm định gửi thông báo bổ sung, chủ đầu tư chậm phản hồi, dẫn đến hồ sơ bị hủy hoặc kéo dài thời gian xét duyệt.
Cách khắc phục: Theo dõi sát tiến trình hồ sơ, phản hồi ngay khi có yêu cầu bổ sung.
Mẹo hạn chế lỗi:
- Sử dụng dịch vụ xin giấy phép xây dựng trọn gói Thủ Đức để được tư vấn, chuẩn bị hồ sơ và theo dõi tiến trình từ A–Z.
- Các phường như Thủ Thiêm, An Phú, Thảo Điền thường có yêu cầu khắt khe hơn, nên cần kỹ sư/kiến trúc sư am hiểu đặc thù từng khu vực.
Lợi ích khi thuê dịch vụ xin giấy phép xây dựng trọn gói
Việc tự xin giấy phép xây dựng Thủ Đức có thể khiến bạn mất nhiều thời gian, công sức và dễ gặp rắc rối nếu hồ sơ không đạt yêu cầu. Vì vậy, nhiều chủ đầu tư lựa chọn dịch vụ xin giấy phép xây dựng trọn gói để đảm bảo quy trình nhanh gọn, đúng luật.


Dưới đây là những lợi ích nổi bật:
Tiết kiệm thời gian và công sức
- Không cần tự tìm hiểu các biểu mẫu, quy trình phức tạp.
- Đơn vị dịch vụ sẽ thay bạn chuẩn bị, nộp hồ sơ, theo dõi tiến trình và nhận kết quả.
Hồ sơ đạt yêu cầu ngay từ đầu
- Được kỹ sư, kiến trúc sư giàu kinh nghiệm kiểm tra tính pháp lý và kỹ thuật của hồ sơ.
- Hạn chế tối đa việc bị trả hồ sơ hoặc yêu cầu bổ sung.
Am hiểu quy định từng phường tại Thủ Đức
- Mỗi phường như Thủ Thiêm, Thảo Điền, An Phú có quy hoạch và tiêu chuẩn riêng.
- Đơn vị dịch vụ sẽ tư vấn thiết kế phù hợp để hồ sơ dễ được phê duyệt.
Tư vấn giải pháp xây dựng tối ưu
- Hỗ trợ đo vẽ bản vẽ xin phép, tư vấn mật độ xây dựng, chiều cao, khoảng lùi…
- Đảm bảo công trình vừa hợp pháp vừa tối ưu diện tích sử dụng.
Chi phí minh bạch, cam kết tiến độ
- Báo giá trọn gói rõ ràng, không phát sinh ngoài hợp đồng.
- Cam kết thời gian hoàn thành đúng hẹn, giúp bạn chủ động khởi công.
Kết luận: Sử dụng dịch vụ xin giấy phép xây dựng trọn gói Thủ Đức không chỉ giúp bạn tránh rủi ro pháp lý mà còn đảm bảo quá trình thi công diễn ra thuận lợi, tiết kiệm thời gian và chi phí.
Tại sao chọn chúng tôi cho dịch vụ xin giấy phép xây dựng Thủ Đức?
Với hơn 10 năm kinh nghiệm trong lĩnh vực tư vấn – thiết kế – xin giấy phép xây dựng tại TP. HCM, đặc biệt là khu vực TP. Thủ Đức, chúng tôi cam kết mang đến cho khách hàng dịch vụ chuyên nghiệp, nhanh chóng và hiệu quả nhất.


>>>>> Xem thêm: Dịch vụ xin giấy phép xây dựng tại TP. HCM
Kinh nghiệm thực tế tại 34 phường Thủ Đức
- Đã xử lý hàng trăm hồ sơ xin giấy phép xây dựng tại các phường như Thủ Thiêm, Thảo Điền, An Phú, Linh Trung, Hiệp Bình Chánh…
- Hiểu rõ từng quy hoạch, chỉ giới, mật độ xây dựng của từng khu vực.
Đội ngũ chuyên gia am hiểu pháp luật và kỹ thuật
- Kiến trúc sư, kỹ sư xây dựng và chuyên viên pháp lý phối hợp chặt chẽ để đảm bảo hồ sơ đạt chuẩn.
- Cập nhật liên tục các quy định mới nhất từ Luật Xây dựng và quy hoạch TP. HCM.
Quy trình trọn gói – Khách hàng chỉ cần ký hồ sơ
- Từ khâu khảo sát, đo vẽ bản vẽ xin phép, chuẩn bị hồ sơ, nộp và theo dõi tiến trình đến khi nhận giấy phép.
- Hỗ trợ tư vấn phương án thi công tối ưu ngay sau khi có giấy phép.
Chi phí hợp lý – Minh bạch
- Báo giá trọn gói, rõ ràng, không phát sinh chi phí ngoài hợp đồng.
- Tư vấn miễn phí trước khi ký hợp đồng dịch vụ.
Cam kết tiến độ
- Hoàn tất hồ sơ và nhận giấy phép đúng hẹn.
- Đảm bảo công trình được khởi công đúng kế hoạch.
Thông Tin Liên Hệ: Bản Đồ Số Sài Gòn
- Hotline/Zalo: Mr. Hoan – 0977 960 616
- Website: https://phaplynhadathcm.vn
- Email: bandososaigon@gmail.com
Hệ Thống Văn Phòng
- Văn phòng chính: 29 Đồng Văn Cống, phường Cát Lái, Tp. HCM
- Văn phòng 1: 430 Nguyễn Xiển, Phường Long Bình, TP.HCM
- Văn phòng 2: 47 Dương Định Hội, Phường Phước Long, TP.HCM
- Văn phòng 3: 51 Nguyễn Thị Thập, Phường Tân Mỹ, Quận 7, TP.HCM
Tìm Kiếm Liên Quan
Nộp hồ sơ xin phép xây dựng online
Xin phép xây dựng Thành phố Thủ Đức
TP Thủ Đức ngưng cấp phép xây dựng
Tra cứu giấy phép xây dựng TP Thủ Đức
Thủ tục xin giấy phép xây dựng nhà ở TPHCM
Kiểm tra giấy phép xây dựng online
Tra cứu giấy phép xây dựng TP HCM
Mật độ xây dựng TP Thủ Đức