TP. Thủ Đức là khu vực phát triển năng động của TP.HCM, nơi nhu cầu xây dựng nhà phố và nhà 3 tầng tăng nhanh trong những năm gần đây. Tuy nhiên, để khởi công hợp pháp và đúng quy hoạch, chủ đầu tư bắt buộc phải xin giấy phép xây dựng nhà 3 tầng theo quy định của Luật Xây dựng 2014 (sửa đổi 2020). Việc chuẩn bị hồ sơ sai hoặc thiếu dễ dẫn đến việc bị trả lại, làm chậm tiến độ thi công. Hiểu rõ quy định và quy trình tại địa phương, BK-Saigon mang đến dịch vụ xin giấy phép xây dựng nhà 3 tầng tại TP. Thủ Đức, TP.HCM trọn gói – nhanh, chuẩn, đúng pháp luật, giúp bạn ra giấy phép chỉ trong 5–7 ngày và khởi công hợp pháp 100%.
Căn cứ pháp lý và thẩm quyền cấp phép xây dựng nhà 3 tầng tại TP. Thủ Đức, TP.HCM
Việc xin giấy phép xây dựng nhà 3 tầng tại TP. Thủ Đức được quy định cụ thể trong hệ thống pháp luật Việt Nam, nhằm đảm bảo công trình xây dựng đúng quy hoạch, an toàn kỹ thuật, thẩm mỹ đô thị và phù hợp với định hướng phát triển chung của TP.HCM. Chủ đầu tư cần nắm rõ căn cứ pháp lý và thẩm quyền cấp phép, để hồ sơ được duyệt nhanh, hợp lệ và tránh sai sót trong quá trình thực hiện.


>>>>> Xem thêm: Dịch vụ xin giấy phép xây dựng tại Tp. HCM
Căn cứ pháp lý quan trọng
Các văn bản quy định về thủ tục và điều kiện xin giấy phép xây dựng bao gồm:
- Luật Xây dựng số 50/2014/QH13 ngày 18/6/2014 – quy định chi tiết về điều kiện, hồ sơ, trình tự và thẩm quyền cấp phép xây dựng.
- Luật sửa đổi, bổ sung một số điều của Luật Xây dựng năm 2020 – rút gọn thủ tục hành chính, tạo thuận lợi cho chủ đầu tư cá nhân.
- Nghị định 15/2021/NĐ-CP – hướng dẫn thi hành một số nội dung của Luật Xây dựng, đặc biệt về quản lý chất lượng và an toàn công trình.
- Thông tư 15/2016/TT-BXD – ban hành mẫu đơn, bản vẽ và hướng dẫn chi tiết hồ sơ xin phép xây dựng.
- Nghị định 16/2022/NĐ-CP – quy định mức xử phạt vi phạm hành chính trong lĩnh vực xây dựng (phạt từ 60 – 80 triệu đồng nếu xây không phép hoặc sai phép).
Những căn cứ này giúp chủ đầu tư hiểu rõ quyền, nghĩa vụ và trách nhiệm pháp lý trong quá trình thi công công trình nhà 3 tầng.
Cơ quan có thẩm quyền cấp phép tại TP. Thủ Đức
- UBND TP. Thủ Đức (thuộc TP.HCM):
- Là cơ quan có thẩm quyền cấp giấy phép xây dựng cho nhà ở riêng lẻ, nhà phố, nhà 3 tầng, công trình dân dụng nhỏ lẻ trong khu vực đô thị.
- Thông qua Phòng Quản lý Đô thị TP. Thủ Đức để tiếp nhận, thẩm định hồ sơ và trình lãnh đạo UBND ký cấp phép.
- Sở Xây dựng TP.HCM:
- Cấp phép cho công trình cấp I, cấp II hoặc dự án quy mô lớn, công trình có yếu tố kỹ thuật phức tạp hoặc liên quan đến nhiều khu vực hành chính.
Tùy theo quy mô và vị trí công trình, việc xác định đúng cơ quan có thẩm quyền cấp phép là yếu tố quyết định giúp hồ sơ được thẩm định nhanh, không bị yêu cầu bổ sung hoặc chuyển cấp sai nơi.
Vai trò hỗ trợ pháp lý của BK-Saigon
Với kinh nghiệm thực hiện hàng trăm hồ sơ tại TP. Thủ Đức, BK-Saigon nắm vững quy trình làm việc của các cơ quan quản lý đô thị.
Chúng tôi hỗ trợ khách hàng:
- Xác định đúng cơ quan cấp phép (UBND TP. Thủ Đức hoặc Sở Xây dựng TP.HCM).
- Soạn hồ sơ đúng căn cứ pháp lý, đúng biểu mẫu mới nhất.
- Theo dõi và cập nhật tiến độ xử lý hồ sơ, đảm bảo giấy phép được phê duyệt trong 5–7 ngày làm việc.
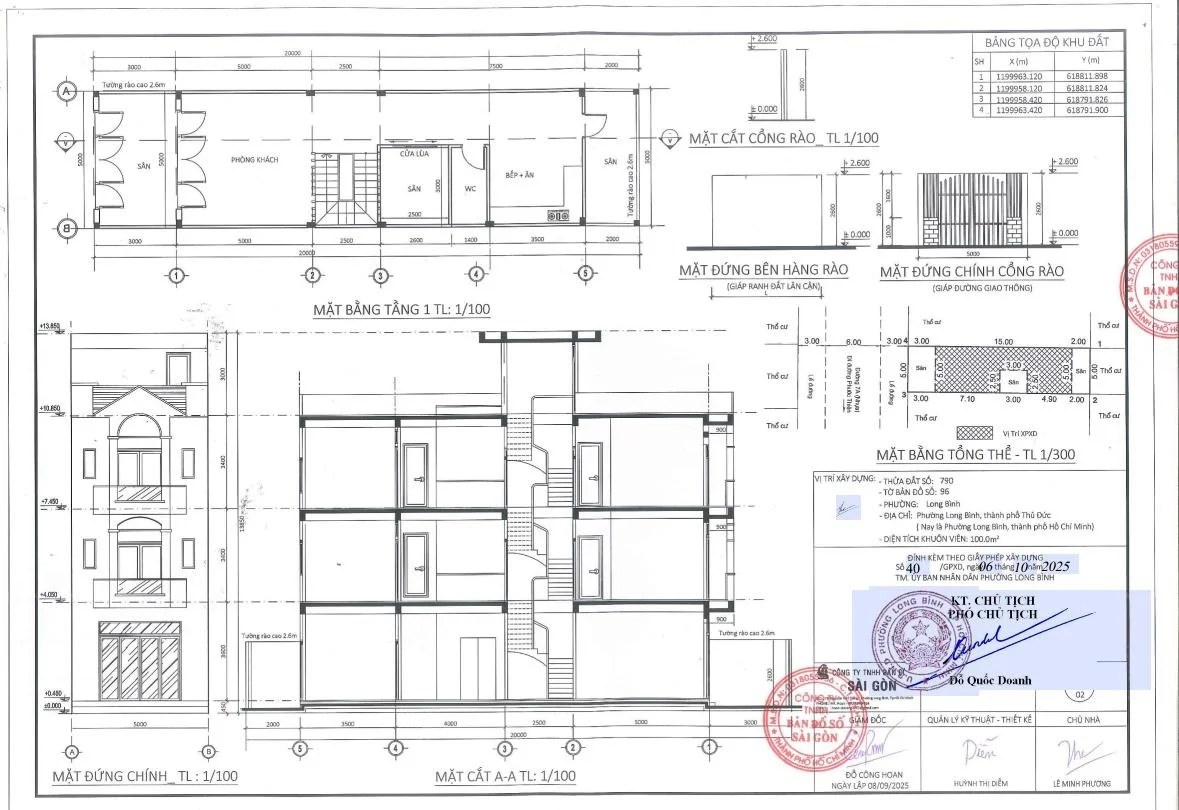
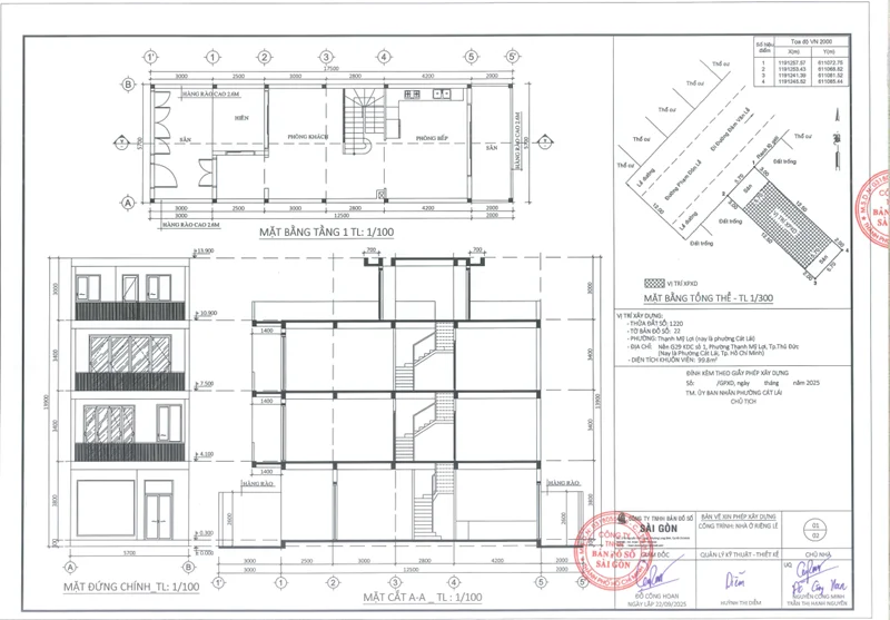
Hồ sơ xin giấy phép xây dựng nhà 3 tầng tại TP. Thủ Đức, TP.HCM
Để được cấp giấy phép xây dựng nhà 3 tầng tại TP. Thủ Đức, chủ đầu tư cần chuẩn bị bộ hồ sơ đầy đủ và đúng quy định pháp luật. Một bộ hồ sơ hoàn chỉnh sẽ giúp quá trình thẩm định diễn ra nhanh chóng, hạn chế việc bị trả lại hoặc yêu cầu bổ sung giấy tờ. Dưới đây là thành phần hồ sơ chi tiết và hướng dẫn được BK-Saigon tổng hợp theo Luật Xây dựng 2014 (sửa đổi 2020) và Thông tư 15/2016/TT-BXD.

Thành phần hồ sơ bắt buộc
- Đơn đề nghị cấp giấy phép xây dựng (theo mẫu tại Phụ lục số 1, Thông tư 15/2016/TT-BXD).
- Bản sao Giấy chứng nhận quyền sử dụng đất (sổ đỏ/sổ hồng) – thể hiện quyền sở hữu hợp pháp khu đất.
- Bộ bản vẽ thiết kế xây dựng (03 bộ):
- Mặt bằng, mặt cắt, mặt đứng công trình (tỷ lệ 1/100 – 1/200).
- Sơ đồ vị trí công trình trên lô đất, bản vẽ hệ thống thoát nước, cấp điện, cấp nước.
- Kết cấu móng, cột, sàn và phần chịu lực chính của công trình.
- Các bản vẽ do đơn vị thiết kế có chứng chỉ hành nghề hợp lệ thực hiện.
- Văn bản thẩm duyệt phòng cháy chữa cháy (PCCC) – bắt buộc đối với nhà ở 3 tầng hoặc có tổng diện tích sàn > 250m².
- Giấy tờ cá nhân của chủ đầu tư: CMND/CCCD (bản sao chứng thực).
- Ảnh chụp hiện trạng khu đất và các công trình liền kề (toàn cảnh và góc gần).
- Giấy ủy quyền hoặc hợp đồng dịch vụ (nếu ủy quyền cho BK-Saigon đại diện nộp hồ sơ).
Yêu cầu kỹ thuật khi lập hồ sơ
- Hồ sơ và bản vẽ phải thống nhất tuyệt đối với sổ đỏ (diện tích, hướng đất, ranh giới, tọa độ).
- Bản vẽ thiết kế phải thể hiện rõ các chỉ tiêu kỹ thuật:
- Mật độ xây dựng, chiều cao tầng, tổng chiều cao công trình.
- Khoảng lùi trước – sau – hai bên theo đúng quy hoạch đô thị.
- Bản vẽ phải có chữ ký và dấu xác nhận của chủ đầu tư và đơn vị thiết kế.
- Hồ sơ in 02 bộ (A3/A4), nộp tại Bộ phận Một cửa – UBND TP. Thủ Đức.
Cách thức nộp hồ sơ xin phép
- Trực tuyến qua Cổng Dịch vụ công Quốc gia
https://dichvucong.gov.vn/
Quy trình xin giấy phép xây dựng nhà 3 tầng tại TP. Thủ Đức, TP.HCM
Việc xin giấy phép xây dựng nhà 3 tầng tại TP. Thủ Đức đòi hỏi sự cẩn trọng trong từng bước để đảm bảo hồ sơ được duyệt nhanh, đúng pháp luật và đúng quy hoạch. Nhiều chủ đầu tư gặp khó khăn do chưa nắm rõ trình tự xử lý hồ sơ. Dưới đây là quy trình 5 bước chuẩn được BK-Saigon tổng hợp và áp dụng thực tế, giúp khách hàng ra giấy phép chỉ trong 5–7 ngày làm việc.

>>>>> Xem thêm: Dịch vụ xin giấy phép xây dựng tại Tp. Thủ Đức
Bước 1: Khảo sát hiện trạng khu đất & kiểm tra quy hoạch xây dựng
Trước khi lập hồ sơ, cần khảo sát vị trí, ranh giới và hiện trạng khu đất, xác định rõ mật độ xây dựng, chiều cao tối đa và chỉ giới đường đỏ theo bản đồ quy hoạch 1/2000 hoặc 1/500 của khu vực.
- Nếu đất thuộc đất ở đô thị (ODT), không nằm trong khu quy hoạch treo hoặc hành lang bảo vệ, được phép xây dựng nhà ở riêng lẻ.
- BK-Saigon hỗ trợ tra cứu quy hoạch miễn phí, giúp xác định nhanh khả năng xây dựng và chỉ tiêu kỹ thuật của lô đất.
Bước 2: Thiết kế bản vẽ và chuẩn bị hồ sơ xin phép xây dựng
- Lập bộ bản vẽ thiết kế xin phép gồm mặt bằng, mặt cắt, mặt đứng, hệ thống thoát nước – cấp điện – kết cấu chịu lực, đúng tiêu chuẩn kỹ thuật TP.HCM.
- Chuẩn bị đơn đề nghị cấp phép, sổ đỏ, CMND/CCCD, ảnh hiện trạng và các giấy tờ liên quan.
- Đối với nhà 3 tầng, bắt buộc bổ sung hồ sơ thẩm duyệt PCCC.
BK-Saigon có đội ngũ kiến trúc sư, kỹ sư và pháp lý hỗ trợ lập hồ sơ đầy đủ – đảm bảo hợp lệ ngay lần đầu.
Bước 3: Nộp hồ sơ tại cơ quan có thẩm quyền
- Hình thức nộp:
- Trực tuyến qua Cổng Dịch vụ công Quốc gia
https://dichvucong.gov.vn/
- Trực tuyến qua Cổng Dịch vụ công Quốc gia
- Cán bộ sẽ kiểm tra tính hợp lệ, cấp phiếu tiếp nhận hồ sơ và hẹn trả kết quả.
Bước 4: Thẩm định hồ sơ và cấp giấy phép xây dựng
- Cơ quan chuyên môn kiểm tra hồ sơ, bản vẽ, khảo sát thực tế hiện trường, đối chiếu với quy hoạch khu vực.
- Nếu hồ sơ đạt yêu cầu → trình UBND TP. Thủ Đức ký cấp Giấy phép xây dựng.
- Nếu hồ sơ cần bổ sung → BK-Saigon hỗ trợ chỉnh sửa và nộp lại ngay trong ngày để không ảnh hưởng tiến độ.
Thời gian xử lý: 10–15 ngày làm việc; hồ sơ do BK-Saigon chuẩn bị có thể rút gọn còn 5–7 ngày.
Bước 5: Nhận giấy phép và khởi công xây dựng
- Chủ đầu tư nhận Giấy phép xây dựng bản gốc tại nơi nộp hồ sơ.
- Trước khi khởi công, cần:
- Niêm yết giấy phép xây dựng tại công trình.
- Thông báo khởi công cho UBND phường sở tại.
- Giấy phép có hiệu lực 12 tháng kể từ ngày cấp, được gia hạn tối đa 2 lần (mỗi lần 12 tháng).
Thời gian và chi phí xin giấy phép xây dựng nhà 3 tầng tại TP. Thủ Đức, TP.HCM
Khi thực hiện thủ tục xin giấy phép xây dựng nhà 3 tầng tại TP. Thủ Đức, chủ đầu tư cần quan tâm hai yếu tố quan trọng: thời gian xử lý hồ sơ và chi phí thực hiện. Việc hiểu rõ các yếu tố này giúp bạn chủ động về tiến độ thi công, ngân sách và tránh phát sinh chi phí không cần thiết.

Dưới đây là tổng hợp chi tiết do BK-Saigon cập nhật từ thực tế triển khai hàng trăm hồ sơ xin phép xây dựng tại khu vực TP. Thủ Đức, TP.HCM.
Thời gian xử lý hồ sơ xin phép xây dựng
Theo quy định của UBND TP. Thủ Đức, thời gian xét duyệt hồ sơ xin giấy phép xây dựng nhà ở riêng lẻ như nhà 3 tầng là:
- 10 – 15 ngày làm việc kể từ ngày nộp hồ sơ hợp lệ.
- Nếu công trình cần thẩm duyệt phòng cháy chữa cháy (PCCC), kiểm tra kết cấu chịu lực hoặc nằm trong khu quy hoạch chi tiết, thời gian có thể kéo dài thêm 3–5 ngày.
- Với dịch vụ của BK-Saigon, nhờ hồ sơ chuẩn – bản vẽ hợp lệ – quy trình nội bộ nhanh, thời gian xử lý được rút ngắn còn 5–7 ngày làm việc.
Chi phí xin giấy phép xây dựng nhà 3 tầng (tham khảo)
Chi phí làm hồ sơ xin phép phụ thuộc vào diện tích sàn, độ phức tạp của bản vẽ và yêu cầu kỹ thuật PCCC.
|
Loại công trình |
Chi phí trọn gói (VNĐ) |
Bao gồm |
|---|---|---|
|
Nhà 3 tầng diện tích ≤ 100m² |
8.000.000 – 10.000.000 |
Lệ phí hành chính, bản vẽ xin phép, nộp & nhận hồ sơ |
|
Nhà 3 tầng 100–200m² |
10.000.000 – 12.000.000 |
Hồ sơ, bản vẽ, PCCC, tư vấn & nộp hồ sơ trọn gói |
|
Nhà 3 tầng > 200m² hoặc có tầng hầm |
Báo giá theo thực tế |
Thẩm tra kết cấu, PCCC, thiết kế kỹ thuật, hồ sơ hoàn công |
BK-Saigon luôn báo giá minh bạch, trọn gói – không phát sinh chi phí ẩn, phù hợp cho cả nhà ở cá nhân, nhà phố hoặc nhà cho thuê.
Lưu ý quan trọng khi xin giấy phép xây dựng nhà 3 tầng tại TP. Thủ Đức, TP.HCM
Xin giấy phép xây dựng nhà 3 tầng là thủ tục pháp lý bắt buộc trước khi khởi công. Tuy nhiên, trên thực tế, nhiều hồ sơ bị trả lại hoặc kéo dài thời gian xử lý do không tuân thủ đúng quy định. Dưới đây là những lưu ý quan trọng được BK-Saigon tổng hợp từ kinh nghiệm thực tế, giúp chủ đầu tư ra giấy phép nhanh – đúng luật – không bị gián đoạn tiến độ thi công.

Kiểm tra kỹ loại đất và quy hoạch khu vực trước khi lập hồ sơ
- Khu đất phải là đất ở đô thị (ODT) hoặc đất thổ cư hợp pháp theo giấy chứng nhận quyền sử dụng đất.
- Không được xây dựng nếu khu đất nằm trong khu quy hoạch treo, hành lang bảo vệ hạ tầng kỹ thuật, kênh rạch hoặc đường giao thông quy hoạch.
- Trước khi nộp hồ sơ, nên tra cứu quy hoạch 1/2000 hoặc 1/500 tại Phòng Quản lý Đô thị TP. Thủ Đức hoặc nhờ BK-Saigon hỗ trợ tra cứu miễn phí.
Việc xác định sai quy hoạch là nguyên nhân hàng đầu khiến hồ sơ bị từ chối hoặc yêu cầu điều chỉnh bản vẽ.
Hồ sơ và bản vẽ phải đồng nhất thông tin pháp lý
- Bản vẽ thiết kế, sổ đỏ, CMND/CCCD và đơn xin phép phải trùng khớp thông tin về: họ tên chủ đầu tư, diện tích, hướng đất, số thửa, tờ bản đồ.
- Nếu có sai lệch nhỏ (ví dụ chênh lệch diện tích đất hoặc ký hiệu quy hoạch), hồ sơ sẽ bị yêu cầu chỉnh sửa, kéo dài thời gian xét duyệt.
- BK-Saigon luôn kiểm tra toàn bộ hồ sơ trước khi nộp, đảm bảo độ chính xác tuyệt đối 100%.
Bắt buộc có hồ sơ thẩm duyệt phòng cháy chữa cháy (PCCC)
- Đối với công trình từ 3 tầng trở lên, hoặc có tổng diện tích sàn trên 250m², cần nộp văn bản thẩm duyệt PCCC kèm hồ sơ xin phép.
- Hồ sơ PCCC phải do đơn vị tư vấn được cấp chứng chỉ hành nghề thực hiện.
- BK-Saigon hỗ trợ lập và thẩm duyệt hồ sơ PCCC song song với hồ sơ xây dựng, giúp rút ngắn thời gian ra giấy phép.
Không khởi công khi chưa có giấy phép xây dựng
- Theo Nghị định 16/2022/NĐ-CP, xây dựng không phép hoặc sai phép sẽ bị phạt từ 60 – 80 triệu đồng và buộc tháo dỡ công trình vi phạm.
- Trước khi khởi công, chủ đầu tư phải:
- Niêm yết giấy phép xây dựng tại công trình.
- Thông báo khởi công cho UBND phường sở tại.
- Nếu quá 12 tháng chưa khởi công, cần làm thủ tục gia hạn giấy phép (mỗi lần 12 tháng, tối đa 2 lần).
Nên sử dụng dịch vụ pháp lý chuyên nghiệp để đảm bảo tiến độ
- Hồ sơ tự làm thường sai sót ở bản vẽ kỹ thuật, thông tin quy hoạch, hoặc thiếu hồ sơ PCCC.
- BK-Saigon với kinh nghiệm thực hiện hàng trăm hồ sơ tại TP. Thủ Đức cam kết:
- Hồ sơ hợp lệ ngay lần đầu nộp.
- Ra giấy phép nhanh chỉ trong 5–7 ngày.
- Không phát sinh chi phí – không phải đi lại.
Dịch vụ xin giấy phép xây dựng nhà 3 tầng tại TP. Thủ Đức, TP.HCM – BK-Saigon
Với hơn 10 năm kinh nghiệm trong lĩnh vực pháp lý nhà đất và xây dựng, BK-Saigon tự hào là đơn vị hàng đầu chuyên xin giấy phép xây dựng nhà 3 tầng tại TP. Thủ Đức, TP.HCM. Chúng tôi hiểu rõ quy trình làm việc của các cơ quan nhà nước, cập nhật liên tục quy định mới, giúp khách hàng ra giấy phép nhanh – chuẩn – đúng pháp luật – không phát sinh chi phí.


>>>>> Xem thêm: Dịch vụ đo vẽ nhà đất trọn gói tại Tp. HCM
Liên hệ BK-Saigon – Dịch vụ pháp lý xây dựng uy tín hàng đầu TP.HCM
BK-Saigon – Đơn vị chuyên xin giấy phép xây dựng nhà 3 tầng tại TP. Thủ Đức, TP.HCM, mang đến dịch vụ trọn gói – nhanh – chuẩn – đúng pháp luật.
Chúng tôi giúp bạn ra giấy phép chỉ trong 7 ngày, tiết kiệm thời gian, chi phí và đảm bảo hợp pháp 100%.
Hotline/Zalo/Viber: 0977 960 616 (Mr. Hoan)
Website: https://phaplynhadathcm.vn
Email: bandososaigon@gmail.com
Hệ thống văn phòng tại TP.HCM:
- Trụ sở chính: 430 Nguyễn Xiển, P. Long Bình, TP. HCM
- Văn phòng 1: 29 Đồng Văn Cống, P. Cát Lái, TP. HCM
- Văn phòng 2: 47 Dương Đình Hội, P. Phước Long, TP. HCM
- Văn phòng 3: 51 Nguyễn Thị Thập, P. Tân Phú, TP.HCM
BK-Saigon – Giải pháp toàn diện cho hồ sơ xin giấy phép xây dựng nhà 3 tầng tại TP. Thủ Đức, TP.HCM.
Dịch vụ nhanh – chuẩn – đúng pháp luật – uy tín hàng đầu, giúp bạn khởi công thuận lợi, hợp pháp và an toàn tuyệt đối.
Tìm Kiếm Liên Quan
Kiểm tra giấy phép xây dựng online
Tra cứu giấy phép xây dựng TP HCM
Thủ tục xin giấy phép xây dựng nhà ở TPHCM
Nộp hồ sơ xin phép xây dựng online
Hệ số xây dựng TP Thủ Đức
Tra cứu giấy phép xây dựng TP Thủ Đức
Lệ phí xin giấy phép xây dựng nhà ở
Xin giấy phép xây dựng nhà cấp 4