Nhu cầu cấp phép xây dựng phường Tam Bình đang tăng mạnh trong những năm gần đây khi khu vực này trở thành một trong những điểm phát triển đô thị nổi bật của TP. HCM. Với tốc độ đô thị hóa nhanh, nhiều hộ gia đình có nhu cầu xây mới, cải tạo, nâng tầng nhà ở, dẫn đến nhu cầu xin giấy phép xây dựng ngày càng lớn. Tuy nhiên, việc chuẩn bị hồ sơ đúng quy định lại không hề đơn giản.

>>>>> Xem thêm: Dịch vụ xin giấy phép xây dựng tại Thủ Đức
Để đảm bảo hồ sơ được xét duyệt nhanh chóng và đúng pháp lý, nhiều người dân lựa chọn dịch vụ xin giấy phép xây dựng phường Tam Bình của BK-Saigon – đơn vị chuyên nghiệp, giàu kinh nghiệm trong xử lý hồ sơ xây dựng tại TP. HCM.
KHI NÀO BẠN CẦN XIN GIẤY PHÉP XÂY DỰNG?
Khi xây dựng hoặc cải tạo nhà ở tại đô thị, việc xin giấy phép là yêu cầu bắt buộc theo quy định pháp luật. Đối với khu vực Tam Bình – nơi có quy hoạch phức tạp và nhiều tuyến hẻm đang chuẩn hóa – việc nắm rõ khi nào cần xin giấy phép xây dựng giúp chủ đầu tư tránh vi phạm và đảm bảo công trình hợp pháp.


Dưới đây là các trường hợp bắt buộc phải thực hiện xin giấy phép xây dựng phường Tam Bình:
1. Xây dựng mới nhà ở hoặc công trình phụ
Dù quy mô nhỏ hay lớn, mọi công trình xây mới đều phải xin phép trước khi thi công.
2. Nâng tầng – cải tạo – mở rộng diện tích
Bao gồm:
- nâng thêm tầng,
- cơi nới ban công, sân thượng,
- mở rộng sàn, thay đổi công năng gây ảnh hưởng kết cấu.
3. Thay đổi kiến trúc, đặc biệt là mặt tiền
Mọi thay đổi liên quan đến kiến trúc bên ngoài đều phải xin phép để đảm bảo mỹ quan đô thị.
4. Công trình có tác động đến kết cấu chịu lực
Như thay dầm, cột, tường chịu lực, đục sàn… đều cần giấy phép.
Trường hợp được miễn giấy phép xây dựng
- Sửa chữa nhỏ bên trong nhà, không ảnh hưởng kết cấu và không thay đổi công năng.
- Công trình thuộc khu dự án đã có quy hoạch chi tiết 1/500 và được miễn phép theo quy định.
- Một số hạng mục tạm phục vụ thi công nội bộ.
Lưu ý quan trọng cho khu vực Tam Bình
Do Tam Bình có nhiều hẻm nhỏ và các đoạn chuẩn hóa theo quy hoạch Thủ Đức, nên các công trình phải tuân thủ nghiêm:
- mật độ xây dựng,
- khoảng lùi,
- chiều cao tối đa.
Nếu áp dụng sai quy định, hồ sơ rất dễ bị từ chối.
Vì thế, để xác định chính xác công trình của mình có phải xin phép hay không, nhiều gia chủ lựa chọn dịch vụ xin phép xây dựng phường Tam Bình nhằm hạn chế rủi ro và tiết kiệm thời gian.
HỒ SƠ CẤP PHÉP XÂY DỰNG PHƯỜNG TAM BÌNH GỒM NHỮNG GÌ?
Để quá trình cấp phép xây dựng phường Tam Bình diễn ra nhanh chóng và hạn chế tối đa việc bị trả hồ sơ, chủ đầu tư cần chuẩn bị một bộ hồ sơ đầy đủ, chính xác và đúng quy định kỹ thuật. Dưới đây là danh mục hồ sơ chuẩn theo yêu cầu của UBND phường Tam Bình:

1. Đơn đề nghị cấp giấy phép xây dựng
Theo mẫu chuẩn, bao gồm đầy đủ thông tin:
- Chủ đầu tư
- Địa chỉ công trình
- Quy mô xây dựng: diện tích, số tầng, mục đích sử dụng
- Loại công trình (xây mới / cải tạo / nâng tầng)
2. Giấy tờ chứng minh quyền sử dụng đất (Sổ hồng/Sổ đỏ)
Hồ sơ đất phải hợp pháp, không tranh chấp và đúng mục đích sử dụng đất ở.
Nếu đất vướng quy hoạch, chủ đầu tư nên tra cứu quy hoạch phường Tam Bình trước để xác định khả năng xin phép.
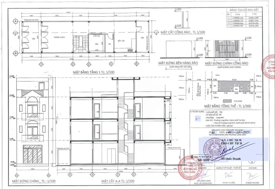
3. Bộ bản vẽ xin phép xây dựng theo tiêu chuẩn kỹ thuật
Đây là thành phần quan trọng nhất trong hồ sơ. Bộ bản vẽ phải do đơn vị có chuyên môn thực hiện, thể hiện rõ:
- Mặt bằng hiện trạng và mặt bằng các tầng
- Mặt đứng – mặt cắt công trình
- Bản vẽ cấp thoát nước
- Bản vẽ kết cấu móng – dầm – cột
- Bản vẽ thể hiện chỉ giới xây dựng, khoảng lùi, mật độ xây dựng
- Bản vẽ phải đúng tỷ lệ, rõ ràng và tuân thủ quy chuẩn xây dựng Việt Nam.
Hầu hết hồ sơ bị trả lại là do bản vẽ sai hoặc thiếu nội dung bắt buộc.
→ Vì vậy, nhiều chủ đầu tư lựa chọn dịch vụ lập bản vẽ xin phép xây dựng Tam Bình để đảm bảo chính xác ngay từ đầu.
4. Bản vẽ hiện trạng nhà/đất
Được thực hiện bởi kỹ sư đo đạc, theo hệ tọa độ chuẩn VN-2000, thể hiện rõ:
- Ranh giới thửa đất
- Kích thước – hiện trạng công trình
- Tình trạng nhà liền kề
Đây là dữ liệu quan trọng để cơ quan thẩm định đối chiếu trước khi cấp phép.
5. Ảnh chụp hiện trạng công trình/khu đất
Ảnh phải thể hiện:
- Mặt tiền
- Hẻm/đường vào
- Công trình liền kề
6. Cam kết đảm bảo an toàn công trình lân cận (nếu có)
Áp dụng với công trình xây chen, nhà liền kề cũ, nguy cơ ảnh hưởng khi đào móng.
7. Các giấy tờ bổ sung khác (tùy trường hợp)
- Văn bản thẩm tra thiết kế
- Xác nhận mật độ xây dựng
- Tờ khai thông tin công trình
Việc chuẩn bị hồ sơ đầy đủ và đúng kỹ thuật là chìa khóa để hồ sơ xin giấy phép xây dựng phường Tam Bình được duyệt nhanh. Nếu bạn không quen với quy trình, BK-Saigon có thể hỗ trợ đo vẽ hiện trạng, lập bản vẽ xin phép, và hoàn thiện trọn bộ hồ sơ chuyên nghiệp.
QUY TRÌNH – THỦ TỤC XIN CẤP PHÉP XÂY DỰNG PHƯỜNG TAM BÌNH
Để hồ sơ cấp phép xây dựng phường Tam Bình được xét duyệt nhanh và đúng quy định, chủ đầu tư cần nắm rõ quy trình thực hiện. Việc hiểu từng bước sẽ giúp hạn chế sai sót, tránh bị trả hồ sơ và rút ngắn thời gian xử lý. Dưới đây là quy trình chuẩn theo hướng dẫn của UBND phường Tam Bình

1. Kiểm tra quy hoạch – lộ giới – chỉ giới xây dựng
Trước khi lập bất kỳ bản vẽ nào, chủ đầu tư cần kiểm tra:
- Quy hoạch sử dụng đất của thửa đất
- Lộ giới đường/hẻm
- Chỉ giới xây dựng và khoảng lùi
- Khu vực có thuộc đất dự án, đất mở đường hay không
Phường Tam Bình có nhiều tuyến đường và hẻm đang được chuẩn hóa, nên kiểm tra quy hoạch là bước bắt buộc. Không ít trường hợp hồ sơ bị từ chối do công trình nằm trong chỉ giới dự kiến mở đường.
2. Đo vẽ hiện trạng và khảo sát công trình
Kỹ sư tiến hành đo vẽ hiện trạng nhà đất Tam Bình theo hệ tọa độ VN-2000, chụp ảnh đầy đủ mặt tiền và các góc liên quan.
Bước này đảm bảo bản vẽ xin phép xây dựng có dữ liệu chính xác để thẩm định.
3. Lập bộ hồ sơ xin giấy phép xây dựng
Hồ sơ được lập dựa trên:
- Thông tin quy hoạch
- Kết quả đo vẽ hiện trạng
- Nhu cầu xây dựng của chủ đầu tư
Bộ hồ sơ gồm:
- Đơn xin cấp phép xây dựng
- Giấy tờ quyền sử dụng đất
- Bản vẽ xin phép xây dựng (mặt bằng – mặt đứng – mặt cắt – cấp thoát nước – kết cấu)
- Ảnh hiện trạng
- Cam kết an toàn (nếu yêu cầu)
Đây là bước quan trọng nhất và cũng là bước dễ xảy ra sai sót, dẫn đến việc hồ sơ bị trả lại.
4. Nộp hồ sơ tại Cổng dịch vụ công quốc gia tiếp nhận là UBND phường Tam Binh
Hồ sơ xin giấy phép xây dựng phường Tam Bình được tiếp nhận tại UBND phường Tam Bình.
Tại đây, cán bộ sẽ kiểm tra hồ sơ ban đầu và yêu cầu bổ sung (nếu thiếu).
Chủ đầu tư sẽ nhận giấy hẹn trả kết quả theo quy định.
5. Thẩm định hồ sơ – bổ sung – điều chỉnh
Trong quá trình thẩm định, cơ quan chức năng sẽ kiểm tra:
- Sự phù hợp của bản vẽ với quy hoạch
- Pháp lý đất đai
- Các yêu cầu về kỹ thuật – an toàn
Nếu phát hiện sai sót, chủ đầu tư sẽ được yêu cầu:
- Chỉnh sửa bản vẽ
- Bổ sung giấy tờ
- Làm rõ thông tin kỹ thuật
Việc theo sát quá trình thẩm định sẽ giúp hạn chế hồ sơ bị kéo dài thời gian xử lý.
6. Nhận giấy phép xây dựng và tiến hành thi công hợp pháp
Khi hồ sơ hợp lệ, UBND sẽ cấp giấy phép xây dựng để chủ đầu tư triển khai thi công đúng quy định.
Thời gian xử lý trung bình từ 10–15 ngày làm việc, tùy theo độ phức tạp của công trình và mức độ hoàn chỉnh của hồ sơ.
THỜI GIAN & CHI PHÍ XIN PHÉP XÂY DỰNG TẠI PHƯỜNG TAM BÌNH
Khi thực hiện cấp phép xây dựng phường Tam Bình, chủ đầu tư luôn quan tâm nhất đến hai yếu tố: thời gian xử lý hồ sơ và chi phí cần chuẩn bị. Việc hiểu rõ hai yếu tố này sẽ giúp bạn chủ động kế hoạch thi công, tránh bị chậm tiến độ hoặc phát sinh chi phí không cần thiết.

1. Thời gian xin giấy phép xây dựng
Theo quy định của UBND TP. Thủ Đức, thời gian xử lý hồ sơ như sau:
• 10–15 ngày làm việc
Áp dụng đối với nhà ở riêng lẻ có hồ sơ đầy đủ, bản vẽ đúng quy chuẩn và không vướng quy hoạch.
• 15–20 ngày làm việc
Áp dụng cho hồ sơ có yếu tố kỹ thuật phức tạp hoặc cần thẩm tra thiết kế.
• Trên 20 ngày
Xảy ra khi:
- Hồ sơ lập sai, thiếu bản vẽ hoặc sai thông số kỹ thuật
- Thửa đất nằm trong khu vực có quy hoạch phức tạp
- Chủ đầu tư không kịp bổ sung hồ sơ theo yêu cầu
Do Tam Bình có nhiều khu vực hẻm nhỏ, đất quy hoạch hỗn hợp, nên việc chuẩn bị đúng ngay từ đầu ảnh hưởng rất lớn đến tốc độ xét duyệt.
2. Chi phí xin phép xây dựng phường Tam Bình
Chi phí sẽ thay đổi tùy thuộc vào đặc điểm của từng công trình, bao gồm:
a. Chi phí đo vẽ hiện trạng Tam Bình
Phụ thuộc vào diện tích, số tầng hiện trạng và độ phức tạp khi đo đạc.
b. Chi phí lập bản vẽ xin phép xây dựng
Bao gồm:
- Mặt bằng – mặt đứng – mặt cắt
- Bản vẽ cấp thoát nước
- Bản vẽ kết cấu móng
- Thể hiện chỉ giới, lộ giới, mật độ…
Đòi hỏi kỹ sư chuyên môn để đảm bảo đúng tiêu chuẩn.
c. Lệ phí cấp giấy phép xây dựng (theo quy định nhà nước)
Mức phí áp dụng chung cho toàn TP. Thủ Đức.
d. Chi phí dịch vụ xin phép xây dựng trọn gói (nếu thuê)
Bao gồm:
- Tư vấn – kiểm tra quy hoạch
- Đo vẽ hiện trạng
- Lập bản vẽ xin phép
- Hoàn thiện hồ sơ
- Nộp hồ sơ và theo dõi thẩm định cho đến khi có giấy phép
BK-Saigon cam kết:
⭐ Báo giá minh bạch – đúng hạng mục – không phát sinh
⭐ Tối ưu chi phí theo từng loại hồ sơ
Lý do nên sử dụng dịch vụ chuyên nghiệp
Việc tự làm hồ sơ thường dẫn đến sai sót kỹ thuật, làm kéo dài thời gian và làm tăng tổng chi phí. Do đó, nhiều gia chủ tại Tam Bình lựa chọn dịch vụ xin phép xây dựng phường Tam Bình của BK-Saigon để tiết kiệm thời gian – chi phí – đảm bảo ra giấy phép nhanh.
LỢI ÍCH KHI SỬ DỤNG DỊCH VỤ XIN PHÉP XÂY DỰNG TẠI BK-SAIGON
Thực hiện cấp phép xây dựng phường Tam Bình tưởng đơn giản nhưng lại chứa nhiều rủi ro nếu chủ đầu tư không nắm rõ quy hoạch, quy trình và yêu cầu kỹ thuật. Vì vậy, lựa chọn BK-Saigon – đơn vị chuyên sâu trong lĩnh vực xin phép xây dựng tại Thủ Đức – mang lại rất nhiều lợi ích thiết thực.


>>>>> Xem thêm: Dịch vụ đo vẽ nhà đất chuyên nghiệp tại Tp. HCM
Dưới đây là những ưu điểm nổi bật giúp BK-Saigon được khách hàng tin tưởng:
1. Am hiểu sâu quy hoạch Tam Bình – Bình Chiểu – Tam Phú
BK-Saigon có nhiều năm kinh nghiệm xử lý hồ sơ tại khu vực Tam Bình, hiểu rõ:
- Khu vực nào được phép xây dựng, khu vực nào vướng quy hoạch
- Mật độ – chiều cao công trình theo từng tuyến hẻm
- Các điểm cần lưu ý để tránh bị trả hồ sơ
Kiến thức thực tế này là lợi thế lớn, giúp hồ sơ của khách hàng phù hợp ngay từ đầu.
2. Chuẩn hóa hồ sơ kỹ thuật – bản vẽ đúng ngay từ lần đầu
Chúng tôi cung cấp trọn gói:
- Đo vẽ hiện trạng nhà đất Tam Bình
- Lập bản vẽ xin phép xây dựng chuẩn kỹ thuật
- Chuẩn bị đầy đủ giấy tờ pháp lý
- Kiểm tra chỉ giới – mật độ – chiều cao theo quy hoạch
Nhờ đó, hồ sơ được nộp đúng chuẩn, hạn chế tối đa sai sót kỹ thuật.
3. Rút ngắn thời gian xin phép xây dựng
Tự làm hồ sơ thường mất nhiều thời gian vì phải điều chỉnh, bổ sung.
BK-Saigon hiểu rõ quy trình và yêu cầu thẩm định, giúp:
- Tăng tỷ lệ hồ sơ được duyệt ngay
- Giảm thời gian chờ đợi
- Tiết kiệm chi phí phát sinh
4. Chi phí dịch vụ rõ ràng – minh bạch – phù hợp mọi nhu cầu
Giá dịch vụ tại BK-Saigon được báo cụ thể cho từng hạng mục:
- Đo vẽ
- Bản vẽ xin phép
- Hồ sơ pháp lý
- Nộp & theo dõi hồ sơ
Không phát sinh chi phí ngoài thỏa thuận, phù hợp nhiều mức ngân sách.
5. Đồng hành trọn đời công trình – hỗ trợ hậu kỳ đầy đủ
Không chỉ xin phép xây dựng, BK-Saigon còn hỗ trợ khách hàng:
- Điều chỉnh giấy phép xây dựng
- Xin hoàn công nhà ở Thủ Đức
- Xin số nhà
- Tư vấn pháp lý trong suốt quá trình thi công
Chúng tôi đồng hành cùng khách hàng từ lúc bắt đầu đến khi hoàn thiện công trình.
Với những lợi ích trên, BK-Saigon là lựa chọn hàng đầu cho những ai cần dịch vụ xin giấy phép xây dựng phường Tam Bình nhanh chóng – uy tín – chuẩn pháp lý.
CÁC DỊCH VỤ LIÊN QUAN TẠI PHƯỜNG TAM BÌNH
Ngoài nhu cầu cấp phép xây dựng phường Tam Bình, người dân và chủ đầu tư tại khu vực này còn cần nhiều thủ tục pháp lý – kỹ thuật liên quan đến nhà đất. Để hỗ trợ khách hàng toàn diện, BK-Saigon cung cấp hệ sinh thái dịch vụ đồng bộ, đảm bảo tính pháp lý, độ chính xác và rút ngắn thời gian xử lý.

1. Dịch vụ đo vẽ hiện trạng nhà đất Tam Bình
Đo vẽ hiện trạng là bước quan trọng trong hồ sơ xin phép xây dựng, hoàn công hoặc tách thửa.
BK-Saigon thực hiện đo vẽ bằng thiết bị chuẩn VN-2000, thể hiện đầy đủ:
- ranh giới thửa đất,
- kích thước chính xác,
- tình trạng công trình hiện hữu,
- nhà liền kề.
2. Lập bản vẽ xin phép xây dựng – bản vẽ thiết kế cơ sở
Phục vụ cho hồ sơ xin phép xây dựng, cải tạo, nâng tầng nhà ở.
Bản vẽ thể hiện rõ:
- mặt bằng – mặt đứng – mặt cắt,
- cấp thoát nước,
- kết cấu móng,
- chỉ giới – khoảng lùi – mật độ xây dựng.
Đây là thành phần quan trọng nhất trong hồ sơ xin phép, quyết định việc hồ sơ được duyệt nhanh hay bị trả lại.
3. Hoàn công nhà ở Thủ Đức
Sau khi xây dựng xong, chủ đầu tư cần lập hồ sơ hoàn công để cập nhật tài sản lên sổ hồng. BK-Saigon hỗ trợ:
- đo vẽ hoàn công,
- lập hồ sơ kỹ thuật,
- nộp và theo dõi hồ sơ cho đến khi có kết quả.
4. Tra cứu quy hoạch – tư vấn pháp lý xây dựng
Dịch vụ giúp khách hàng kiểm tra trước khi xây dựng:
- đất có vướng quy hoạch hay không,
- chỉ giới mở đường,
- quy định mật độ – chiều cao xây dựng,
- khả năng xin phép xây dựng nhà ở riêng lẻ.
Việc này giúp chủ đầu tư tránh rủi ro bị từ chối hồ sơ.
5. Tách thửa – hợp thửa – chuyển mục đích sử dụng đất
BK-Saigon hỗ trợ hồ sơ đất đai tại Tam Bình và toàn TP. Thủ Đức, phù hợp cho khách hàng có nhu cầu mua bán, phân lô, chỉnh lý đất.
6. Tư vấn & lập hồ sơ điều chỉnh giấy phép xây dựng
Trường hợp thay đổi thiết kế sau khi đã được cấp phép, BK-Saigon hỗ trợ lập hồ sơ điều chỉnh đúng quy định.
Nhờ cung cấp đầy đủ các dịch vụ liên quan, BK-Saigon trở thành địa chỉ tin cậy cho người dân Tam Bình khi cần hỗ trợ pháp lý – kỹ thuật trong quá trình xây dựng và hoàn thiện nhà ở.
THÔNG TIN LIÊN HỆ CẤP PHÉP PHƯỜNG TAM BÌNH
Việc thực hiện cấp phép xây dựng phường Tam Bình đúng quy định là bước quan trọng để đảm bảo công trình của bạn được thi công hợp pháp, an toàn và phù hợp quy hoạch. Tuy nhiên, do đặc thù Tam Bình có nhiều khu vực nằm trong chỉ giới mở đường, đất hỗn hợp và các tuyến hẻm cần tuân thủ mật độ – chiều cao xây dựng, quá trình xin phép dễ phát sinh sai sót nếu chủ đầu tư không nắm rõ quy định kỹ thuật.


>>>>> Xem thêm: Dịch vụ đo vẽ hoàn công nhà ở Thủ Đức
Thay vì tự làm hồ sơ và mất nhiều thời gian chỉnh sửa, bạn có thể lựa chọn dịch vụ chuyên nghiệp của BK-Saigon. Với hơn 10 năm kinh nghiệm xử lý hồ sơ xây dựng tại Thủ Đức, chúng tôi cam kết mang đến giải pháp nhanh chóng – chính xác – hợp pháp, giúp khách hàng nhận giấy phép trong thời gian ngắn nhất.
Liên hệ ngay để được tư vấn miễn phí và báo giá chi tiết:
Hotline/Zalo/Viber: 0977 960 616 (Mr. Hoan)
Website: https://phaplynhadathcm.vn
Email: bandososaigon@gmail.com
Hệ thống văn phòng BK-Saigon:
- 430 Nguyễn Xiển, P. Long Bình, TP. HCM
- 29 Đồng Văn Cống, P. Cát Lái, TP. HCM
- 47 Dương Đình Hội, P. Phước Long, TP. HCM
- 51 Nguyễn Thị Thập, P. Tân Phú, TP. HCM
BK-Saigon – Nhanh Chóng – Chuẩn Xác – Hợp Pháp – Chi Phí Minh Bạch, đồng hành cùng bạn trên mọi công trình tại phường Tam Bình.