TP. Thủ Đức – trung tâm phát triển năng động của TP.HCM – đang chứng kiến sự bùng nổ nhu cầu xây dựng nhà ở, nhà phố và công trình dân dụng. Tuy nhiên, để được phép khởi công hợp pháp, chủ đầu tư cần thực hiện đầy đủ thủ tục cấp phép xây dựng theo quy định của Luật Xây dựng 2014 (sửa đổi 2020). Việc thiếu hồ sơ, sai quy hoạch hoặc nộp sai cơ quan có thể khiến quá trình xét duyệt kéo dài. Với kinh nghiệm thực tế và am hiểu quy định địa phương, BK-Saigon mang đến dịch vụ trọn gói cấp phép xây dựng tại TP. Thủ Đức, TP.HCM – nhanh, chuẩn, đúng pháp luật, giúp bạn ra giấy phép trong 7 ngày, khởi công đúng tiến độ và hợp pháp 100%.
Căn cứ pháp lý và cơ quan có thẩm quyền cấp phép xây dựng tại TP. Thủ Đức, TP.HCM
Để thực hiện đúng thủ tục cấp phép xây dựng tại TP. Thủ Đức, chủ đầu tư cần hiểu rõ các căn cứ pháp lý và xác định đúng cơ quan có thẩm quyền cấp phép. Việc nắm chắc khung pháp luật sẽ giúp hồ sơ được thẩm định nhanh, hạn chế tình trạng bị yêu cầu bổ sung hoặc kéo dài thời gian xử lý.

Căn cứ pháp lý hiện hành về cấp phép xây dựng
Các quy định về hồ sơ, quy trình và điều kiện cấp phép xây dựng được căn cứ vào những văn bản pháp luật sau:
- Luật Xây dựng số 50/2014/QH13 ngày 18/6/2014 – quy định chi tiết về điều kiện, hồ sơ và trình tự cấp giấy phép xây dựng.
- Luật sửa đổi, bổ sung một số điều của Luật Xây dựng năm 2020 – đơn giản hóa thủ tục, rút ngắn thời gian giải quyết hồ sơ.
- Nghị định 15/2021/NĐ-CP – hướng dẫn chi tiết về quản lý chất lượng, quy trình thẩm định, phê duyệt và cấp phép công trình xây dựng.
- Thông tư 15/2016/TT-BXD – quy định mẫu đơn, thành phần hồ sơ và hướng dẫn chi tiết quy trình xin giấy phép xây dựng.
- Nghị định 16/2022/NĐ-CP – quy định xử phạt vi phạm hành chính trong hoạt động xây dựng (phạt đến 80 triệu đồng nếu xây không phép hoặc sai phép).
Đây là những căn cứ pháp lý quan trọng và bắt buộc mà chủ đầu tư cần nắm rõ trước khi tiến hành lập hồ sơ xin phép xây dựng.
Cơ quan có thẩm quyền cấp phép tại TP. Thủ Đức
Hiện nay, thẩm quyền cấp phép xây dựng được phân cấp rõ ràng giữa UBND TP. Thủ Đức và Sở Xây dựng TP.HCM:
- UBND TP. Thủ Đức:
- Cấp giấy phép xây dựng cho nhà ở riêng lẻ, nhà phố, nhà trọ, công trình dân dụng nhỏ lẻ trong phạm vi địa bàn.
- Thông qua Phòng Quản lý Đô thị TP. Thủ Đức để tiếp nhận, thẩm định và trình lãnh đạo UBND ký cấp phép.
- Sở Xây dựng TP.HCM:
- Có thẩm quyền cấp phép cho các công trình quy mô lớn, công trình cấp I, II hoặc các dự án có yếu tố kỹ thuật phức tạp.
- Đồng thời giám sát việc thực hiện quy hoạch xây dựng trên toàn địa bàn thành phố.
Lưu ý: Xác định đúng cơ quan cấp phép là bước rất quan trọng. Nếu nộp sai nơi, hồ sơ sẽ bị chuyển cấp hoặc trả lại, gây tốn thời gian và chi phí.
Vai trò hỗ trợ pháp lý của BK-Saigon trong quá trình cấp phép
BK-Saigon là đơn vị chuyên nghiệp trong việc xin giấy phép xây dựng tại TP.HCM, đặc biệt tại TP. Thủ Đức, với quy trình làm việc bài bản và am hiểu quy định pháp luật:
- Tư vấn đúng căn cứ pháp lý, hướng dẫn chi tiết quy trình cấp phép.
- Xác định chính xác cơ quan có thẩm quyền tiếp nhận hồ sơ.
- Soạn hồ sơ hợp lệ 100%, đúng biểu mẫu, đúng quy định pháp luật hiện hành.
- Theo dõi và xử lý hồ sơ nhanh gọn, giúp chủ đầu tư ra giấy phép chỉ trong 5–7 ngày làm việc.
Hồ sơ cần chuẩn bị khi thực hiện thủ tục cấp phép xây dựng tại TP. Thủ Đức, TP.HCM
Để xin cấp phép xây dựng tại TP. Thủ Đức được phê duyệt nhanh và hợp lệ, chủ đầu tư cần chuẩn bị bộ hồ sơ đúng theo quy định của Luật Xây dựng 2014 (sửa đổi 2020) và hướng dẫn tại Thông tư 15/2016/TT-BXD. Việc thiếu hoặc sai sót giấy tờ là nguyên nhân phổ biến khiến hồ sơ bị trả lại hoặc kéo dài thời gian xử lý.

>>>>> Xem thêm: Dịch vụ xin giấy phép xây dựng tại Tp. HCM
Dưới đây là thành phần hồ sơ chi tiết và những lưu ý quan trọng mà BK-Saigon tổng hợp từ thực tế triển khai hàng trăm hồ sơ tại TP. Thủ Đức.
Thành phần hồ sơ bắt buộc
- Đơn đề nghị cấp giấy phép xây dựng
- Theo mẫu quy định tại Phụ lục số 1 – Thông tư 15/2016/TT-BXD.
- Phải ghi rõ loại công trình, địa điểm, diện tích và quy mô xây dựng.
- Bản sao có chứng thực Giấy chứng nhận quyền sử dụng đất (sổ đỏ/sổ hồng)
- Chứng minh quyền sở hữu và sử dụng hợp pháp đối với khu đất.
- Phải thể hiện rõ mục đích sử dụng là đất ở đô thị (ODT) hoặc đất thổ cư hợp lệ.
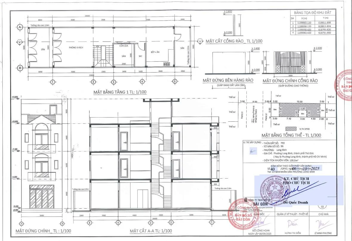
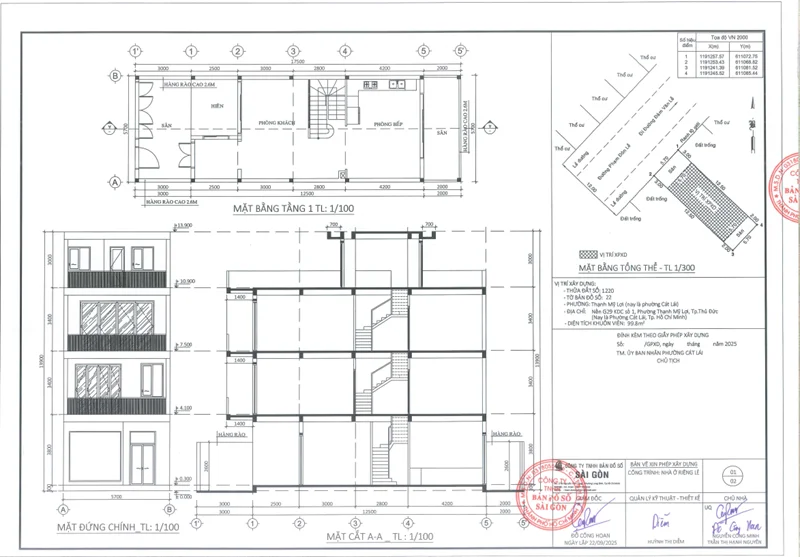
- Bộ bản vẽ thiết kế xin phép xây dựng (03 bộ)
Bao gồm:- Mặt bằng, mặt đứng, mặt cắt công trình (tỷ lệ 1/100 – 1/200).
- Sơ đồ vị trí, mặt bằng móng, cấp điện – thoát nước – kết cấu chịu lực.
- Tổng mặt bằng công trình trên lô đất thể hiện khoảng lùi và mật độ xây dựng.
Bản vẽ phải do đơn vị thiết kế có chứng chỉ hành nghề hợp lệ thực hiện.
- Văn bản thẩm duyệt PCCC (nếu có)
- Bắt buộc đối với nhà từ 3 tầng trở lên, công trình có tổng diện tích sàn > 250m² hoặc kinh doanh dịch vụ lưu trú.
- Giấy tờ cá nhân của chủ đầu tư
- Bản sao CMND/CCCD hoặc hộ chiếu (có chứng thực).
- Ảnh chụp hiện trạng khu đất và các công trình lân cận
- Dùng để cơ quan cấp phép đối chiếu ranh giới, chỉ giới xây dựng.
- Giấy ủy quyền hoặc hợp đồng dịch vụ (nếu ủy quyền)
- Trường hợp chủ đầu tư nhờ BK-Saigon hoặc đơn vị khác đại diện nộp hồ sơ.
Yêu cầu kỹ thuật đối với hồ sơ và bản vẽ
- Thông tin trên hồ sơ phải trùng khớp với sổ đỏ (tên chủ đầu tư, diện tích, hướng đất, số tờ bản đồ).
- Bản vẽ thể hiện rõ chỉ giới đường đỏ, chỉ giới xây dựng, mật độ, chiều cao công trình theo quy hoạch TP. Thủ Đức.
- Hồ sơ in 02 bộ (khổ A3 hoặc A4) có chữ ký và dấu xác nhận của chủ đầu tư và đơn vị thiết kế.
- Với công trình có tầng hầm, phải bổ sung bản vẽ biện pháp thi công hầm và báo cáo an toàn móng.
Nơi nộp hồ sơ cấp phép xây dựng
- Nộp trực tuyến: qua Cổng Dịch vụ công Quốc gia:
https://dichvucong.gov.vn/ - Sau khi tiếp nhận, cán bộ sẽ kiểm tra tính hợp lệ, cấp biên nhận và hẹn ngày trả kết quả.
Dịch vụ hỗ trợ hồ sơ cấp phép xây dựng của BK-Saigon
BK-Saigon cung cấp dịch vụ trọn gói lập hồ sơ xin phép xây dựng tại TP. Thủ Đức, bao gồm:
- Khảo sát thực tế khu đất và kiểm tra quy hoạch.
- Thiết kế bản vẽ xin phép đúng quy chuẩn TP.HCM.
- Soạn, in và hoàn thiện hồ sơ pháp lý.
- Đại diện nộp hồ sơ, theo dõi và nhận kết quả tận nơi.
Quy trình thực hiện thủ tục cấp phép xây dựng tại TP. Thủ Đức, TP.HCM
Để thực hiện thủ tục cấp phép xây dựng tại TP. Thủ Đức nhanh chóng, đúng quy định, chủ đầu tư cần nắm rõ quy trình gồm 5 bước cơ bản. Việc hiểu và tuân thủ đúng trình tự giúp hồ sơ được duyệt ngay lần đầu, tránh kéo dài thời gian hoặc bị trả lại. Dưới đây là hướng dẫn chi tiết quy trình chuẩn do BK-Saigon tổng hợp và áp dụng thành công cho hàng trăm hồ sơ thực tế.

Bước 1: Khảo sát hiện trạng khu đất và kiểm tra quy hoạch
Trước khi tiến hành xin phép, cần kiểm tra hiện trạng thực tế của khu đất và quy hoạch chi tiết xây dựng để đảm bảo công trình đủ điều kiện cấp phép.
- Xác định loại đất (đất ở đô thị, đất thổ cư hợp lệ).
- Tra cứu quy hoạch 1/2000 hoặc 1/500 để biết rõ các chỉ tiêu: mật độ xây dựng, hệ số sử dụng đất, chiều cao công trình, khoảng lùi.
- Kiểm tra khu đất có nằm trong quy hoạch treo, hành lang kỹ thuật, khu vực bảo tồn hoặc chỉ giới đường đỏ hay không.
Bước 2: Chuẩn bị hồ sơ xin phép xây dựng
Dựa trên kết quả khảo sát, chủ đầu tư cần chuẩn bị đầy đủ các giấy tờ:
- Đơn đề nghị cấp phép xây dựng (theo mẫu).
- Sổ đỏ/sổ hồng và CMND/CCCD của chủ đầu tư.
- Bộ bản vẽ xin phép xây dựng gồm mặt bằng, mặt cắt, mặt đứng, hệ thống cấp thoát nước, kết cấu chịu lực.
- Văn bản thẩm duyệt PCCC (nếu có).
Bước 3: Nộp hồ sơ tại cơ quan có thẩm quyền
- Nộp trực tuyến: qua Cổng Dịch vụ công Quốc gia:
https://dichvucong.gov.vn/ - Sau khi tiếp nhận, cán bộ sẽ kiểm tra tính hợp lệ, cấp biên nhận và hẹn ngày trả kết quả.
Bước 4: Thẩm định hồ sơ và cấp giấy phép xây dựng
- Phòng Quản lý Đô thị TP. Thủ Đức tiến hành kiểm tra hồ sơ, đối chiếu quy hoạch và khảo sát thực tế hiện trường.
- Nếu hồ sơ đầy đủ, hợp lệ → trình UBND TP. Thủ Đức ký cấp Giấy phép xây dựng.
- Nếu hồ sơ cần chỉnh sửa → BK-Saigon sẽ hỗ trợ bổ sung ngay trong ngày để không ảnh hưởng tiến độ.
Thời gian xử lý trung bình: 10–15 ngày làm việc kể từ ngày nộp hồ sơ hợp lệ.
Khi sử dụng dịch vụ của BK-Saigon, thời gian được rút ngắn còn 5–7 ngày làm việc.
Bước 5: Nhận giấy phép xây dựng và khởi công công trình
- Chủ đầu tư đến nơi nộp hồ sơ để nhận Giấy phép xây dựng bản gốc.
- Trước khi khởi công cần:
- Niêm yết giấy phép tại công trình.
- Thông báo khởi công cho UBND phường nơi xây dựng.
- Giấy phép có hiệu lực trong 12 tháng, được gia hạn tối đa 2 lần (mỗi lần 12 tháng) nếu chưa thi công.
Thời gian và chi phí thực hiện thủ tục cấp phép xây dựng tại TP. Thủ Đức, TP.HCM
Khi thực hiện thủ tục cấp phép xây dựng tại TP. Thủ Đức, chủ đầu tư cần nắm rõ thời gian xử lý hồ sơ và chi phí dự kiến để chủ động trong kế hoạch thi công. Việc hiểu đúng các yếu tố này giúp tránh phát sinh, tiết kiệm thời gian và đảm bảo tiến độ công trình. Dưới đây là thông tin chi tiết được BK-Saigon tổng hợp từ thực tế và quy định của UBND TP.HCM.


Thời gian xử lý hồ sơ cấp phép xây dựng
Theo quy định của Luật Xây dựng 2014 (sửa đổi 2020) và hướng dẫn của UBND TP. Thủ Đức, thời gian xử lý hồ sơ được quy định như sau:
- ⏱ 10 – 15 ngày làm việc kể từ ngày nhận đủ hồ sơ hợp lệ.
- Trường hợp cần thẩm duyệt phòng cháy chữa cháy (PCCC), kết cấu chịu lực, hoặc hồ sơ nằm trong khu quy hoạch đặc thù, thời gian có thể kéo dài thêm 3–5 ngày.
- Khi sử dụng dịch vụ trọn gói của BK-Saigon, thời gian được rút ngắn chỉ còn 5–7 ngày làm việc nhờ quy trình nội bộ nhanh, hồ sơ chuẩn và được hỗ trợ trực tiếp tại Phòng Quản lý Đô thị TP. Thủ Đức.
BK-Saigon đảm bảo 100% hồ sơ được duyệt đúng hạn, không bị trả lại, giúp khách hàng ra giấy phép nhanh chóng và khởi công đúng tiến độ.
Chi phí thực hiện thủ tục cấp phép xây dựng (tham khảo)
Chi phí làm hồ sơ xin phép phụ thuộc vào loại công trình, diện tích xây dựng và yêu cầu kỹ thuật. Dưới đây là bảng chi phí phổ biến tại khu vực TP. Thủ Đức, TP.HCM:
|
Loại công trình |
Chi phí trọn gói (VNĐ) |
Bao gồm |
|---|---|---|
|
Nhà ở riêng lẻ (1–2 tầng) |
8.000.000 – 10.000.000 |
Hồ sơ, bản vẽ, lệ phí hành chính, nộp & nhận kết quả |
|
Nhà phố (3–4 tầng) |
10.000.000 – 12.000.000 |
Hồ sơ, bản vẽ xin phép, PCCC, hoàn thiện thủ tục |
|
Nhà trọ, công trình thương mại nhỏ |
12.000.000 – 15.000.000 |
Hồ sơ, quy hoạch, PCCC, thẩm tra thiết kế |
|
Công trình lớn (trên 5 tầng, diện tích >300m²) |
Báo giá theo quy mô |
Tư vấn, bản vẽ, quy hoạch chi tiết, hoàn công |
Tất cả chi phí tại BK-Saigon được báo giá trọn gói – minh bạch – không phát sinh, đã bao gồm lệ phí hành chính, thiết kế bản vẽ và phí dịch vụ.
Các yếu tố ảnh hưởng đến chi phí và thời gian cấp phép
- Quy mô, diện tích và chiều cao công trình.
- Yêu cầu kỹ thuật bổ sung (tầng hầm, mái đúc, gác lửng…).
- Khu vực xây dựng (trong hẻm nhỏ, ven kênh rạch hoặc khu quy hoạch).
- Tình trạng pháp lý của lô đất (đất ở đô thị, đất chuyển mục đích, đất quy hoạch).
- Mức độ hoàn chỉnh của hồ sơ (đầy đủ, chính xác hay cần bổ sung).
Khi sử dụng dịch vụ của BK-Saigon, bạn sẽ được tư vấn miễn phí quy hoạch, kiểm tra hiện trạng, lập hồ sơ chuẩn ngay từ đầu, giúp tiết kiệm tối đa chi phí phát sinh.
Lưu ý quan trọng khi thực hiện thủ tục cấp phép xây dựng tại TP. Thủ Đức, TP.HCM
Thủ tục cấp phép xây dựng tại TP. Thủ Đức tưởng đơn giản nhưng trên thực tế, nhiều chủ đầu tư gặp khó khăn do thiếu kinh nghiệm hoặc chưa nắm rõ quy định pháp luật. Để tránh sai sót khiến hồ sơ bị trả lại hoặc công trình bị đình chỉ thi công, dưới đây là những lưu ý quan trọng mà BK-Saigon tổng hợp từ kinh nghiệm xử lý hàng trăm hồ sơ thực tế.

>>>>> Xem thêm: Dịch vụ xin giấy phép xây dựng tại thành phố Thủ Đức
Kiểm tra kỹ quy hoạch và tình trạng pháp lý của đất trước khi nộp hồ sơ
- Đất xin phép phải thuộc loại đất ở đô thị (ODT) hoặc đất thổ cư hợp pháp, không vướng quy hoạch treo hay hành lang bảo vệ hạ tầng kỹ thuật (kênh rạch, điện, giao thông).
- Nên kiểm tra trước bản đồ quy hoạch 1/2000 hoặc 1/500 tại Phòng Quản lý Đô thị TP. Thủ Đức hoặc nhờ BK-Saigon hỗ trợ tra cứu quy hoạch miễn phí.
Việc xác định sai quy hoạch là nguyên nhân phổ biến khiến hồ sơ bị từ chối hoặc phải chỉnh sửa bản vẽ.
Hồ sơ phải thống nhất tuyệt đối về thông tin
- Thông tin trên sổ đỏ, đơn xin phép, bản vẽ thiết kế và CMND/CCCD phải trùng khớp về họ tên, diện tích, hướng đất, số thửa, tờ bản đồ.
- Nếu có sai lệch nhỏ, hồ sơ sẽ bị yêu cầu bổ sung hoặc chỉnh sửa, làm chậm thời gian xét duyệt.
- BK-Saigon luôn kiểm tra toàn bộ hồ sơ trước khi nộp, đảm bảo độ chính xác 100%, giúp hồ sơ được duyệt ngay lần đầu.
Bản vẽ thiết kế phải đúng quy chuẩn kỹ thuật TP.HCM
- Bản vẽ phải thể hiện rõ: mặt bằng, mặt đứng, mặt cắt công trình, cấp thoát nước, kết cấu chịu lực và PCCC.
- Công trình cao từ 3 tầng trở lên hoặc diện tích sàn > 250m² cần có văn bản thẩm duyệt phòng cháy chữa cháy (PCCC).
- Bản vẽ phải được lập bởi đơn vị có chứng chỉ hành nghề thiết kế hợp lệ và có chữ ký, dấu xác nhận của kỹ sư và chủ đầu tư.
Không được khởi công khi chưa có giấy phép xây dựng
- Theo Nghị định 16/2022/NĐ-CP, nếu xây dựng khi chưa có giấy phép, chủ đầu tư có thể bị phạt từ 60 – 80 triệu đồng và buộc tháo dỡ công trình vi phạm.
- Trước khi khởi công, phải:
- Niêm yết giấy phép tại công trình.
- Thông báo khởi công cho UBND phường nơi xây dựng.
- Giấy phép có hiệu lực 12 tháng, được gia hạn tối đa 2 lần (mỗi lần 12 tháng) nếu chưa khởi công.
Dịch vụ hỗ trợ thủ tục cấp phép xây dựng tại TP. Thủ Đức – BK-Saigon
Khi chủ đầu tư không có thời gian hoặc kinh nghiệm thực hiện các thủ tục pháp lý, việc lựa chọn đơn vị dịch vụ cấp phép xây dựng chuyên nghiệp là giải pháp hiệu quả và an toàn nhất. Với hơn 10 năm kinh nghiệm trong lĩnh vực pháp lý nhà đất, BK-Saigon tự hào là đơn vị hàng đầu tại TP.HCM chuyên hỗ trợ thủ tục cấp phép xây dựng tại TP. Thủ Đức — nhanh, chuẩn và đúng pháp luật.


>>>>> Xem thêm: Dịch vụ đo vẽ hoàn công nhà ở tại thành phố Thủ Đức
Liên hệ ngay BK-Saigon để được hỗ trợ chuyên nghiệp
BK-Saigon – Đơn vị chuyên thực hiện thủ tục cấp phép xây dựng tại TP. Thủ Đức, TP.HCM, mang đến dịch vụ trọn gói – nhanh – chuẩn – đúng pháp luật.
Giúp khách hàng ra giấy phép trong 7 ngày, hồ sơ hợp lệ 100%, và khởi công hợp pháp, an toàn tuyệt đối.
Hotline/Zalo/Viber: 0977 960 616 (Mr. Hoan)
Website: https://phaplynhadathcm.vn
Email: bandososaigon@gmail.com
Hệ thống văn phòng BK-Saigon tại TP.HCM:
- Trụ sở chính: 430 Nguyễn Xiển, P. Long Bình, TP. Thủ Đức
- Văn phòng 1: 29 Đồng Văn Cống, P. Cát Lái, TP. Thủ Đức
- Văn phòng 2: 47 Dương Đình Hội, P. Phước Long, TP. Thủ Đức
- Văn phòng 3: 51 Nguyễn Thị Thập, P. Tân Phú, TP.HCM
BK-Saigon – Giải pháp toàn diện cho thủ tục cấp phép xây dựng tại TP. Thủ Đức, TP.HCM.
Dịch vụ nhanh – chuẩn – đúng pháp luật – chi phí hợp lý, giúp bạn yên tâm khởi công, hợp pháp 100%, đúng tiến độ.