Phường Thạnh Mỹ Tây, TP.HCM là khu dân cư phát triển nhanh với nhiều dự án nhà phố, biệt thự và công trình dân dụng mới. Khi nhu cầu xây dựng ngày càng tăng, việc xin giấy phép xây dựng phường Thạnh Mỹ Tây trở nên bắt buộc để đảm bảo công trình hợp pháp, đúng quy hoạch và an toàn. Hồ sơ xin phép cần được lập đúng quy định của UBND quận Bình Thạnh, có bản vẽ kỹ thuật, giấy tờ pháp lý rõ ràng. BK-Saigon – đơn vị chuyên xin giấy phép xây dựng TP.HCM – hỗ trợ trọn gói từ đo đạc, thiết kế, nộp hồ sơ đến nhận kết quả nhanh chóng, đúng luật.

Xin giấy phép xây dựng phường Thạnh Mỹ Tây, TP.HCM – Dịch vụ trọn gói, nhanh, đúng luật
Phường Thạnh Mỹ Tây nằm tại khu vực phát triển năng động của TP.HCM, nơi tập trung nhiều khu dân cư, nhà phố và công trình dân dụng mới. Khi nhu cầu xây dựng và cải tạo ngày càng tăng, việc xin giấy phép xây dựng phường Thạnh Mỹ Tây trở thành bước pháp lý bắt buộc giúp công trình được thi công hợp pháp, đúng quy hoạch và đảm bảo an toàn. Hồ sơ xin phép cần tuân thủ quy định của UBND quận Bình Thạnh, đầy đủ bản vẽ kỹ thuật, giấy tờ pháp lý và đúng quy trình.

>>>>> Xem thêm: Dịch vụ xin giấy phép xây dựng Tp. HCM
Khi nào cần xin giấy phép xây dựng tại phường Thạnh Mỹ Tây, TP.HCM
Theo quy định của Luật Xây dựng 2014 (sửa đổi, bổ sung năm 2020) và Nghị định 15/2021/NĐ-CP, mọi hoạt động xây mới, cải tạo, nâng tầng hoặc mở rộng công trình trong khu vực phường Thạnh Mỹ Tây, TP.HCM đều phải được cấp giấy phép xây dựng hợp pháp trước khi khởi công. Đây là bước bắt buộc nhằm đảm bảo công trình an toàn, đúng quy hoạch và không ảnh hưởng đến khu dân cư lân cận.

Các trường hợp cần xin giấy phép xây dựng phường Thạnh Mỹ Tây bao gồm:
- Xây dựng mới nhà ở riêng lẻ, nhà phố, công trình dân dụng.
- Cải tạo, nâng tầng, mở rộng diện tích sàn hoặc thay đổi kết cấu chịu lực.
- Xây dựng gara, nhà kho, tường rào, công trình phụ có nền móng kiên cố.
- Công trình nằm trong khu quy hoạch hoặc hành lang bảo vệ giao thông, điện, sông rạch.
Nếu chủ đầu tư tự ý thi công không xin phép hoặc xây sai giấy phép, có thể bị xử phạt hành chính, đình chỉ thi công hoặc buộc tháo dỡ. Do đó, việc chuẩn bị hồ sơ đúng quy định ngay từ đầu giúp công trình được thi công hợp pháp, tiết kiệm thời gian và chi phí.
Hồ sơ xin giấy phép xây dựng phường Thạnh Mỹ Tây gồm những gì
Để được UBND quận Bình Thạnh cấp giấy phép xây dựng hợp pháp, chủ đầu tư cần chuẩn bị hồ sơ xin giấy phép xây dựng phường Thạnh Mỹ Tây đúng quy định. Hồ sơ đầy đủ, chính xác giúp quá trình xét duyệt nhanh hơn, tránh bị trả lại hoặc yêu cầu bổ sung nhiều lần.

Thành phần hồ sơ bao gồm:
- Đơn đề nghị cấp giấy phép xây dựng
- Theo mẫu của Bộ Xây dựng, ghi rõ loại công trình, vị trí, diện tích, số tầng, quy mô và cam kết thi công đúng nội dung được cấp phép.
- Giấy chứng nhận quyền sử dụng đất (sổ hồng)
- Bản sao công chứng hợp lệ; nếu là đất đồng sở hữu, cần văn bản đồng thuận của các bên liên quan.
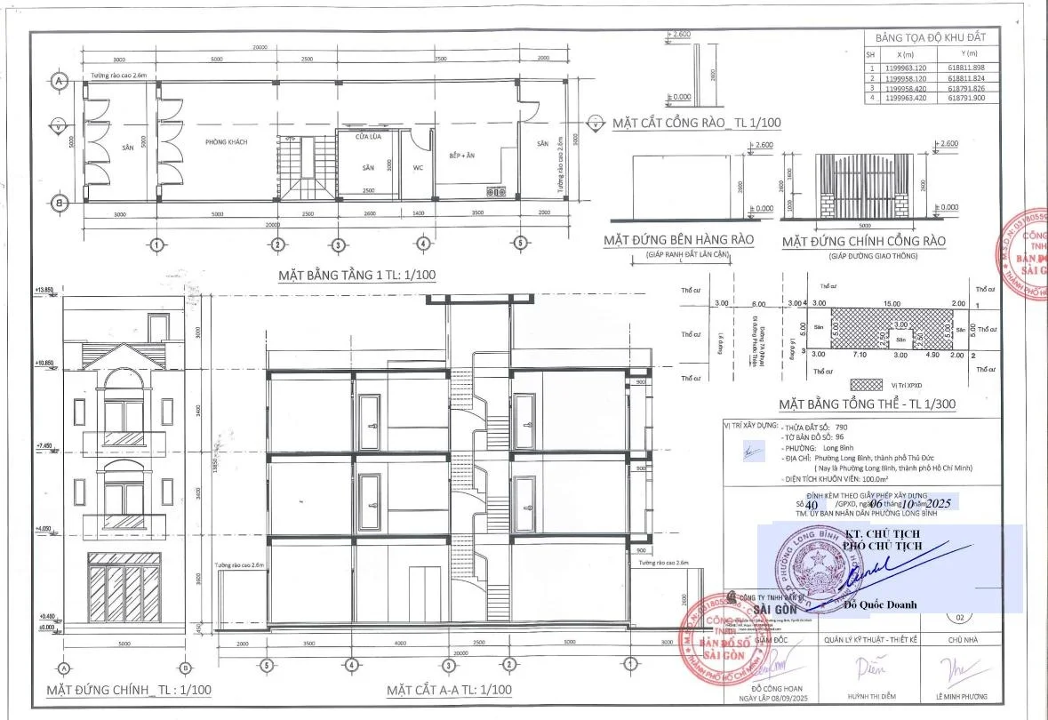
- Bản vẽ thiết kế xin phép xây dựng
- Gồm mặt bằng, mặt cắt, mặt đứng, sơ đồ cấp điện – cấp nước, có chữ ký kỹ sư thiết kế và dấu pháp nhân của đơn vị có chứng chỉ hành nghề.
- Bản vẽ hiện trạng hoặc bản đồ đo đạc vị trí thửa đất
- Thể hiện ranh giới, hành lang bảo vệ, chỉ giới đường đỏ và khu vực tiếp giáp.
- Giấy cam kết an toàn công trình liền kề
- Áp dụng cho các công trình xây sát nhà bên cạnh hoặc có nguy cơ ảnh hưởng kết cấu liền kề.
Một hồ sơ xin phép xây dựng hợp lệ giúp công trình được phê duyệt nhanh chóng, đảm bảo đúng quy hoạch và tiết kiệm thời gian xử lý cho chủ đầu tư.
Quy trình xin giấy phép xây dựng phường Thạnh Mỹ Tây, TP.HCM
Để hồ sơ được duyệt nhanh và hợp lệ, chủ đầu tư cần nắm rõ quy trình xin giấy phép xây dựng phường Thạnh Mỹ Tây theo hướng dẫn của UBND quận Bình Thạnh. Thực hiện đúng quy trình không chỉ giúp tiết kiệm thời gian mà còn đảm bảo công trình được cấp phép hợp pháp, đúng quy hoạch.

>>>>> Xem thêm: Dịch vụ xin giấy phép xây dựng Tp. Thủ Đức
Bước 1: Khảo sát thực tế và kiểm tra quy hoạch
Kỹ sư hoặc đơn vị dịch vụ tiến hành đo đạc, xác định ranh giới thửa đất, mật độ xây dựng, chiều cao tối đa và khoảng lùi theo quy hoạch 1/2000 tại khu vực phường Thạnh Mỹ Tây.
Bước 2: Lập bản vẽ thiết kế và hồ sơ kỹ thuật xin phép
Đơn vị thiết kế có chứng chỉ hành nghề sẽ thực hiện bản vẽ mặt bằng, mặt cắt, mặt đứng, sơ đồ kỹ thuật điện – nước; hồ sơ được soạn đúng mẫu quy định của Bộ Xây dựng.
Bước 3: Nộp hồ sơ và theo dõi thẩm định
Chủ đầu tư nộp hồ sơ tại Bộ phận tiếp nhận hồ sơ của UBND quận Bình Thạnh hoặc qua Cổng Dịch vụ công Quốc gia (https://dichvucong.gov.vn). Cơ quan thụ lý sẽ kiểm tra tính hợp lệ, yêu cầu bổ sung nếu cần và hẹn ngày trả kết quả.
Bước 4: Nhận giấy phép xây dựng và tiến hành thi công
Sau khi hồ sơ được phê duyệt, chủ đầu tư nhận giấy phép xây dựng bản gốc, niêm yết tại công trình và có thể khởi công theo đúng nội dung được cấp phép.
Việc thực hiện đúng thủ tục xin phép xây dựng phường Thạnh Mỹ Tây giúp công trình được thi công hợp pháp, tránh rủi ro bị đình chỉ hoặc xử phạt hành chính.
Chi phí xin giấy phép xây dựng phường Thạnh Mỹ Tây, TP.HCM
Khi chuẩn bị xây nhà, nhiều người dân và chủ đầu tư quan tâm đến chi phí xin giấy phép xây dựng phường Thạnh Mỹ Tây để dự trù kinh phí phù hợp. Mức phí sẽ thay đổi tùy vào quy mô công trình, vị trí khu đất và hình thức dịch vụ mà bạn lựa chọn.

Lệ phí hành chính Nhà nước
Theo quy định tại Thông tư 250/2016/TT-BTC, mức lệ phí hiện hành tại TP.HCM như sau:
- Nhà ở riêng lẻ: 75.000 – 150.000 đồng/lần hồ sơ.
- Công trình dân dụng hoặc thương mại nhỏ: 300.000 – 500.000 đồng/lần hồ sơ.
Khoản phí này nộp trực tiếp cho UBND quận Bình Thạnh khi nộp hồ sơ cấp phép.
Chi phí đo đạc và lập bản vẽ kỹ thuật
Bao gồm đo ranh đất, lập bản vẽ hiện trạng, bản vẽ xin phép theo tỷ lệ chuẩn (1/50 – 1/200). Mức phí trung bình từ 1.000.000 – 2.000.000 đồng, tùy diện tích và độ phức tạp của công trình.
Chi phí dịch vụ trọn gói BK-Saigon
BK-Saigon cung cấp dịch vụ xin giấy phép xây dựng TP.HCM trọn gói, bao gồm: đo đạc, thiết kế, nộp và nhận kết quả, với chi phí chỉ từ 8.000.000 – 15.000.000 đồng.
Tất cả được báo giá minh bạch, có hợp đồng rõ ràng và không phát sinh ngoài thỏa thuận.
Lợi ích khi thuê dịch vụ xin giấy phép xây dựng tại BK-Saigon
Thủ tục xin giấy phép xây dựng phường Thạnh Mỹ Tây đòi hỏi kiến thức pháp lý, kỹ thuật và quy hoạch đô thị. Nếu tự làm, chủ đầu tư dễ gặp khó khăn do thiếu bản vẽ đúng mẫu, hồ sơ không đủ hoặc bị trả lại nhiều lần. Vì vậy, lựa chọn BK-Saigon – đơn vị chuyên xin giấy phép xây dựng TP.HCM – là giải pháp giúp bạn tiết kiệm thời gian, chi phí và đảm bảo công trình được cấp phép hợp pháp ngay từ lần đầu.

>>>>> Xem thêm: Dịch vụ đo vẽ nhà đất trọn gói Tp. HCM
Hồ sơ hợp lệ 100% – được duyệt nhanh chóng
BK-Saigon có đội ngũ kỹ sư, kiến trúc sư và chuyên viên pháp lý am hiểu quy định tại quận Bình Thạnh, đảm bảo mọi hồ sơ đều đúng biểu mẫu, tỷ lệ bản vẽ chuẩn, có đủ chữ ký và chứng chỉ hành nghề.
Tiết kiệm thời gian – không cần đi lại nhiều
Từ khâu đo đạc, thiết kế, nộp hồ sơ đến khi nhận kết quả, tất cả được BK-Saigon thực hiện trọn gói, giúp khách hàng không phải tốn công đi lại.
Tư vấn miễn phí – chi phí rõ ràng
Tư vấn quy hoạch, chỉ giới xây dựng, mật độ và chiều cao tầng hoàn toàn miễn phí; hợp đồng minh bạch, cam kết không phát sinh chi phí.
Với hơn 10 năm kinh nghiệm trong xin giấy phép xây dựng nhà ở tại TP.HCM, BK-Saigon là đối tác uy tín, giúp công trình của bạn được thi công nhanh – chuẩn – hợp pháp.
Liên hệ dịch vụ xin giấy phép xây dựng phường Thạnh Mỹ Tây, TP.HCM
Nếu bạn đang có nhu cầu xây mới, sửa chữa hoặc hoàn công công trình tại phường Thạnh Mỹ Tây, TP.HCM, hãy để BK-Saigon đồng hành cùng bạn trong toàn bộ quá trình pháp lý. Với hơn 10 năm kinh nghiệm trong lĩnh vực xin giấy phép xây dựng TP.HCM, BK-Saigon đảm bảo hồ sơ hợp lệ 100%, được duyệt nhanh và đúng quy định của UBND quận Bình Thạnh.


Chúng tôi cung cấp dịch vụ xin giấy phép xây dựng phường Thạnh Mỹ Tây trọn gói, bao gồm:
- Khảo sát và đo đạc hiện trạng khu đất.
- Thiết kế bản vẽ xin phép đúng quy chuẩn thành phố.
- Soạn hồ sơ pháp lý, nộp và theo dõi tại cơ quan chức năng.
- Nhận giấy phép xây dựng bản gốc và bàn giao tận nơi.
- Tư vấn quy hoạch, mật độ và chiều cao xây dựng hoàn toàn miễn phí.
Hotline / Zalo / Viber: 0977 960 616 (Mr. Hoan)
Website: https://phaplynhadathcm.vn
Email: bandososaigon@gmail.com
Hệ thống văn phòng tại TP.HCM:
- Trụ sở chính: 430 Nguyễn Xiển, P. Long Bình, TP. HCM
- Văn phòng 1: 29 Đồng Văn Cống, P. Cát Lái, TP. HCM
- Văn phòng 2: 47 Dương Đình Hội, P. Phước Long, TP. HCM
- Văn phòng 3: 51 Nguyễn Thị Thập, P. Tân Phú, TP. HCM
BK-Saigon – Dịch vụ xin giấy phép xây dựng phường Thạnh Mỹ Tây, TP.HCM
Cam kết “Nhanh – Chuẩn – Hợp pháp – Tiết kiệm chi phí”, giúp bạn khởi công an toàn – đúng tiến độ – đúng quy định pháp luật.