Thủ Đức – khu đô thị trẻ và năng động của TP.HCM – đang phát triển mạnh mẽ với hàng loạt dự án nhà ở, khu dân cư và công trình thương mại. Cùng với tốc độ đô thị hóa, nhu cầu xin giấy phép xây dựng tại Thủ Đức ngày càng tăng cao để đảm bảo công trình hợp pháp, đúng quy hoạch và an toàn pháp lý. Tuy nhiên, quy trình thủ tục hành chính phức tạp khiến nhiều người gặp khó khăn trong việc chuẩn bị hồ sơ, bản vẽ và nộp cấp phép. BK-Saigon mang đến dịch vụ xin giấy phép xây dựng trọn gói tại Thủ Đức, hỗ trợ từ tư vấn, thiết kế đến nộp hồ sơ – giúp bạn tiết kiệm thời gian, chi phí và nhận giấy phép nhanh, đúng tiến độ.
Khi nào cần xin giấy phép xây dựng tại Thủ Đức?
Theo Luật Xây dựng 2020 và các quy định của Sở Xây dựng TP.HCM, hầu hết các công trình tại TP. Thủ Đức – dù là nhà ở riêng lẻ, công trình dân dụng hay công trình kinh doanh – đều phải có giấy phép xây dựng hợp lệ trước khi khởi công. Việc xin giấy phép xây dựng tại Thủ Đức không chỉ là yêu cầu pháp lý bắt buộc mà còn là cơ sở để đảm bảo quyền lợi hợp pháp của chủ đầu tư khi hoàn công, sang nhượng hoặc thế chấp tài sản sau này.

Các trường hợp bắt buộc phải xin giấy phép:
- Xây mới nhà ở, biệt thự, nhà phố trong khu dân cư hoặc khu quy hoạch.
- Cải tạo, nâng tầng, mở rộng diện tích hoặc thay đổi kết cấu chịu lực.
- Sửa chữa công trình làm thay đổi công năng sử dụng hoặc kiến trúc mặt tiền.
- Xây dựng tường rào, mái che, công trình phụ có ảnh hưởng đến không gian công cộng.
Các trường hợp được miễn giấy phép xây dựng:
- Công trình thuộc dự án đã có quy hoạch chi tiết 1/500 được phê duyệt.
- Công trình tạm phục vụ thi công hoặc mục đích ngắn hạn.
- Nhà ở tại khu vực nông thôn không nằm trong quy hoạch đô thị (không áp dụng với Thủ Đức).
Tuy nhiên, trên thực tế, để xác định chính xác công trình của bạn có cần xin phép hay không, bạn nên liên hệ BK-Saigon để được tư vấn thủ tục xin giấy phép xây dựng Thủ Đức miễn phí, nhanh chóng và đúng quy định.
BK-Saigon – Tư vấn chi tiết từng trường hợp xin giấy phép xây dựng tại Thủ Đức, đảm bảo đúng quy hoạch, đúng pháp luật.
Hồ sơ xin giấy phép xây dựng Thủ Đức gồm những gì?
Để xin giấy phép xây dựng tại Thủ Đức được xét duyệt nhanh và thuận lợi, việc chuẩn bị hồ sơ đầy đủ và đúng quy định là yếu tố quan trọng hàng đầu. Một bộ hồ sơ xin giấy phép xây dựng Thủ Đức đạt chuẩn không chỉ giúp rút ngắn thời gian xử lý mà còn hạn chế tình trạng bị trả lại hoặc yêu cầu bổ sung.

>>>>> Xem thêm: Dịch vụ làm giấy phép tại Tp. Thủ Đức
Thành phần hồ sơ xin giấy phép xây dựng bao gồm:
- Đơn đề nghị cấp giấy phép xây dựng
- Theo mẫu chuẩn của Bộ Xây dựng (Thông tư 15/2016/TT-BXD).
- Ghi rõ loại công trình, địa điểm, quy mô, diện tích và mục đích xây dựng.
- Giấy chứng nhận quyền sử dụng đất (Sổ đỏ)
- Bản sao có chứng thực hợp pháp, thể hiện rõ quyền sử dụng đất của chủ đầu tư.
- Nếu đất đồng sở hữu, cần có văn bản đồng thuận hoặc ủy quyền hợp lệ.
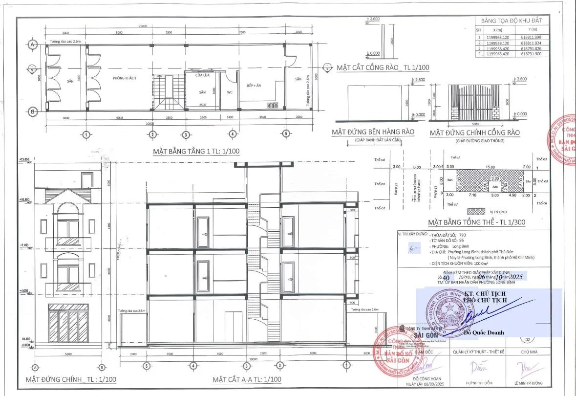
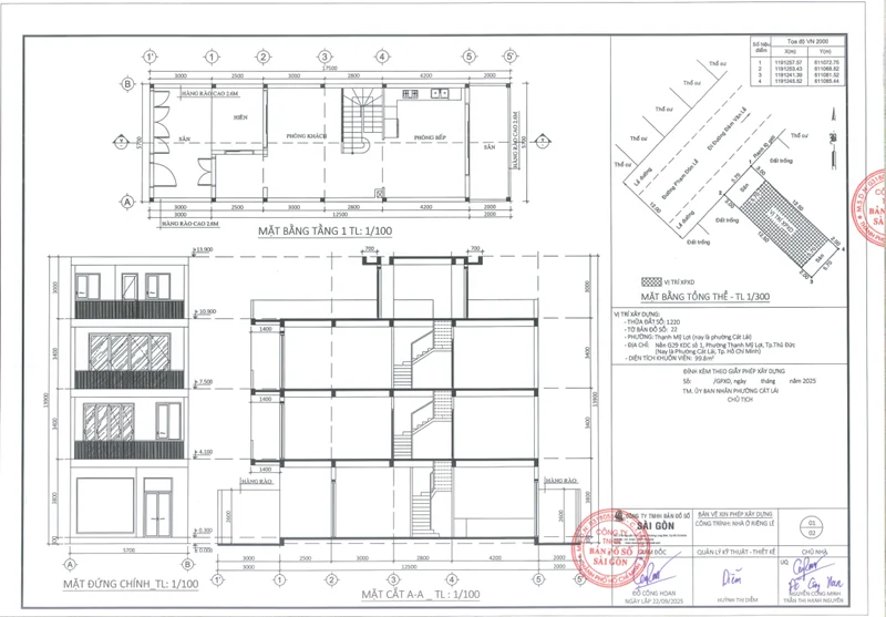
- Bản vẽ thiết kế xin phép xây dựng (03 bộ)
- Thể hiện rõ mặt bằng vị trí công trình, mặt đứng, mặt cắt, hệ thống cấp – thoát nước, điện và các hạng mục phụ trợ.
- Do đơn vị có chứng chỉ hành nghề thiết kế thực hiện và có dấu, chữ ký hợp pháp.
- Phải phù hợp với quy hoạch 1/500 hoặc chỉ giới xây dựng của khu vực Thủ Đức.
- Bản cam kết đảm bảo an toàn cho công trình lân cận (nếu có)
- Bắt buộc với các công trình xây sát ranh hoặc xây chen trong khu dân cư.
- Giấy tờ bổ sung khác (tùy trường hợp)
- Thẩm duyệt phòng cháy chữa cháy (PCCC) đối với công trình sản xuất, kinh doanh.
- Giấy phép đầu tư hoặc quyết định chủ trương đầu tư (với doanh nghiệp).
- Hồ sơ khảo sát địa chất hoặc kết cấu (nếu là công trình lớn, cao tầng).
Quy trình xin giấy phép xây dựng tại Thủ Đức
Việc xin giấy phép xây dựng tại Thủ Đức tuy là thủ tục hành chính bắt buộc, nhưng nếu nắm rõ quy trình, bạn hoàn toàn có thể chủ động thời gian và tránh những rắc rối phát sinh. Dưới đây là quy trình xin giấy phép xây dựng Thủ Đức chuẩn nhất mà BK-Saigon đang áp dụng để hỗ trợ khách hàng nhanh – đúng – đủ hồ sơ.

Bước 1: Khảo sát thực tế & tư vấn quy hoạch
Trước tiên, BK-Saigon sẽ tiến hành khảo sát hiện trạng khu đất, xác định chỉ giới xây dựng, mật độ, chiều cao và quy hoạch khu vực.
Từ đó, chuyên viên pháp lý sẽ tư vấn cho bạn:
- Công trình có đủ điều kiện xin phép hay không.
- Loại giấy phép cần xin (xây mới, sửa chữa, cải tạo, tạm…).
- Hướng dẫn điều chỉnh thiết kế nếu có điểm chưa phù hợp với quy hoạch đô thị Thủ Đức.
Bước 2: Chuẩn bị hồ sơ và bản vẽ xin phép xây dựng
Sau khi thống nhất phương án, BK-Saigon tiến hành soạn hồ sơ xin giấy phép xây dựng Thủ Đức theo đúng quy định.
Bao gồm:
- Đơn đề nghị cấp phép xây dựng (theo mẫu Bộ Xây dựng).
- Bản vẽ xin phép xây dựng do kiến trúc sư có chứng chỉ hành nghề thực hiện.
- Giấy tờ pháp lý về quyền sử dụng đất (sổ đỏ).
Tất cả hồ sơ sẽ được kiểm tra kỹ trước khi nộp để đảm bảo hợp lệ 100%.
Bước 3: Nộp hồ sơ và theo dõi xét duyệt
Tùy vào loại công trình, hồ sơ được nộp tại:
- UBND TP. Thủ Đức (Phòng Quản lý đô thị) đối với nhà ở riêng lẻ, công trình nhỏ.
- Sở Xây dựng TP.HCM đối với công trình quy mô lớn, văn phòng, nhà xưởng.
BK-Saigon sẽ đại diện khách hàng nộp hồ sơ, đóng lệ phí, nhận biên nhận và theo dõi tiến trình xử lý. Nếu cơ quan yêu cầu bổ sung hoặc điều chỉnh, chúng tôi sẽ xử lý ngay trong 24 giờ, đảm bảo hồ sơ được duyệt nhanh nhất.
Bước 4: Nhận kết quả và bàn giao giấy phép xây dựng
Sau khi hồ sơ được xét duyệt, BK-Saigon sẽ đến nhận giấy phép xây dựng và bàn giao tận nơi cho khách hàng.
Kèm theo đó là bản vẽ đóng dấu xác nhận, giúp bạn yên tâm khi tiến hành thi công.
Thời gian xử lý trung bình:
- 10–15 ngày làm việc đối với nhà ở dân dụng.
- 20–30 ngày đối với công trình quy mô lớn.
Lợi ích khi làm thủ tục qua BK-Saigon
- Không cần đi lại – BK-Saigon lo toàn bộ hồ sơ và thủ tục.
- Hồ sơ chính xác, đúng mẫu, hạn chế bị trả lại.
- Báo cáo tiến độ thường xuyên – hỗ trợ đến khi nhận phép.
- Tư vấn miễn phí quy hoạch và thiết kế phù hợp với từng khu vực Thủ Đức.
Chi phí và thời gian xin giấy phép xây dựng Thủ Đức
Khi thực hiện xin giấy phép xây dựng tại Thủ Đức, hai yếu tố mà hầu hết khách hàng quan tâm nhất là thời gian xử lý hồ sơ và chi phí dịch vụ. Việc nắm rõ thông tin này giúp chủ đầu tư chủ động hơn trong việc lên kế hoạch khởi công, tránh gián đoạn hoặc phát sinh chi phí không cần thiết.

>>>>> Xem thêm: Dịch vụ làm giấy phép xây dựng tại Tp. HCM
Thời gian xin giấy phép xây dựng Thủ Đức
Theo quy định của Luật Xây dựng 2020 và hướng dẫn từ UBND TP. Thủ Đức, thời gian cấp phép cụ thể như sau:
|
Loại công trình |
Thời gian xử lý hồ sơ |
|---|---|
|
Nhà ở riêng lẻ, nhà phố (1–3 tầng) |
10 – 15 ngày làm việc |
|
Biệt thự, công trình dân dụng lớn |
15 – 20 ngày làm việc |
|
Nhà xưởng, văn phòng, công trình kinh doanh |
20 – 30 ngày làm việc |
|
Hồ sơ điều chỉnh, cấp lại, bổ sung |
3 – 5 ngày làm việc kể từ khi nộp đủ hồ sơ hợp lệ |
Thời gian có thể thay đổi tùy vào tính phức tạp của công trình, mức độ hoàn chỉnh của hồ sơ, và tiến độ xử lý của cơ quan cấp phép.
Khi sử dụng dịch vụ xin giấy phép xây dựng Thủ Đức tại BK-Saigon, hồ sơ của bạn luôn được ưu tiên xử lý nhanh chóng, đảm bảo đúng tiến độ thi công dự kiến.
Chi phí xin giấy phép xây dựng Thủ Đức
Chi phí làm giấy phép xây dựng tại Thủ Đức phụ thuộc vào loại công trình, diện tích, quy mô và yêu cầu bản vẽ. Dưới đây là bảng giá tham khảo do BK-Saigon tổng hợp:
|
Loại công trình |
Phạm vi công việc |
Chi phí trọn gói (VNĐ) |
|---|---|---|
|
Nhà ở riêng lẻ (1–3 tầng) |
Tư vấn, hồ sơ, bản vẽ, nộp & nhận kết quả |
3.000.000 – 4.500.000 |
|
Nhà phố 4 tầng trở lên |
Hồ sơ xin phép, bản vẽ kỹ thuật, quy hoạch |
4.500.000 – 6.000.000 |
|
Biệt thự, công trình dân dụng lớn |
Hồ sơ, bản vẽ kết cấu, xin phép xây dựng |
6.000.000 – 8.000.000 |
|
Nhà xưởng, kho, văn phòng |
Hồ sơ pháp lý, bản vẽ PCCC, quy hoạch |
Báo giá riêng theo quy mô |
Lưu ý:
- Chi phí trên đã bao gồm lệ phí hành chính và dịch vụ trọn gói.
- Không phát sinh thêm phụ phí trong suốt quá trình thực hiện.
- Đối với các công trình phức tạp hoặc ngoài khu dân cư, BK-Saigon sẽ báo giá chi tiết riêng sau khi khảo sát.
Những lỗi thường gặp khi tự xin giấy phép xây dựng tại Thủ Đức
Trên thực tế, không ít chủ nhà hoặc nhà thầu tự thực hiện thủ tục xin giấy phép xây dựng tại Thủ Đức để tiết kiệm chi phí. Tuy nhiên, do thiếu kinh nghiệm và hiểu biết pháp lý, nhiều hồ sơ bị trả lại nhiều lần, khiến công trình chậm tiến độ hoặc không được cấp phép. Dưới đây là những lỗi phổ biến nhất mà BK-Saigon thường gặp khi hỗ trợ khách hàng sau khi tự nộp hồ sơ.

Hồ sơ thiếu hoặc sai thông tin pháp lý
Đây là lỗi chiếm tỷ lệ cao nhất. Nhiều người quên nộp:
- Giấy tờ chứng minh quyền sử dụng đất (sổ đỏ).
- Văn bản đồng sở hữu hoặc ủy quyền (nếu đất có nhiều chủ).
- Giấy tờ cá nhân trùng khớp với thông tin trong sổ đỏ.
Khi hồ sơ không thống nhất, cơ quan cấp phép sẽ yêu cầu bổ sung hoặc từ chối xét duyệt.
Bản vẽ thiết kế không đúng quy hoạch hoặc sai tỷ lệ
Một lỗi phổ biến khác là bản vẽ xin phép không đúng quy chuẩn kỹ thuật, thiếu các thông tin bắt buộc như:
- Mặt bằng tổng thể, mặt cắt, mặt đứng công trình.
- Ký hiệu cấp thoát nước, điện, kết cấu.
- Dấu xác nhận của kiến trúc sư hành nghề hợp pháp.
Khi bản vẽ không đạt yêu cầu, hồ sơ sẽ bị trả lại để chỉnh sửa, mất thêm thời gian và chi phí.
BK-Saigon có đội ngũ kiến trúc sư chuyên nghiệp, đảm bảo bản vẽ đúng mẫu – đúng quy hoạch – đúng luật.
Nộp sai cơ quan thẩm quyền
Tùy theo loại công trình mà nơi nộp hồ sơ khác nhau:
- UBND TP. Thủ Đức (Phòng Quản lý đô thị): đối với nhà ở riêng lẻ.
- Sở Xây dựng TP.HCM: đối với công trình quy mô lớn hoặc thuộc dự án.
Nhiều người nộp sai nơi thụ lý dẫn đến hồ sơ bị từ chối tiếp nhận.
BK-Saigon sẽ giúp bạn xác định đúng cơ quan tiếp nhận, nộp hồ sơ chuẩn ngay từ đầu.
Không nắm rõ quy trình xử lý và thời gian phản hồi
Trong quá trình xét duyệt, cơ quan chức năng có thể gửi thông báo bổ sung hoặc chỉnh sửa hồ sơ trong thời hạn nhất định.
Nếu bạn bỏ qua thông báo hoặc nộp trễ, hồ sơ có thể bị hủy hoặc phải nộp lại từ đầu.
Với dịch vụ của BK-Saigon, khách hàng không cần trực tiếp theo dõi, vì chúng tôi đại diện làm việc với cơ quan nhà nước, cập nhật tiến độ thường xuyên và xử lý bổ sung trong vòng 24 giờ khi có yêu cầu.
Tự khởi công khi chưa có giấy phép
Đây là lỗi nghiêm trọng và có thể bị phạt hành chính từ 60 – 100 triệu đồng (theo Nghị định 16/2022/NĐ-CP).
Ngoài tiền phạt, chủ đầu tư còn bị buộc tạm ngừng thi công và tháo dỡ phần sai phạm.
BK-Saigon luôn khuyến nghị khách hàng chỉ nên khởi công sau khi đã có giấy phép hợp lệ, đồng thời hỗ trợ đăng ký giấy phép nhanh nhất để không ảnh hưởng tiến độ.
Không kiểm tra quy hoạch khu vực trước khi thiết kế
Một số khu vực tại Thủ Đức có giới hạn chiều cao, mật độ hoặc chỉ giới xây dựng cụ thể.
Nếu bản vẽ thiết kế không phù hợp, hồ sơ sẽ bị bác hoặc phải chỉnh sửa nhiều lần.
BK-Saigon hỗ trợ kiểm tra quy hoạch miễn phí và đề xuất giải pháp phù hợp, giúp bạn xin phép một lần là được duyệt ngay.
Vì sao nên chọn BK-Saigon để xin giấy phép xây dựng tại Thủ Đức
Khi thực hiện xin giấy phép xây dựng tại Thủ Đức, việc lựa chọn đơn vị uy tín và am hiểu pháp lý là yếu tố quyết định đến tiến độ và tính hợp pháp của công trình. Trên thị trường hiện nay có nhiều dịch vụ cấp phép, nhưng BK-Saigon luôn được khách hàng cá nhân và doanh nghiệp tin tưởng lựa chọn hàng đầu tại TP.HCM nhờ vào uy tín – minh bạch – đúng tiến độ.

Dưới đây là những lý do khiến BK-Saigon trở thành lựa chọn đáng tin cậy cho mọi nhu cầu xin giấy phép xây dựng:
Hơn 10 năm kinh nghiệm trong lĩnh vực pháp lý và xây dựng
BK-Saigon đã thực hiện thành công hàng nghìn hồ sơ xin giấy phép xây dựng tại Thủ Đức và các quận/huyện TP.HCM.
Với đội ngũ chuyên viên am hiểu luật xây dựng, quy hoạch đô thị và thủ tục hành chính, chúng tôi đảm bảo hồ sơ của bạn được duyệt nhanh – chính xác – đúng pháp lý.
Dịch vụ trọn gói – hỗ trợ từ A đến Z
BK-Saigon cung cấp dịch vụ xin giấy phép xây dựng trọn gói, giúp khách hàng không phải lo về thủ tục, hồ sơ hay đi lại nhiều lần.
Chúng tôi đảm nhận toàn bộ quy trình:
- Tư vấn quy hoạch, khảo sát hiện trạng.
- Thiết kế bản vẽ xin phép đúng chuẩn kỹ thuật.
- Soạn hồ sơ, nộp và theo dõi xét duyệt tại cơ quan có thẩm quyền.
- Nhận giấy phép và bàn giao tận nơi cho khách hàng.
Bạn chỉ cần cung cấp sổ đỏ và thông tin công trình, còn lại BK-Saigon sẽ lo toàn bộ thủ tục nhanh – gọn – hợp pháp.
Hồ sơ đúng chuẩn – duyệt nhanh – không bị trả lại
Một trong những lợi thế lớn nhất của BK-Saigon là tỷ lệ hồ sơ được duyệt ngay từ lần nộp đầu tiên đạt trên 98%.
Bởi mỗi bộ hồ sơ đều được:
- Kiểm tra kỹ về tính pháp lý.
- Rà soát bản vẽ chi tiết trước khi nộp.
- Đối chiếu đúng quy hoạch của từng khu vực tại Thủ Đức.
Báo giá minh bạch – không phát sinh chi phí
Chúng tôi áp dụng chính sách báo giá rõ ràng, niêm yết công khai ngay từ đầu.
Tất cả chi phí được liệt kê chi tiết trong hợp đồng – không có chi phí ẩn hay phụ phí ngoài quy định.
Ngoài ra, BK-Saigon còn hỗ trợ miễn phí kiểm tra quy hoạch và tư vấn hồ sơ ban đầu cho khách hàng tại Thủ Đức.
Đội ngũ chuyên viên tận tâm, hỗ trợ 24/7
BK-Saigon luôn đặt sự hài lòng của khách hàng lên hàng đầu.
Đội ngũ chuyên viên của chúng tôi luôn sẵn sàng hỗ trợ qua Zalo, Viber, điện thoại để tư vấn chi tiết từng bước.
Ngay cả sau khi bàn giao giấy phép, BK-Saigon vẫn tiếp tục hỗ trợ hoàn công hoặc điều chỉnh giấy phép (nếu cần), đồng hành cùng khách hàng đến khi công trình hoàn tất.
Phạm vi hỗ trợ rộng khắp – đặc biệt tại Thủ Đức
Với hệ thống văn phòng tại nhiều khu vực TP.HCM, đặc biệt là Thủ Đức, Cát Lái, Phước Long, Tân Phú, BK-Saigon luôn sẵn sàng tư vấn trực tiếp và xử lý hồ sơ tận nơi.
Điều này giúp khách hàng tiết kiệm tối đa thời gian đi lại, nhất là với những người bận rộn hoặc ở xa.
BK-Saigon – Dịch vụ xin giấy phép xây dựng tại Thủ Đức chuyên nghiệp, minh bạch, đúng tiến độ và hợp pháp 100%.
Để công trình của bạn khởi công thuận lợi, đúng quy hoạch và an toàn pháp lý, hãy để BK-Saigon đồng hành ngay từ bước đầu tiên.
Liên hệ tư vấn xin giấy phép xây dựng Thủ Đức
Nếu bạn đang có nhu cầu xin giấy phép xây dựng tại Thủ Đức nhưng chưa rõ quy trình, hồ sơ hay chi phí thực hiện, hãy để BK-Saigon hỗ trợ bạn từ A–Z.
Với hơn 10 năm kinh nghiệm trong lĩnh vực pháp lý xây dựng và nhà đất tại TP.HCM, chúng tôi cam kết mang đến dịch vụ xin giấy phép xây dựng Thủ Đức nhanh chóng, minh bạch và đúng quy định pháp luật.


>>>>> Xem thêm: Dịch vụ đo vẽ nhà đất chuyên nghiệp tại Tp. HCM
BK-Saigon nhận tư vấn miễn phí 100% cho mọi khách hàng có nhu cầu:
- Kiểm tra quy hoạch khu đất trước khi thiết kế.
- Hướng dẫn chuẩn bị hồ sơ đúng mẫu, đúng pháp lý.
- Báo giá chi tiết và dự kiến thời gian cấp phép cụ thể.
- Đại diện khách hàng làm việc trực tiếp với UBND TP. Thủ Đức hoặc Sở Xây dựng TP.HCM.
Chúng tôi luôn đặt uy tín – hiệu quả – tốc độ xử lý hồ sơ lên hàng đầu, giúp bạn tiết kiệm thời gian, chi phí và công sức, đồng thời đảm bảo công trình được cấp phép hợp pháp và khởi công đúng tiến độ.
Thông tin liên hệ BK-Saigon
- Hotline/Zalo/Viber: 0977 960 616 (Mr. Hoan)
- Website: https://phaplynhadathcm.vn
- Email: bandososaigon@gmail.com
Hệ thống văn phòng tại TP.HCM:
- Trụ sở chính: 430 Nguyễn Xiển, P. Long Bình, TP.HCM
- Văn phòng 1: 29 Đồng Văn Cống, P. Cát Lái, TP.HCM
- Văn phòng 2: 47 Dương Đình Hội, P. Phước Long, TP.HCM
- Văn phòng 3: 51 Nguyễn Thị Thập, P. Tân Phú, TP.HCM
BK-Saigon – Đơn vị chuyên xin giấy phép xây dựng tại Thủ Đức và toàn TP.HCM, cam kết làm đúng – duyệt nhanh – hợp pháp 100%.
Hãy liên hệ ngay hôm nay để được tư vấn miễn phí, nhận báo giá trọn gói và hỗ trợ thủ tục nhanh nhất, giúp công trình của bạn khởi công đúng kế hoạch và an toàn pháp lý.
Tìm Kiếm Liên Quan
Nộp hồ sơ xin phép xây dựng online
Kiểm tra giấy phép xây dựng online
Thủ tục xin giấy phép xây dựng nhà ở TPHCM
Tra cứu giấy phép xây dựng TP HCM
Lệ phí xin giấy phép xây dựng nhà ở
Xin giấy phép xây dựng nhà cấp 4
Xin giấy phép xây dựng ở đâu
Hệ số xây dựng TP Thủ Đức