Nhu cầu cấp phép xây dựng phường Long Trường đang ngày càng tăng khi khu vực này trở thành một trong những điểm phát triển năng động nhất tại TP. Thủ Đức. Với sự xuất hiện của nhiều dự án lớn, tuyến Vành Đai 3, cao tốc Long Thành – Dầu Giây và hàng loạt khu dân cư mới, Long Trường thu hút lượng cư dân đông đúc và nhu cầu xây dựng – cải tạo nhà ở diễn ra mạnh mẽ.

>>>>> Xem thêm: Dịch vụ xin giấy phép xây dựng tại Tp. Thủ Đức
Chính vì vậy, việc nắm rõ quy định và chuẩn bị đúng hồ sơ theo yêu cầu UBND phường Long Trường là yếu tố vô cùng quan trọng. Nhiều gia chủ lựa chọn dịch vụ xin giấy phép xây dựng Long Trường của BK-Saigon để đảm bảo hồ sơ được duyệt nhanh, đúng pháp lý và tiết kiệm thời gian.
KHI NÀO BẠN CẦN XIN GIẤY PHÉP XÂY DỰNG?
Khi xây dựng hoặc cải tạo nhà ở tại phường Long Trường, việc xin giấy phép xây dựng là yêu cầu bắt buộc để đảm bảo công trình hợp pháp, đúng quy hoạch và tránh các rủi ro xử phạt. Thực tế, không ít hộ gia đình tại Long Trường đã phải ngừng thi công hoặc tháo dỡ vì xây dựng không phép. Vì vậy, hiểu rõ khi nào cần xin phép là vô cùng quan trọng.

Dưới đây là các trường hợp bắt buộc phải xin giấy phép xây dựng phường Long Trường:
1. Xây dựng mới nhà ở hoặc công trình phụ
Mọi công trình xây mới – dù là nhà cấp 4, nhà phố hay công trình phụ trợ – đều phải xin phép trước khi khởi công.
2. Nâng tầng, cải tạo kết cấu, mở rộng diện tích
Bao gồm các trường hợp:
- nâng thêm tầng,
- làm thêm tum,
- cơi nới ban công, sàn, mái che,
- thay đổi kết cấu chịu lực (cột, dầm, sàn).
Những thay đổi ảnh hưởng đến kết cấu đều cần xin phép.
3. Thay đổi kiến trúc mặt tiền
Nếu thay đổi kiến trúc phía ngoài như cửa, ban công, hệ mái, hình thức mặt đứng… thì bắt buộc phải xin phép để đảm bảo phù hợp với quy hoạch đô thị của Long Trường.
4. Công trình có ảnh hưởng đến an toàn công trình lân cận
Các khu dân cư Long Trường có mật độ xây dựng cao, nhà xây sát nhau. Vì vậy, mọi công trình có khả năng ảnh hưởng đến nhà bên cạnh đều phải xin phép.
Những trường hợp được miễn phép xây dựng
- Sửa chữa nhỏ bên trong nhà, không ảnh hưởng kết cấu.
- Hạng mục nội thất không làm thay đổi công năng.
- Công trình thuộc dự án đã có quy hoạch 1/500 và được miễn phép theo quy định.
Lưu ý quan trọng đối với Long Trường
Nhiều khu vực tại Long Trường có hẻm nhỏ hoặc hẻm mở rộng theo quy hoạch, dẫn đến các yêu cầu nghiêm ngặt về:
- mật độ xây dựng,
- khoảng lùi,
- chiều cao tầng.
Do đó, trước khi lập hồ sơ, chủ đầu tư nên kiểm tra quy hoạch hoặc liên hệ đơn vị chuyên môn để được tư vấn đúng.
Nhiều khách hàng lựa chọn dịch vụ xin giấy phép xây dựng Long Trường của BK-Saigon để đảm bảo hồ sơ phù hợp ngay từ đầu.
HỒ SƠ CẤP PHÉP XÂY DỰNG PHƯỜNG LONG TRƯỜNG GỒM NHỮNG GÌ?
Để hồ sơ cấp phép xây dựng phường Long Trường được tiếp nhận và thẩm định nhanh chóng, chủ đầu tư cần chuẩn bị đầy đủ giấy tờ theo quy định của UBND TP. Thủ Đức. Một bộ hồ sơ chính xác, rõ ràng và đúng kỹ thuật sẽ rút ngắn đáng kể thời gian xử lý và hạn chế việc bị yêu cầu bổ sung.

Dưới đây là danh mục hồ sơ chuẩn cần có:
1. Đơn đề nghị cấp giấy phép xây dựng
Theo mẫu quy định, bao gồm các thông tin:
- Chủ đầu tư
- Địa chỉ công trình
- Quy mô xây dựng (diện tích, số tầng, mục đích)
- Loại công trình: xây mới – cải tạo – nâng tầng
Đơn phải được điền đầy đủ, chính xác để tránh bị yêu cầu chỉnh sửa.
2. Giấy tờ chứng minh quyền sử dụng đất (Sổ hồng/Sổ đỏ)
Hồ sơ đất phải hợp pháp, không tranh chấp, không bị kê biên và đúng mục đích sử dụng.
Nếu đất nằm trong quy hoạch phường Long Trường, việc xin phép có thể bị hạn chế hoặc cần bổ sung giấy tờ xác minh.
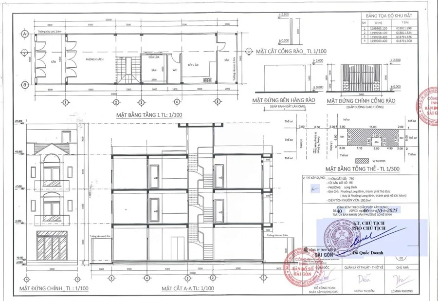
3. Bộ bản vẽ xin phép xây dựng chuẩn kỹ thuật
Đây là phần quan trọng nhất trong hồ sơ. Bộ bản vẽ phải do đơn vị chuyên môn thực hiện, bao gồm:
- Mặt bằng hiện trạng & mặt bằng các tầng
- Mặt cắt – mặt đứng công trình
- Bản vẽ cấp thoát nước
- Bản vẽ kết cấu móng, cột, dầm
- Thể hiện rõ chỉ giới xây dựng, khoảng lùi, mật độ xây dựng, chiều cao
Long Trường có nhiều khu vực nằm gần đường quy hoạch hoặc dự án nên bản vẽ phải thể hiện đúng và đầy đủ các yếu tố quy hoạch.
⚠️ 80% hồ sơ bị trả lại là do bản vẽ thiếu hoặc sai quy chuẩn.
4. Bản vẽ hiện trạng nhà/đất – đo vẽ theo hệ tọa độ VN-2000
BK-Saigon thực hiện đo vẽ hiện trạng nhà đất Long Trường để đảm bảo:
- đúng số liệu kỹ thuật,
- đầy đủ ranh giới thửa đất,
- thể hiện tình trạng công trình liền kề.
Bản vẽ hiện trạng là căn cứ quan trọng để cơ quan thẩm định đối chiếu trước khi cấp phép.
5. Ảnh chụp hiện trạng công trình hoặc khu đất
Ảnh phải thể hiện:
- mặt tiền,
- hẻm/đường vào,
- công trình liền kề,
- toàn bộ khu đất (nếu đất trống).
6. Cam kết an toàn công trình lân cận (nếu có)
Áp dụng đối với công trình xây chen, nhà sát nhà, hẻm nhỏ – đặc trưng của Long Trường.
7. Các giấy tờ bổ sung khác (tùy trường hợp)
- Văn bản thẩm tra thiết kế
- Giấy ủy quyền (nếu không tự thực hiện)
- Văn bản xác nhận tình trạng pháp lý đất (khi cần)
QUY TRÌNH – THỦ TỤC XIN GIẤY PHÉP XÂY DỰNG PHƯỜNG LONG TRƯỜNG
Thủ tục cấp phép xây dựng phường Long Trường gồm nhiều bước và đòi hỏi hồ sơ phải chính xác ngay từ đầu. Hiểu rõ quy trình sẽ giúp chủ đầu tư tiết kiệm thời gian, tránh phải đi lại nhiều lần và tăng tỷ lệ được duyệt hồ sơ.

Dưới đây là quy trình chuẩn theo quy định của UBND phường Long Trường:
1. Tra cứu và kiểm tra quy hoạch phường Long Trường
Trước khi lập hồ sơ, cần xác định rõ:
- thửa đất có thuộc quy hoạch dự án không,
- chỉ giới – lộ giới tuyến đường,
- mật độ xây dựng cho phép,
- chiều cao tối đa,
- khu vực có thuộc hành lang bảo vệ kỹ thuật hay không.
Long Trường có nhiều tuyến đường mở rộng và đất dự án, nên việc tra cứu quy hoạch phường Long Trường là bước bắt buộc.
2. Đo vẽ hiện trạng nhà/đất và khảo sát công trình
Kỹ sư tiến hành đo đạc theo hệ tọa độ VN-2000 để lập bản vẽ hiện trạng chuẩn xác, bao gồm:
- kích thước thửa đất,
- hiện trạng công trình,
- nhà liền kề và mặt tiền hẻm.
Dữ liệu này là cơ sở để lập bản vẽ xin phép xây dựng đúng quy chuẩn.
3. Lập bộ hồ sơ xin giấy phép xây dựng
Hồ sơ gồm:
- Đơn xin cấp phép
- Sổ hồng/sổ đỏ
- Bộ bản vẽ xin phép xây dựng (mặt bằng – mặt cắt – mặt đứng – cấp thoát nước – kết cấu móng…)
- Bản vẽ hiện trạng
- Ảnh hiện trạng
- Cam kết an toàn công trình lân cận (nếu cần)
Đây là bước quan trọng nhất và cũng là lý do hồ sơ thường bị trả lại nếu bản vẽ không đúng chuẩn.
4. Nộp hồ sơ tại cổng dịch vụ công Quốc gia
Chủ đầu tư nộp hồ sơ tại cổng dịch vụ công (nơi tiếp nhận hồ sơ của phường Long Trường).
Cán bộ sẽ:
- kiểm tra tính hợp lệ của hồ sơ,
- hướng dẫn bổ sung nếu còn thiếu,
- cấp giấy hẹn trả kết quả.
5. Thẩm định hồ sơ – yêu cầu điều chỉnh (nếu có)
Trong quá trình thẩm định, cơ quan chức năng sẽ kiểm tra:
- sự phù hợp của bản vẽ với quy hoạch,
- pháp lý của thửa đất,
- các yêu cầu về mật độ – chiều cao – khoảng lùi.
Nếu phát hiện sai sót, chủ đầu tư sẽ được yêu cầu bổ sung hoặc điều chỉnh hồ sơ.
Việc theo sát quá trình này rất quan trọng để tránh kéo dài thời gian xét duyệt.
6. Nhận giấy phép xây dựng và triển khai thi công
Khi hồ sơ hợp lệ, giấy phép xây dựng sẽ được cấp. Chủ đầu tư có thể bắt đầu thi công đúng theo nội dung giấy phép.
Thời gian xử lý thông thường: 10–15 ngày làm việc, nhanh hơn nếu hồ sơ chuẩn ngay từ đầu.
THỜI GIAN & CHI PHÍ XIN PHÉP XÂY DỰNG TẠI PHƯỜNG LONG TRƯỜNG
Khi thực hiện cấp phép xây dựng phường Long Trường, điều mà hầu hết chủ đầu tư quan tâm nhất chính là thời gian xử lý hồ sơ và chi phí xin phép. Việc nắm rõ hai yếu tố này sẽ giúp bạn chủ động kế hoạch thi công, tránh phát sinh chi phí hoặc kéo dài tiến độ.

>>>>> Xem thêm: Dịch vụ đo vẽ hoàn công nhà ở tại Thủ Đức
1. Thời gian xin giấy phép xây dựng phường Long Trường
Theo quy định chung của UBND TP. Thủ Đức, thời gian xử lý hồ sơ như sau:
• 10–15 ngày làm việc
Áp dụng cho hồ sơ nhà ở riêng lẻ đầy đủ, bản vẽ đúng chuẩn kỹ thuật và không vướng quy hoạch.
• 15–20 ngày làm việc
Áp dụng nếu công trình có yêu cầu thẩm tra thiết kế hoặc cần điều chỉnh lại bản vẽ.
• Trên 20 ngày
Xảy ra trong các trường hợp:
- Hồ sơ bị trả vì thiếu giấy tờ hoặc bản vẽ sai quy chuẩn
- Thửa đất nằm trong quy hoạch phức tạp
- Chủ đầu tư bổ sung hồ sơ chậm
- Công trình nằm gần hành lang bảo vệ hạ tầng kỹ thuật
Lưu ý: Long Trường có nhiều khu vực giáp đường quy hoạch, đất dự án hoặc chỉ giới mở rộng. Vì vậy, hồ sơ xin phép có thể yêu cầu kiểm tra kỹ hơn so với các phường khác.
2. Chi phí xin phép xây dựng phường Long Trường
Chi phí phụ thuộc vào loại công trình và mức độ phức tạp của hồ sơ. Bao gồm:
a. Chi phí đo vẽ hiện trạng nhà đất Long Trường
- Xác định diện tích, ranh đất, vị trí công trình
- Đo theo hệ tọa độ VN-2000
Chi phí thay đổi tùy diện tích và độ khó khi khảo sát.
b. Chi phí lập bản vẽ xin phép xây dựng
Bao gồm:
- bản vẽ mặt bằng – mặt đứng – mặt cắt,
- bản vẽ cấp thoát nước,
- bản vẽ kết cấu móng,
- thể hiện chỉ giới – khoảng lùi – mật độ xây dựng.
Đây là hạng mục quan trọng nhất ảnh hưởng đến việc hồ sơ có được duyệt hay không.
c. Lệ phí cấp giấy phép xây dựng (theo quy định nhà nước)
Khoản phí thu cố định theo quy định của UBND TP. Thủ Đức.
d. Chi phí dịch vụ xin phép xây dựng trọn gói (nếu thuê BK-Saigon)
Gồm:
- tư vấn quy hoạch,
- đo vẽ hiện trạng,
- lập bản vẽ xin phép,
- hoàn thiện hồ sơ pháp lý,
- nộp hồ sơ và theo dõi đến khi ra giấy phép.
LỢI ÍCH KHI SỬ DỤNG DỊCH VỤ XIN PHÉP XÂY DỰNG TẠI BK-SAIGON
Thủ tục cấp phép xây dựng phường Long Trường đòi hỏi sự chính xác, hiểu rõ quy hoạch và kinh nghiệm xử lý hồ sơ thực tế. Khi tự thực hiện, nhiều chủ đầu tư thường gặp khó khăn như hồ sơ bị trả, bản vẽ sai thông số, hoặc quy hoạch không phù hợp. Đây là lý do BK-Saigon trở thành lựa chọn hàng đầu tại Thủ Đức.

Dưới đây là những lợi ích nổi bật khi khách hàng sử dụng dịch vụ xin giấy phép xây dựng tại BK-Saigon:
1. Am hiểu sâu quy hoạch Long Trường – Long Phước – Long Bình
BK-Saigon đã xử lý hàng nghìn hồ sơ tại khu vực Long Trường, nắm rõ:
- đất nào được xin phép xây dựng, đất nào vướng quy hoạch,
- quy định mật độ – chiều cao theo từng tuyến đường,
- các khu vực có chỉ giới mở đường cần tránh.
Nhờ kinh nghiệm thực tế, hồ sơ của khách hàng được chuẩn ngay từ đầu.
2. Hồ sơ xin phép được lập đúng chuẩn kỹ thuật – hạn chế tối đa bị trả lại
BK-Saigon cung cấp trọn gói:
- đo vẽ hiện trạng nhà đất Long Trường,
- lập bản vẽ xin phép xây dựng (mặt bằng – mặt cắt – mặt đứng – cấp thoát nước – kết cấu),
- chuẩn bị đầy đủ giấy tờ pháp lý theo quy định.
Mỗi bản vẽ đều được kỹ sư chuyên trách thực hiện, đảm bảo đúng tiêu chuẩn UBND Thủ Đức yêu cầu.
3. Thời gian xin phép nhanh hơn – tiết kiệm công sức
Nhờ hiểu rõ quy trình thẩm định và yêu cầu của cơ quan chức năng, BK-Saigon giúp:
- hạn chế sai sót trong hồ sơ,
- giảm số lần bổ sung,
- rút ngắn thời gian xét duyệt xuống mức tối ưu.
4. Chi phí rõ ràng – minh bạch – không phát sinh
Chúng tôi báo giá theo từng hạng mục cụ thể:
- đo vẽ,
- bản vẽ xin phép,
- thẩm tra,
- nộp hồ sơ – theo dõi hồ sơ.
Khách hàng hoàn toàn yên tâm vì toàn bộ chi phí đều được thống nhất trước khi triển khai.
5. Hỗ trợ trọn gói các thủ tục liên quan đến xây dựng và pháp lý
Không chỉ dừng lại ở xin giấy phép xây dựng, BK-Saigon còn hỗ trợ khách hàng:
- điều chỉnh giấy phép xây dựng,
- hoàn công nhà ở Thủ Đức,
- xin số nhà,
- tư vấn pháp lý xây dựng trong suốt quá trình thi công.
Chúng tôi đồng hành cùng khách hàng từ lúc bắt đầu đến khi hoàn thiện công trình.
CÁC DỊCH VỤ LIÊN QUAN TẠI PHƯỜNG LONG TRƯỜNG
Ngoài nhu cầu cấp phép xây dựng phường Long Trường, người dân tại khu vực này còn phải thực hiện nhiều thủ tục pháp lý – kỹ thuật khác liên quan đến nhà đất. BK-Saigon cung cấp hệ thống dịch vụ trọn gói, đáp ứng mọi nhu cầu từ xây dựng đến hoàn công, giúp khách hàng tiết kiệm thời gian và chi phí.

1. Dịch vụ đo vẽ hiện trạng nhà đất Long Trường
Đây là bước đầu tiên và quan trọng đối với mọi hồ sơ xây dựng, hoàn công hoặc tách thửa.
BK-Saigon thực hiện đo vẽ bằng thiết bị chuẩn VN-2000, đảm bảo:
- đo đúng kích thước,
- thể hiện rõ ranh giới thửa đất,
- mô tả đầy đủ hiện trạng công trình,
- phục vụ chính xác cho việc lập bản vẽ xin phép xây dựng.
>>>>> Xem thêm: Dịch vụ đo vẽ hiện trạng nhà đất Tp. Thủ Đức
2. Lập bản vẽ xin phép xây dựng – bản vẽ thiết kế cơ sở
Bản vẽ xin phép là thành phần quan trọng nhất trong hồ sơ xin giấy phép.
BK-Saigon thực hiện đầy đủ các bản vẽ:
- mặt bằng hiện trạng & các tầng,
- mặt cắt – mặt đứng,
- bản vẽ cấp thoát nước,
- bản vẽ móng – kết cấu,
- chỉ giới – khoảng lùi – mật độ xây dựng theo quy định phường Long Trường.
Bản vẽ chuẩn giúp hạn chế tối đa việc hồ sơ bị trả.
3. Dịch vụ hoàn công nhà ở Thủ Đức
Sau khi công trình xây dựng xong, chủ đầu tư cần hoàn thành thủ tục hoàn công để cập nhật tài sản vào sổ hồng.
BK-Saigon hỗ trợ:
- đo vẽ hoàn công,
- lập hồ sơ hoàn công,
- nộp & theo dõi hồ sơ tại cơ quan chức năng cho đến khi có kết quả.
4. Tra cứu quy hoạch – tư vấn pháp lý xây dựng
Dịch vụ giúp khách hàng kiểm tra trước khi xây dựng:
- đất có vướng dự án hay không,
- chỉ giới mở đường,
- mật độ – chiều cao cho phép,
- khả năng xin giấy phép xây dựng nhà ở riêng lẻ.
Đây là bước quan trọng giúp tránh rủi ro nộp hồ sơ nhưng không được cấp phép.
5. Tách thửa – hợp thửa – chỉnh lý biến động nhà đất
BK-Saigon hỗ trợ đầy đủ thủ tục đất đai tại Long Trường và toàn khu vực TP. Thủ Đức, phù hợp với khách hàng có nhu cầu mua bán, phân lô, chuyển mục đích sử dụng đất.
6. Điều chỉnh giấy phép xây dựng (nếu thay đổi thiết kế)
Nếu thay đổi thiết kế sau khi đã được cấp phép, chủ đầu tư cần làm thủ tục điều chỉnh. BK-Saigon hỗ trợ lập hồ sơ điều chỉnh đúng quy định, tránh bị xử phạt trong quá trình thi công.
Với hệ sinh thái dịch vụ đầy đủ, BK-Saigon là địa chỉ tin cậy để khách hàng tại Long Trường thực hiện mọi thủ tục từ xin phép xây dựng, đo vẽ, hoàn công đến các hồ sơ đất đai.
LIÊN HỆ XIN GIẤY PHÉP XÂY DỰNG LONG TRƯỜNG
Thực hiện cấp phép xây dựng phường Long Trường đúng quy định là bước quan trọng để đảm bảo công trình của bạn được thi công hợp pháp, đúng quy hoạch và tránh hoàn toàn các rủi ro pháp lý như bị đình chỉ thi công, xử phạt hành chính hoặc buộc tháo dỡ. Với đặc thù quy hoạch phức tạp của Long Trường – nơi có nhiều khu vực thuộc dự án, chỉ giới mở rộng và yêu cầu kỹ thuật khắt khe – việc chuẩn hóa hồ sơ ngay từ đầu là yếu tố quyết định hồ sơ có được duyệt nhanh hay phải bổ sung nhiều lần.


BK-Saigon, với hơn 10 năm kinh nghiệm trong lĩnh vực pháp lý xây dựng tại Thủ Đức, là đơn vị uy tín hỗ trợ khách hàng trọn gói từ đo vẽ hiện trạng, lập bản vẽ xin phép, chuẩn bị hồ sơ, cho đến nộp và theo dõi thẩm định đến khi ra giấy phép. Chúng tôi cam kết mang đến dịch vụ Nhanh – Chuẩn – Hợp pháp – Không phát sinh chi phí.
Liên hệ ngay để được tư vấn miễn phí và báo giá chi tiết:
Hotline/Zalo/Viber: 0977 960 616 (Mr. Hoan)
Website: https://phaplynhadathcm.vn
Email: bandososaigon@gmail.com
Hệ thống văn phòng BK-Saigon:
- 430 Nguyễn Xiển, P. Long Bình, TP. HCM
- 29 Đồng Văn Cống, P. Cát Lái, TP. HCM
- 47 Dương Đình Hội, P. Phước Long, TP. HCM
- 51 Nguyễn Thị Thập, P. Tân Phú, TP. HCM
BK-Saigon – Đồng hành cùng bạn trong mọi thủ tục xin giấy phép xây dựng tại phường Long Trường và toàn TP. Thủ Đức.