Nhu cầu cấp phép xây dựng phường Hiệp Bình đang tăng nhanh khi khu vực này phát triển mạnh về dân cư, nhà phố và các khu dân cư mới dọc tuyến Phạm Văn Đồng – Quốc lộ 13. Việc xin giấy phép xây dựng đúng quy định không chỉ giúp chủ đầu tư thi công hợp pháp mà còn tránh rủi ro bị xử phạt, buộc tháo dỡ hoặc không thể hoàn công sau này.

Để đảm bảo hồ sơ đúng chuẩn ngay từ đầu, nhiều khách hàng lựa chọn dịch vụ xin giấy phép xây dựng phường Hiệp Bình của BK-Saigon, giúp tiết kiệm thời gian, hạn chế rủi ro và được hỗ trợ trọn gói từ khảo sát đến nhận giấy phép.
KHI NÀO BẠN CẦN XIN GIẤY PHÉP XÂY DỰNG?
Nhiều hộ gia đình tại khu vực Hiệp Bình vẫn còn nhầm lẫn trong việc xác định khi nào phải xin phép xây dựng. Theo quy định, mọi công trình nhà ở riêng lẻ tại đô thị, trước khi thi công, đều phải thực hiện xin giấy phép xây dựng phường Hiệp Bình để đảm bảo tính pháp lý và tránh vi phạm.


>>>>> Xem thêm: Dịch vụ xin giấy phép xây dựng trọn gói tại Thủ Đức
1. Các trường hợp bắt buộc phải xin giấy phép
- Xây dựng mới nhà ở hoặc công trình phụ trên đất ở.
- Nâng tầng, cải tạo kết cấu, làm thay đổi khả năng chịu lực của công trình.
- Cơi nới diện tích, mở rộng ban công, sân thượng, tum.
- Thay đổi kiến trúc mặt tiền, ảnh hưởng mỹ quan đô thị.
2. Trường hợp được miễn giấy phép xây dựng
- Sửa chữa nhỏ bên trong nhà, không tác động đến kết cấu chịu lực.
- Công trình thuộc dự án đã phê duyệt quy hoạch 1/500 và được miễn phép theo quy định.
- Hạng mục tạm phục vụ thi công, không ảnh hưởng kết cấu chính.
3. Lưu ý quan trọng
- Nhà trong hẻm nhỏ thường có quy định riêng về chiều cao, khoảng lùi, mật độ xây dựng.
- Việc xác định sai loại hình sửa chữa có thể dẫn đến bị lập biên bản hoặc buộc dừng thi công.
Do vậy, để tránh rủi ro, nhiều chủ nhà lựa chọn sử dụng dịch vụ xin phép xây dựng Hiệp Bình để được kiểm tra quy hoạch, tư vấn đúng trường hợp và thực hiện hồ sơ đúng chuẩn ngay từ đầu.
HỒ SƠ CẤP PHÉP XÂY DỰNG PHƯỜNG HIỆP BÌNH GỒM NHỮNG GÌ?
Để được phê duyệt cấp phép xây dựng phường Hiệp Bình, chủ đầu tư cần chuẩn bị đầy đủ hồ sơ theo đúng quy định của UBND phường Hiệp Bình. Một bộ hồ sơ đầy đủ, chính xác và đúng kỹ thuật sẽ giúp rút ngắn thời gian thẩm định và tránh việc bị trả lại nhiều lần. Dưới đây là các hạng mục bắt buộc cần có:

1. Đơn đề nghị cấp giấy phép xây dựng
Theo mẫu của cơ quan chức năng, ghi đúng thông tin chủ đầu tư, địa chỉ công trình, quy mô xây dựng (số tầng, diện tích, chiều cao…).
2. Giấy tờ chứng minh quyền sử dụng đất (sổ hồng/ sổ đỏ)
Hồ sơ đất phải hợp pháp, không tranh chấp và đúng mục đích sử dụng.
Nếu đất thuộc diện quy hoạch mở đường hoặc hành lang bảo vệ, cần kiểm tra trước để tránh hồ sơ bị từ chối.
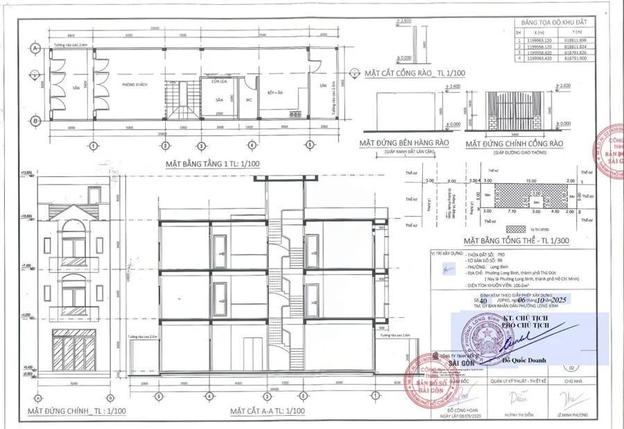
3. Bộ bản vẽ xin phép xây dựng chuẩn kỹ thuật
Đây là phần quan trọng nhất khi xin giấy phép xây dựng phường Hiệp Bình, bao gồm:
- Bản vẽ hiện trạng nhà/đất
- Mặt bằng – mặt đứng – mặt cắt công trình theo tỷ lệ chuẩn
- Bản vẽ hệ thống cấp thoát nước
- Bản vẽ móng, kết cấu
- Thể hiện chính xác chỉ giới xây dựng, khoảng lùi, chiều cao công trình theo quy hoạch khu vực Hiệp Bình – Hiệp Bình Chánh – Hiệp Bình Phước
Các bản vẽ phải do đơn vị chuyên môn thực hiện để đảm bảo hợp lệ về kỹ thuật.
4. Ảnh chụp hiện trạng công trình hoặc khu đất
Chụp các góc mặt tiền, hẻm, nhà liền kề để phục vụ quá trình thẩm định.
5. Cam kết an toàn công trình lân cận (nếu cần)
Áp dụng đối với công trình nằm sát nhà dân cũ, nhà có nguy cơ ảnh hưởng trong quá trình thi công.
6. Các giấy tờ bổ sung khác
- Văn bản thẩm tra thiết kế (đối với công trình lớn)
- Hồ sơ chứng minh sự phù hợp quy hoạch
Việc chuẩn bị hồ sơ đúng, đủ và chuẩn kỹ thuật sẽ giúp quá trình xét duyệt thuận lợi hơn. Nếu khách hàng chưa quen với quy trình, có thể sử dụng dịch vụ đo vẽ hiện trạng và lập bản vẽ xin phép xây dựng Hiệp Bình của BK-Saigon để đảm bảo hồ sơ đạt yêu cầu ngay lần đầu.
QUY TRÌNH – THỦ TỤC CẤP PHÉP XÂY DỰNG PHƯỜNG HIỆP BÌNH
Để hồ sơ cấp phép xây dựng phường Hiệp Bình được phê duyệt nhanh chóng, chủ đầu tư cần nắm rõ các bước thực hiện đúng theo quy định của UBND phường Hiệp Bình. Quy trình chuẩn gồm 6 bước dưới đây:

1. Kiểm tra quy hoạch – chỉ giới – lộ giới công trình
Trước khi lập hồ sơ, cần tra cứu quy hoạch tại các khu vực Hiệp Bình – Hiệp Bình Chánh – Hiệp Bình Phước để xác định:
- Mật độ xây dựng cho phép
- Chiều cao công trình
- Chỉ giới xây dựng và khoảng lùi
- Đất có nằm trong quy hoạch mở đường hoặc hành lang an toàn kỹ thuật hay không
Việc kiểm tra kỹ sẽ hạn chế rủi ro hồ sơ bị trả lại do không phù hợp quy hoạch.
2. Đo vẽ hiện trạng và khảo sát công trình
Đơn vị chuyên môn tiến hành đo vẽ hiện trạng nhà đất Hiệp Bình, chụp ảnh, khảo sát công trình để lập bản vẽ xin phép xây dựng chính xác.
3. Lập bộ hồ sơ xin giấy phép xây dựng
Hồ sơ gồm:
- Đơn đề nghị cấp phép
- Giấy tờ sở hữu nhà đất
- Bản vẽ xin phép xây dựng (mặt bằng, mặt đứng, mặt cắt, cấp thoát nước, kết cấu…)
- Ảnh hiện trạng và các giấy tờ pháp lý liên quan
Đây là bước quan trọng nhất, đòi hỏi hồ sơ phải đầy đủ và đúng kỹ thuật để tránh việc chỉnh sửa nhiều lần.
4. Nộp hồ sơ tại cổng dịch vụ công Quốc gia, nơi tiếp nhận UBND phường Hiệp Bình
Hồ sơ xin giấy phép xây dựng phường Hiệp Bình sẽ được tiếp nhận và kiểm tra ban đầu.
Nếu thiếu giấy tờ, cán bộ sẽ yêu cầu bổ sung trong thời hạn quy định.
5. Chờ thẩm định – điều chỉnh hồ sơ (nếu cần)
Cơ quan chức năng sẽ:
- Kiểm tra quy hoạch
- Thẩm định bản vẽ kỹ thuật
- Đối chiếu pháp lý đất đai
Nếu có điểm chưa phù hợp, chủ đầu tư sẽ được yêu cầu chỉnh sửa hoặc nộp bổ sung giấy tờ.
6. Nhận giấy phép xây dựng và tiến hành thi công
Khi hồ sơ đạt yêu cầu, chủ đầu tư sẽ được cấp giấy phép để xây dựng hợp pháp.
Thời gian xử lý trung bình từ 10–15 ngày làm việc, tùy theo độ phức tạp của công trình.
Quy trình trên tuy không quá phức tạp nhưng đòi hỏi sự chính xác, am hiểu quy hoạch và hồ sơ kỹ thuật. Vì vậy, nhiều khách hàng lựa chọn dịch vụ xin phép xây dựng Hiệp Bình của BK-Saigon để tối ưu thời gian và đảm bảo hồ sơ đạt chuẩn ngay từ lần đầu.
THỜI GIAN – CHI PHÍ XIN PHÉP XÂY DỰNG TẠI PHƯỜNG HIỆP BÌNH
Khi thực hiện cấp phép xây dựng phường Hiệp Bình, người dân thường quan tâm nhất đến hai vấn đề: thời gian xử lý hồ sơ và chi phí thực hiện. Tùy theo loại công trình và độ phức tạp của hồ sơ, mức thời gian và chi phí sẽ có sự khác nhau. Dưới đây là thông tin tham khảo giúp bạn dễ hình dung.

>>>>> Xem thêm: Dịch vụ đo vẽ hiện trạng nhà đất tại Thủ Đức
1. Thời gian xin giấy phép xây dựng
Thời gian trung bình theo quy định của UBND phường Hiệp Bình:
- 10–15 ngày làm việc: đối với nhà ở riêng lẻ có hồ sơ đầy đủ, hợp lệ.
- 15–20 ngày: áp dụng cho công trình cần thẩm tra thiết kế hoặc có yếu tố kỹ thuật phức tạp.
- Hồ sơ thiếu, bản vẽ sai, không phù hợp quy hoạch sẽ khiến thời gian kéo dài do phải bổ sung.
Nhờ vào kinh nghiệm và hiểu rõ quy hoạch tại Hiệp Bình – Hiệp Bình Chánh – Hiệp Bình Phước, dịch vụ xin phép xây dựng Hiệp Bình của BK-Saigon giúp rút ngắn đáng kể thời gian chờ xử lý.
2. Chi phí xin phép xây dựng phường Hiệp Bình
Chi phí phụ thuộc vào nhiều yếu tố như:
- Quy mô công trình: diện tích, số tầng, loại hình xây dựng (xây mới – cải tạo – nâng tầng)
- Chi phí đo vẽ hiện trạng nhà đất Hiệp Bình
- Chi phí lập bản vẽ xin phép xây dựng theo tiêu chuẩn
- Lệ phí nhà nước khi cấp giấy phép
- Chi phí dịch vụ (nếu thuê đơn vị chuyên nghiệp)
Các khoản phí thông thường gồm:
- Lệ phí cấp giấy phép xây dựng theo quy định
- Chi phí bản vẽ kiến trúc – kết cấu
- Chi phí khảo sát – đo vẽ hiện trạng
- Phí dịch vụ trọn gói (tùy nhu cầu khách hàng)
BK-Saigon cam kết báo giá rõ ràng – minh bạch – không phát sinh, phù hợp từng loại công trình. Việc sử dụng dịch vụ giúp khách hàng tiết kiệm thời gian, hạn chế sai sót và đảm bảo hồ sơ được duyệt nhanh chóng.
LỢI ÍCH KHI SỬ DỤNG DỊCH VỤ XIN PHÉP XÂY DỰNG TẠI BK-SAIGON
Thủ tục cấp phép xây dựng phường Hiệp Bình đòi hỏi sự chính xác, am hiểu quy hoạch và kinh nghiệm xử lý hồ sơ. Vì vậy, việc lựa chọn BK-Saigon – đơn vị chuyên nghiệp trong lĩnh vực pháp lý xây dựng tại Thủ Đức – mang lại nhiều lợi ích vượt trội cho chủ đầu tư.


1. Am hiểu sâu quy hoạch Hiệp Bình – Hiệp Bình Chánh – Hiệp Bình Phước
BK-Saigon đã xử lý hàng nghìn hồ sơ tại Thủ Đức, đặc biệt là các khu vực Hiệp Bình. Chúng tôi nắm rõ:
- Chỉ giới xây dựng
- Mật độ – chiều cao cho phép
- Các khu vực thuộc quy hoạch mở đường, đất dự án
Nhờ đó, hồ sơ được lập đúng ngay từ đầu, giảm tối đa nguy cơ bị trả lại.
2. Thực hiện hồ sơ trọn gói – đúng chuẩn kỹ thuật
Chúng tôi hỗ trợ toàn bộ quy trình:
- Đo vẽ hiện trạng nhà đất Hiệp Bình
- Lập bản vẽ xin phép xây dựng theo tiêu chuẩn
- Chuẩn bị giấy tờ pháp lý, nộp hồ sơ và theo dõi thẩm định
Hồ sơ luôn được kỹ sư chuyên môn thực hiện, đảm bảo độ chính xác cao.
3. Rút ngắn thời gian xin phép xây dựng
Nhờ kinh nghiệm làm việc với cơ quan chức năng, BK-Saigon hiểu rõ từng yêu cầu, từ đó giúp hồ sơ được xử lý nhanh và hạn chế tối đa việc bổ sung.
4. Chi phí minh bạch – phù hợp nhu cầu khách hàng
Chúng tôi báo giá theo từng hạng mục, rõ ràng, không phát sinh. Khách hàng dễ dàng lựa chọn gói dịch vụ phù hợp ngân sách.
5. Đồng hành đến khi hoàn thành công trình
Không chỉ xin phép xây dựng, BK-Saigon còn hỗ trợ:
- Điều chỉnh giấy phép
- Hoàn công nhà ở Thủ Đức
- Tư vấn pháp lý xuyên suốt quá trình thi công
Với phương châm Nhanh – Chuẩn – Hợp pháp – Chi phí minh bạch, BK-Saigon là lựa chọn hàng đầu cho những ai cần dịch vụ xin phép xây dựng phường Hiệp Bình uy tín và chuyên nghiệp.
CÁC LỖI THƯỜNG GẶP KHI TỰ XIN GIẤY PHÉP XÂY DỰNG
Nhiều hộ gia đình tại Thủ Đức thường gặp khó khăn khi tự thực hiện cấp phép xây dựng phường Hiệp Bình do thiếu kinh nghiệm và không nắm rõ quy định pháp lý. Những sai sót nhỏ nhưng lặp đi lặp lại khiến hồ sơ bị trả về nhiều lần, gây tốn thời gian và chi phí. Dưới đây là các lỗi phổ biến:

1. Bản vẽ xin phép xây dựng không đúng chuẩn
Đây là lỗi chiếm tỷ lệ cao nhất. Bản vẽ không thể hiện đúng:
- Chỉ giới xây dựng
- Chiều cao công trình
- Mật độ xây dựng
- Kết cấu và hệ thống kỹ thuật
Nếu bản vẽ sai, hồ sơ chắc chắn sẽ bị từ chối dù giấy tờ khác đầy đủ.
2. Không kiểm tra quy hoạch khu vực Hiệp Bình – Hiệp Bình Chánh – Hiệp Bình Phước
Một số thửa đất nằm trong quy hoạch mở đường, hành lang bảo vệ kênh rạch hoặc đất dự án. Không kiểm tra trước dễ dẫn đến việc lập hồ sơ không đúng quy định.
3. Thiếu giấy tờ pháp lý hoặc thông tin không trùng khớp
Ví dụ: sổ hồng cũ, giấy tờ thiếu trang, thông tin chủ sở hữu không đồng nhất. Những lỗi này khiến hồ sơ phải bổ sung nhiều lần.
4. Hiểu sai về các trường hợp sửa chữa – cải tạo
Nhiều người nghĩ sửa chữa nhỏ không cần xin phép, nhưng nếu tác động đến kết cấu, thay đổi mặt tiền hoặc nâng tầng thì bắt buộc phải xin giấy phép xây dựng phường Hiệp Bình.
5. Không theo sát quá trình thẩm định hồ sơ
UBND phường Hiệp Bình có thể yêu cầu bổ sung hồ sơ trong quá trình xét duyệt. Nếu không nắm bắt kịp thời, hồ sơ sẽ bị kéo dài hoặc quá hạn.
Để tránh các lỗi trên, việc sử dụng dịch vụ xin giấy phép xây dựng Hiệp Bình là lựa chọn tối ưu. Đơn vị chuyên nghiệp sẽ đảm bảo hồ sơ đúng chuẩn, hạn chế sai sót và rút ngắn thời gian xử lý.
CÁC DỊCH VỤ LIÊN QUAN TẠI PHƯỜNG HIỆP BÌNH
Bên cạnh nhu cầu cấp phép xây dựng phường Hiệp Bình, người dân tại khu vực Hiệp Bình – Hiệp Bình Chánh – Hiệp Bình Phước còn có nhu cầu thực hiện nhiều thủ tục pháp lý – kỹ thuật liên quan đến nhà đất. BK-Saigon cung cấp trọn bộ dịch vụ chuyên sâu, hỗ trợ khách hàng trong mọi giai đoạn xây dựng và sau xây dựng.

>>>>> Xem thêm: Dịch vụ đo vẽ hoàn công nhà ở tại Thủ Đức
1. Đo vẽ hiện trạng nhà đất Hiệp Bình
Đây là bước quan trọng để lập bản vẽ xin phép, hoàn công hoặc thực hiện các thủ tục đất đai.
BK-Saigon sử dụng thiết bị đo chuẩn VN-2000 cho độ chính xác cao, bản vẽ thể hiện đầy đủ ranh giới, kích thước, hiện trạng công trình.
2. Lập bản vẽ xin phép xây dựng – bản vẽ thiết kế cơ sở
Phục vụ cho hồ sơ xin phép xây dựng, cải tạo, nâng tầng.
Bản vẽ thể hiện rõ mặt bằng, mặt cắt, mặt đứng, cấp thoát nước và chỉ giới xây dựng đúng quy chuẩn Thủ Đức.
3. Dịch vụ hoàn công nhà ở Thủ Đức
Sau khi thi công xong, chủ đầu tư cần lập hồ sơ hoàn công để cập nhật tài sản vào sổ hồng.
BK-Saigon hỗ trợ đo vẽ hoàn công, lập hồ sơ và nộp tại cơ quan chức năng, đảm bảo đúng pháp lý.
4. Tra cứu quy hoạch – tư vấn pháp lý xây dựng
Hỗ trợ kiểm tra:
- Quy hoạch sử dụng đất
- Mật độ xây dựng
- Lộ giới, hành lang bảo vệ
- Khả năng xin phép xây dựng nhà ở riêng lẻ
Dịch vụ giúp khách hàng đánh giá khả năng xây dựng trước khi nộp hồ sơ.
5. Tách thửa – hợp thửa – chuyển mục đích sử dụng đất
Phù hợp cho khách hàng có nhu cầu phân lô, chia đất, mua bán hoặc chuyển đổi mục đích sử dụng đất tại Hiệp Bình và toàn TP. Thủ Đức.
Nhờ hệ sinh thái dịch vụ toàn diện, BK-Saigon trở thành đơn vị đồng hành đáng tin cậy cho mọi thủ tục pháp lý – kỹ thuật liên quan đến nhà đất tại phường Hiệp Bình.
Thông Tin Liên Hệ BK-Saigon
Việc thực hiện cấp phép xây dựng phường Hiệp Bình đúng quy định giúp chủ đầu tư yên tâm thi công, tránh vi phạm hành chính và đảm bảo công trình được công nhận hợp pháp về sau. Tuy nhiên, hồ sơ xin phép xây dựng đòi hỏi sự chính xác, am hiểu quy hoạch và chuẩn kỹ thuật bản vẽ. Nếu tự thực hiện, bạn rất dễ gặp lỗi, phải bổ sung nhiều lần hoặc bị trả hồ sơ.


Hotline/Zalo/Viber: 0977 960 616 (Mr. Hoan)
Website: https://phaplynhadathcm.vn
Email: bandososaigon@gmail.com
Hệ Thống Văn Phòng BK-Saigon
- Trụ sở chính: 430 Nguyễn Xiển, P. Long Bình, TP. HCM
- Văn phòng 1: 29 Đồng Văn Cống, P. Cát Lái, TP. HCM
- Văn phòng 2: 47 Dương Đình Hội, P. Phước Long, TP. HCM
- Văn phòng 3: 51 Nguyễn Thị Thập, P. Tân Phú, TP. HCM
BK-Saigon với hơn 10 năm kinh nghiệm trong lĩnh vực pháp lý xây dựng và đo vẽ tại Thủ Đức luôn sẵn sàng hỗ trợ trọn gói: khảo sát – đo vẽ – lập bản vẽ xin phép – chuẩn bị hồ sơ – nộp và theo dõi thẩm định cho đến khi nhận giấy phép. Chúng tôi cam kết Nhanh – Chuẩn – Hợp pháp – Chi phí minh bạch.