Cấp phép xây dựng phường An Khánh là thủ tục bắt buộc đối với mọi công trình xây dựng, cải tạo, sửa chữa hoặc nâng tầng trên địa bàn TP. HCM. Phường An Khánh là khu vực trung tâm, tiếp giáp Thủ Thiêm, có mật độ dân cư cao và quy hoạch đô thị phức tạp. Do đó, việc xin cấp phép xây dựng tại phường An Khánh thường gặp nhiều trở ngại: từ kiểm tra quy hoạch, chỉ giới xây dựng, lập bản vẽ xin phép, đo vẽ hiện trạng, đến bổ sung hồ sơ khi nộp tại Bộ phận Một Cửa của UBND phường An Khánh.

>>>>> Xem thêm: Dịch vụ đo vẽ hiện trạng nhà đất Thủ Đức
Cấp phép xây dựng phường An Khánh là gì? Khi nào cần xin phép?
Giấy phép xây dựng là văn bản pháp lý do UBND phường An Khánh cấp, cho phép chủ đầu tư xây dựng, cải tạo hoặc sửa chữa công trình trong phạm vi phường An Khánh. Việc xin phép không chỉ để tránh bị xử phạt, mà còn là cơ sở để cập nhật hoàn công, cập nhật biến động tài sản và làm hồ sơ công chứng sau này.


Trường hợp bắt buộc xin cấp phép xây dựng phường An Khánh
- Xây mới nhà phố, nhà ở riêng lẻ, nhà liền kề trong hẻm hoặc mặt tiền đường.
- Cải tạo làm thay đổi kiến trúc mặt tiền công trình.
- Sửa chữa kết cấu chịu lực: đổ sàn, nâng tầng, thay đổi dầm – cột.
- Xây thêm tum, mái che cầu thang, nhà kho, gara.
- Công trình có quy mô ảnh hưởng an toàn xây dựng xung quanh.
Trường hợp được miễn giấy phép
- Sửa chữa nhỏ: sơn nhà, thay cửa, lát gạch, chống thấm…
- Các hạng mục không làm thay đổi kết cấu, không mở rộng diện tích.
- Công trình nằm trong dự án khu đô thị có quy hoạch 1/500 được phê duyệt.
Điều kiện xin cấp phép xây dựng tại phường An Khánh
Để xin cấp phép xây dựng phường An Khánh, chủ đầu tư cần đáp ứng các nhóm điều kiện pháp lý, quy hoạch và kỹ thuật sau:

>>>>> Xem thêm: Dịch vụ đo vẽ hoàn công nhà ở Thủ Đức
Điều kiện về quy hoạch
- Lô đất phải phù hợp quy hoạch sử dụng đất, không nằm trong quy hoạch treo.
- Tuân thủ chỉ giới đường đỏ, chỉ giới xây dựng, khoảng lùi công trình.
- Phù hợp mật độ xây dựng, tầng cao theo quy hoạch 1/2000 – 1/500.
- Không nằm trong hành lang bảo vệ sông, kênh, rạch hoặc hạ tầng kỹ thuật.
Điều kiện về pháp lý đất đai
- Sổ hồng hợp lệ, thông tin chủ sử dụng trùng khớp.
- Đất thuộc nhóm đất ở đô thị (ODT) hoặc đã chuyển mục đích sang đất ở.
- Không tranh chấp, không kê biên hoặc đang thế chấp tại ngân hàng (hoặc có xác nhận đồng ý của ngân hàng).
Điều kiện về hiện trạng công trình
- Nếu cải tạo, sửa chữa: diện tích thực tế phải trùng khớp giấy tờ.
- Nếu lệch diện tích: cần đo vẽ hiện trạng, lập bản vẽ hoàn công cũ.
- Không lấn ranh hàng xóm, không vi phạm hành lang an toàn giao thông.
Điều kiện về bản vẽ xin phép
- Bản vẽ phải đúng quy chuẩn kiến trúc Việt Nam.
- Được thực hiện bởi kiến trúc sư có chứng chỉ hành nghề.
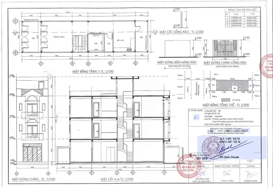
- Thể hiện mặt bằng – mặt đứng – mặt cắt – sơ đồ vị trí – đấu nối kỹ thuật.
Hồ sơ xin cấp phép xây dựng phường An Khánh cần những gì?
Một bộ hồ sơ xin giấy phép xây dựng hoàn chỉnh bao gồm:

1. Đơn đề nghị cấp phép xây dựng (Mẫu theo Thông tư 15/2016)
Điền đầy đủ thông tin công trình, quy mô, chiều cao, vật liệu, mục đích xây dựng.
2. Giấy chứng nhận quyền sử dụng đất (Sổ hồng)
Bao gồm bản sao công chứng, không tranh chấp, phù hợp quy hoạch.
3. Bộ bản vẽ xin phép xây dựng
Gồm đầy đủ:
- Mặt bằng tổng thể
- Mặt bằng các tầng
- Mặt cắt, mặt đứng
- Sơ đồ vị trí
- Bản vẽ đấu nối điện – cấp thoát nước
- Ranh giới đất theo bản đồ VN-2000
4. Bản vẽ hiện trạng (nếu cải tạo – sửa chữa)
Được đo bằng hệ tọa độ VN-2000, thể hiện chính xác diện tích sử dụng.
5. Hình ảnh hiện trạng công trình
6. Các giấy tờ pháp lý khác
- Cam kết liền kề với hộ dân xung quanh
- Giấy ủy quyền
- Biên bản xác minh hiện trạng nhà
Quy trình xin cấp phép xây dựng phường An Khánh
BK-Saigon tổng hợp quy trình chuẩn gồm 7 bước:

Bước 1: Kiểm tra quy hoạch & chỉ giới
Xác định: mật độ, tầng cao, ranh đất, hành lang an toàn, quy hoạch lộ giới.
Bước 2: Khảo sát – đo vẽ hiện trạng
Đo đạc bằng hệ thống GPS – VN-2000, lập bản vẽ hiện trạng chuẩn xác.
Bước 3: Lập bản vẽ xin phép xây dựng
Thể hiện đầy đủ kỹ thuật: mặt đứng, mặt cắt, kết cấu, vị trí đấu nối.
Bước 4: Chuẩn bị hồ sơ pháp lý
Bước 5: Nộp hồ sơ tại UBND phường An Khánh hoặc Bộ phận Một Cửa Quận 2
Bước 6: Theo dõi – giải trình – bổ sung hồ sơ
Bước 7: Nhận giấy phép và bàn giao cho chủ đầu tư
Thời gian & chi phí xin giấy phép xây dựng phường An Khánh


>>>>> Xem thêm: Dịch vụ xin giấy phép xây dựng trọn gói Thủ Đức
Thời gian xét duyệt hồ sơ
- Hồ sơ hoàn chỉnh: 15–30 ngày
- Có yêu cầu bổ sung: thêm 5–10 ngày
- Kiểm tra thực địa: có thể kéo dài hơn
Chi phí xin giấy phép xây dựng
- Phí nhà nước: 300.000 – 1.000.000đ
- Bản vẽ xin phép xây dựng: 2.000.000 – 6.000.000đ
- Đo vẽ hiện trạng: 1.500.000 – 3.000.000đ
- Dịch vụ trọn gói BK-Saigon: 5.000.000 – 12.000.000đ
Những lỗi thường gặp khi xin cấp phép xây dựng tại An Khánh
- Không kiểm tra quy hoạch trước khi lập bản vẽ
- Bản vẽ thiếu thông tin, sai kích thước
- Hồ sơ pháp lý không đầy đủ
- Không đo vẽ hiện trạng khi diện tích sai sổ
- Không theo dõi hồ sơ kịp thời
- Không tuân thủ mật độ – tầng cao – chỉ giới đường đỏ
Vì sao nên chọn BK-Saigon?
- 12+ năm kinh nghiệm tại Quận 2 – Thủ Đức
- Am hiểu sâu quy hoạch phường An Khánh
- Đo vẽ hiện trạng chuẩn VN-2000
- Bản vẽ xin phép chuẩn quy định – đúng ngay lần đầu
- Đại diện khách hàng làm việc với cơ quan nhà nước
- Chi phí minh bạch, không phát sinh
- Hỗ trợ tận nơi – tư vấn miễn phí
Liên hệ BK-Saigon – Dịch vụ cấp phép xây dựng phường An Khánh


Hotline/Zalo/Viber: 0977 960 616 (Mr. Hoan)
Website: https://phaplynhadathcm.vn
Email: bandososaigon@gmail.com
Hệ thống văn phòng BK-Saigon:
- 430 Nguyễn Xiển, P. Long Bình, TP. HCM
- 29 Đồng Văn Cống, P. Cát Lái, TP. HCM
- 47 Dương Đình Hội, P. Phước Long, TP. HCM
- 51 Nguyễn Thị Thập, P. Tân Phú, TP. HCM
Để tránh tình trạng hồ sơ bị trả lại, bị kéo dài thời gian xét duyệt hoặc sai sót về bản vẽ, chủ đầu tư cần hiểu rõ thủ tục cấp phép xây dựng phường An Khánh, các điều kiện pháp lý, quy hoạch và yêu cầu kỹ thuật bắt buộc. BK-Saigon với hơn 12 năm kinh nghiệm trong lĩnh vực đo đạc – bản vẽ – pháp lý nhà đất tại Quận 2 – Thủ Đức, tự tin hỗ trợ khách hàng trọn gói, đảm bảo hồ sơ đúng – đủ – chuẩn ngay từ lần nộp đầu tiên.
Cam kết của BK-Saigon:
- Kiểm tra quy hoạch miễn phí
- Hồ sơ đúng ngay từ lần nộp đầu
- Chi phí minh bạch – không phát sinh
- Thời gian xử lý nhanh, hỗ trợ tận nơi
- Đồng hành đến khi có giấy phép xây dựng
Tìm Kiếm Liên Quan
Giấy phép xây dựng
Dịch vụ xin phép xây dựng Thủ Đức
Nộp hồ sơ xin phép xây dựng ở đâu
Gia hạn giấy phép xây dựng online
Cấp phép xây dựng trên đất khu dân cư xây dựng mới tại TP Thủ Đức
Quy hoạch phường Linh Đông Thủ Đức
Nộp hồ sơ xin phép xây dựng online Đà Nẵng
Bản đồ quy hoạch Phường Hiệp Bình Phước Thủ Đức