Phường Gia Định, quận Bình Thạnh là khu dân cư lâu năm đang được chỉnh trang mạnh mẽ, khiến nhu cầu xin giấy phép xây dựng nhà ở, nhà phố, công trình dân dụng tăng cao. Để công trình được thi công hợp pháp, đúng quy hoạch và an toàn, hồ sơ xin phép cần chuẩn xác, đúng quy trình. BK-Saigon chuyên xin giấy phép xây dựng phường Gia Định, TP.HCM, hỗ trợ trọn gói từ đo đạc, thiết kế, nộp hồ sơ đến nhận kết quả nhanh – chuẩn – đúng luật.
Xin giấy phép xây dựng phường Bình Thạnh, TP.HCM – Dịch vụ trọn gói, nhanh, đúng quy định
Phường Bình Thạnh là khu dân cư lâu đời, tập trung nhiều nhà phố, công trình dân dụng xen kẽ trong khu hẻm nhỏ, nên việc xin giấy phép xây dựng luôn được kiểm tra rất kỹ trước khi khởi công. Để được cấp phép hợp pháp, hồ sơ cần tuân thủ quy định của UBND quận Bình Thạnh và Luật Xây dựng 2014 (sửa đổi 2020). Nhiều chủ đầu tư gặp khó khăn trong khâu đo đạc, thiết kế và chuẩn bị giấy tờ nên thường mất nhiều thời gian, thậm chí bị trả hồ sơ.
BK-Saigon – đơn vị chuyên xin giấy phép xây dựng phường Bình Thạnh, TP.HCM, cung cấp dịch vụ trọn gói từ đo vẽ hiện trạng, lập bản vẽ xin phép, nộp hồ sơ, theo dõi thẩm định đến khi nhận giấy phép xây dựng hợp lệ, giúp khách hàng khởi công đúng tiến độ – đúng quy hoạch – tiết kiệm chi phí.

>>>>> Xem thêm: Dịch vụ xin giấy phép xây dựng tại TP. HCM
Khi nào phải xin giấy phép xây dựng tại phường Bình Thạnh, TP.HCM
Theo quy định của Luật Xây dựng 2014 (sửa đổi 2020) và Nghị định 15/2021/NĐ-CP, mọi công trình xây mới, cải tạo hoặc nâng tầng tại phường Bình Thạnh đều phải có giấy phép xây dựng hợp pháp trước khi khởi công. Đây là cơ sở để đảm bảo công trình phù hợp quy hoạch đô thị, an toàn kết cấu và không ảnh hưởng đến các nhà liền kề.

Các trường hợp bắt buộc phải xin giấy phép xây dựng tại phường Bình Thạnh bao gồm:
- Xây nhà mới, nhà phố, nhà cho thuê, công trình dân dụng trong khu dân cư.
- Cải tạo, nâng tầng, mở rộng ban công, thay đổi kết cấu chịu lực hoặc công năng sử dụng.
- Xây dựng gara, nhà kho, tường rào, công trình phụ có nền móng kiên cố.
- Xây dựng trong khu vực quy hoạch, hành lang bảo vệ hạ tầng, sông rạch, giao thông.
Việc không xin phép hoặc xây sai nội dung giấy phép có thể bị xử phạt, đình chỉ thi công, thậm chí buộc tháo dỡ công trình. Do đó, chuẩn bị hồ sơ đúng quy định ngay từ đầu là bước quan trọng để đảm bảo công trình được cấp phép nhanh chóng và hợp pháp.
Hồ sơ xin giấy phép xây dựng phường Bình Thạnh gồm những gì
Để được UBND quận Bình Thạnh cấp giấy phép xây dựng hợp pháp, chủ đầu tư cần chuẩn bị hồ sơ đầy đủ và đúng biểu mẫu quy định. Việc chuẩn bị kỹ lưỡng giúp hồ sơ được duyệt nhanh, tránh bị yêu cầu bổ sung hoặc trả lại. Dưới đây là các thành phần bắt buộc trong bộ hồ sơ xin giấy phép xây dựng phường Bình Thạnh, TP.HCM:


- Đơn đề nghị cấp giấy phép xây dựng
- Theo mẫu của Bộ Xây dựng, ghi rõ loại công trình, quy mô, diện tích, địa chỉ, thông tin chủ đầu tư.
- Giấy chứng nhận quyền sử dụng đất (sổ hồng)
- Bản sao công chứng hợp lệ; nếu có đồng sở hữu cần kèm theo văn bản đồng thuận.
- Bản vẽ thiết kế xin phép xây dựng
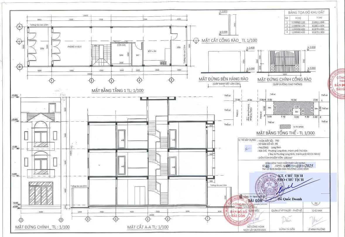
- Gồm mặt bằng, mặt cắt, mặt đứng, sơ đồ cấp điện – cấp nước; có chữ ký kỹ sư và dấu pháp nhân đơn vị thiết kế.
- Bản vẽ hiện trạng hoặc bản đồ đo đạc vị trí đất
- Thể hiện ranh giới, chỉ giới xây dựng, hành lang bảo vệ, khu vực tiếp giáp.
- Cam kết an toàn công trình liền kề
- Áp dụng khi công trình giáp ranh nhà hàng xóm hoặc có đào móng sâu.
Một bộ hồ sơ xin giấy phép xây dựng hợp lệ sẽ giúp quá trình thẩm định diễn ra thuận lợi, rút ngắn thời gian xét duyệt và đảm bảo công trình được cấp phép đúng quy định pháp luật.
Quy trình xin giấy phép xây dựng phường Bình Thạnh, TP.HCM
Để đảm bảo hồ sơ được phê duyệt nhanh, đúng quy định và không bị trả lại, chủ đầu tư cần nắm rõ quy trình xin giấy phép xây dựng phường Bình Thạnh do UBND quận Bình Thạnh quản lý. Dưới đây là các bước thực hiện chuẩn theo quy định hiện hành:

>>>>> Xem thêm: Dịch vụ xin giấy phép xây dựng tại Quận Bình Thạnh
Bước 1: Khảo sát và kiểm tra quy hoạch xây dựng
Tiến hành khảo sát hiện trạng khu đất, đo ranh giới, xác định mật độ xây dựng, chiều cao tối đa, khoảng lùi và chỉ giới đường đỏ. Đây là căn cứ để thiết kế và lập hồ sơ phù hợp quy hoạch đô thị.
Bước 2: Lập bản vẽ thiết kế và hồ sơ xin phép xây dựng
Đơn vị thiết kế (có chứng chỉ hành nghề) sẽ lập bản vẽ mặt bằng, mặt cắt, mặt đứng và sơ đồ kỹ thuật điện – nước đúng tỷ lệ 1/50 – 1/200. Hồ sơ pháp lý được soạn theo mẫu quy định.
Bước 3: Nộp hồ sơ tại cơ quan có thẩm quyền
Hồ sơ được nộp tại Bộ phận tiếp nhận hồ sơ của UBND quận Bình Thạnh hoặc qua Cổng Dịch vụ công Quốc gia (https://dichvucong.gov.vn). Sau khi kiểm tra hợp lệ, cơ quan cấp phép sẽ cấp giấy biên nhận và hẹn ngày trả kết quả.
Bước 4: Nhận giấy phép xây dựng và triển khai thi công
Khi hồ sơ được phê duyệt, chủ đầu tư nhận giấy phép xây dựng bản gốc, niêm yết tại công trình và có thể tiến hành khởi công theo đúng nội dung được cấp phép.
Quy trình này nếu thực hiện đúng từ đầu sẽ giúp xin giấy phép xây dựng tại phường Bình Thạnh diễn ra nhanh chóng, tiết kiệm thời gian và chi phí.
Chi phí xin giấy phép xây dựng phường Bình Thạnh, TP.HCM
Một trong những vấn đề được người dân quan tâm nhất khi chuẩn bị xây nhà là chi phí xin giấy phép xây dựng phường Bình Thạnh. Mức phí cụ thể sẽ phụ thuộc vào loại công trình, quy mô xây dựng, vị trí khu đất và hình thức dịch vụ mà bạn lựa chọn. Dưới đây là các khoản chi chính cần nắm rõ:

Lệ phí hành chính Nhà nước
Theo quy định tại Thông tư 250/2016/TT-BTC, mức thu hiện hành tại TP.HCM như sau:
- Nhà ở riêng lẻ của hộ gia đình: khoảng 75.000 – 150.000 đồng/lần hồ sơ.
- Công trình dân dụng, thương mại nhỏ: 300.000 – 500.000 đồng/lần hồ sơ.
Khoản phí này nộp trực tiếp tại UBND quận Bình Thạnh khi nộp hồ sơ cấp phép.
Chi phí đo đạc, thiết kế và lập hồ sơ kỹ thuật
Bao gồm chi phí khảo sát, đo ranh đất, lập bản vẽ hiện trạng và bản vẽ xin phép xây dựng đúng tỷ lệ. Mức giá dao động 1.000.000 – 2.000.000 đồng tùy diện tích và vị trí công trình.
Chi phí dịch vụ xin giấy phép xây dựng trọn gói
Nếu sử dụng dịch vụ của đơn vị chuyên nghiệp như BK-Saigon, chi phí trung bình chỉ từ 8.000.000 – 15.000.000 đồng cho gói trọn gói: đo đạc, lập hồ sơ, nộp và theo dõi đến khi nhận kết quả.
Tổng thể, giá xin giấy phép xây dựng phường Bình Thạnh luôn minh bạch, được báo rõ ràng theo từng trường hợp cụ thể, giúp chủ đầu tư dễ dàng dự trù chi phí trước khi khởi công.
Lợi ích khi thuê dịch vụ xin giấy phép xây dựng tại BK-Saigon
Thủ tục xin giấy phép xây dựng phường Bình Thạnh thường yêu cầu hồ sơ kỹ thuật, pháp lý và quy hoạch khá phức tạp. Việc tự thực hiện có thể mất nhiều thời gian đi lại, chỉnh sửa hồ sơ hoặc bị trả về do sai sót nhỏ. Vì vậy, lựa chọn BK-Saigon – đơn vị chuyên xin giấy phép xây dựng tại TP.HCM là giải pháp giúp chủ đầu tư tiết kiệm chi phí và đảm bảo hồ sơ hợp lệ ngay từ lần đầu.

>>>>> Xem thêm: Dịch vụ đo vẽ nhà đất tại Tp. HCM
Hồ sơ hợp lệ 100% – được cấp phép nhanh chóng
BK-Saigon có đội ngũ kỹ sư, kiến trúc sư và chuyên viên pháp lý giàu kinh nghiệm, đảm bảo mọi hồ sơ đúng biểu mẫu, tỷ lệ bản vẽ chuẩn và có đủ chữ ký chứng chỉ hành nghề.
Tiết kiệm 30–50% thời gian xử lý hồ sơ
Nhờ quy trình nội bộ khép kín, BK-Saigon giúp rút ngắn thời gian xin phép chỉ còn 7–10 ngày làm việc (thay vì 15–20 ngày thông thường).
Dịch vụ trọn gói – khách hàng không cần đi lại
Từ đo đạc hiện trạng, lập bản vẽ xin phép, nộp hồ sơ, theo dõi thẩm định đến nhận giấy phép xây dựng bản gốc – tất cả được BK-Saigon thực hiện thay khách hàng.
Minh bạch chi phí – cam kết đúng luật
BK-Saigon báo giá trọn gói, có hợp đồng rõ ràng và hóa đơn chứng từ hợp pháp, cam kết hoàn tiền 100% nếu hồ sơ bị từ chối do lỗi kỹ thuật của đơn vị.
Với kinh nghiệm hơn 10 năm trong lĩnh vực pháp lý và xây dựng, BK-Saigon là đối tác uy tín đồng hành cùng người dân xin giấy phép xây dựng tại phường Bình Thạnh, TP.HCM nhanh, chuẩn và hợp pháp.
Liên hệ dịch vụ xin giấy phép xây dựng phường Bình Thạnh, TP.HCM
Nếu bạn đang chuẩn bị xây mới, sửa chữa hoặc nâng tầng nhà ở tại phường Bình Thạnh, hãy để BK-Saigon đồng hành và thực hiện trọn gói toàn bộ thủ tục xin phép xây dựng thay bạn. Với hơn 10 năm kinh nghiệm trong lĩnh vực đo đạc, thiết kế và pháp lý xây dựng tại TP.HCM, BK-Saigon cam kết hồ sơ hợp lệ 100%, đúng quy định và được cấp phép nhanh nhất.


Chúng tôi cung cấp dịch vụ xin giấy phép xây dựng phường Bình Thạnh bao gồm:
- Khảo sát, đo đạc hiện trạng bằng máy toàn đạc điện tử chính xác.
- Lập bản vẽ xin phép xây dựng đúng quy chuẩn quận Bình Thạnh.
- Chuẩn bị hồ sơ pháp lý, nộp – theo dõi – nhận giấy phép bản gốc.
- Tư vấn quy hoạch, mật độ xây dựng, chỉ giới, chiều cao tầng miễn phí.
- Hỗ trợ sau cấp phép: hoàn công, cập nhật sổ hồng, sang tên.
Hotline / Zalo / Viber: 0977 960 616 (Mr. Hoan)
Website: https://phaplynhadathcm.vn
Email: bandososaigon@gmail.com
Hệ thống văn phòng tại TP.HCM:
- Trụ sở chính: 430 Nguyễn Xiển, P. Long Bình, TP. HCM
- Văn phòng 1: 29 Đồng Văn Cống, P. Cát Lái, TP. HCM
- Văn phòng 2: 47 Dương Đình Hội, P. Phước Long, TP. HCM
- Văn phòng 3: 51 Nguyễn Thị Thập, P. Tân Phú, TP. HCM
BK-Saigon – Dịch vụ xin giấy phép xây dựng phường Bình Thạnh, TP.HCM
Cam kết “Nhanh – Chuẩn – Hợp pháp – Tiết kiệm chi phí”, giúp bạn khởi công an toàn – đúng tiến độ – đúng quy định pháp luật.
Tìm Kiếm Liên Quan
xin giấy phép xây dựng phường Bình Quới
xin giấy phép xây dựng phường Thạnh Mỹ Tây
xin giấy phép xây dựng phường Bình Lợi Trung
xin giấy phép xây dựng phường Gia Định
xin giấy phép xây dựng quận Bình Thạnh