Phường Bình Lợi Trung, TP.HCM là khu dân cư phát triển nhanh, nơi nhu cầu xây dựng và cải tạo nhà ở ngày càng tăng. Để công trình được thi công hợp pháp, đúng quy hoạch và an toàn, chủ đầu tư bắt buộc phải xin giấy phép xây dựng phường Bình Lợi Trung trước khi khởi công. Hồ sơ xin phép cần đúng quy định của UBND quận Bình Thạnh, đảm bảo đầy đủ bản vẽ, giấy tờ pháp lý. BK-Saigon – đơn vị chuyên xin giấy phép xây dựng TP.HCM – hỗ trợ trọn gói từ đo đạc, thiết kế, nộp hồ sơ đến nhận giấy phép nhanh, chuẩn và đúng luật.

Xin giấy phép xây dựng phường Bình Lợi Trung, TP.HCM – Hỗ trợ trọn gói, đúng quy định
Phường Bình Lợi Trung thuộc khu vực phát triển đô thị nhanh của TP.HCM, nơi nhu cầu xây mới, sửa chữa, cải tạo nhà ở ngày càng tăng. Tuy nhiên, để công trình được thi công hợp pháp và đúng quy hoạch, việc xin giấy phép xây dựng phường Bình Lợi Trung là thủ tục bắt buộc. Hồ sơ xin phép cần đảm bảo đúng biểu mẫu, đầy đủ bản vẽ kỹ thuật và tuân thủ quy định của UBND quận Bình Thạnh.

>>>>> Xem thêm: Dịch vụ xin giấy phép xây dựng tại Tp. HCM
Khi nào phải xin giấy phép xây dựng tại phường Bình Lợi Trung, TP.HCM
Theo Luật Xây dựng 2014 (sửa đổi 2020) và Nghị định 15/2021/NĐ-CP, mọi hoạt động xây mới, sửa chữa, cải tạo công trình trong khu vực phường Bình Lợi Trung, TP.HCM đều phải được cấp giấy phép xây dựng hợp pháp trước khi khởi công. Việc này nhằm đảm bảo an toàn công trình, tuân thủ quy hoạch và giữ mỹ quan đô thị.

Các trường hợp bắt buộc phải xin giấy phép xây dựng phường Bình Lợi Trung gồm:
- Xây dựng mới nhà ở riêng lẻ, nhà phố, nhà cho thuê hoặc công trình dân dụng.
- Cải tạo, nâng tầng, mở rộng diện tích sàn hoặc thay đổi kết cấu chịu lực của công trình.
- Xây dựng tường rào, gara, nhà kho, công trình phụ có nền móng kiên cố.
- Công trình trong khu vực quy hoạch, hành lang an toàn điện, giao thông hoặc sông rạch.
Trường hợp tự ý xây dựng không phép hoặc sai phép có thể bị xử phạt hành chính, đình chỉ thi công hoặc buộc tháo dỡ. Do đó, chuẩn bị hồ sơ xin giấy phép xây dựng nhà ở đúng quy định là bước bắt buộc giúp công trình được thi công hợp pháp và an toàn.
Hồ sơ xin giấy phép xây dựng phường Bình Lợi Trung gồm những gì
Để được UBND quận Bình Thạnh cấp giấy phép xây dựng hợp pháp, chủ đầu tư cần chuẩn bị hồ sơ xin giấy phép xây dựng phường Bình Lợi Trung đầy đủ, chính xác theo quy định. Việc chuẩn bị kỹ lưỡng giúp hồ sơ được duyệt nhanh, tránh bị trả lại hoặc yêu cầu bổ sung nhiều lần.


>>>>> Xem thêm: Dịch vụ đo vẽ nhà đất tại Tp. HCM
Dưới đây là thành phần hồ sơ cơ bản:
- Đơn đề nghị cấp giấy phép xây dựng
- Theo mẫu của Bộ Xây dựng, ghi rõ loại công trình, địa chỉ, diện tích, số tầng và cam kết thi công đúng nội dung được cấp phép.
- Giấy chứng nhận quyền sử dụng đất (sổ hồng)
- Bản sao công chứng hợp lệ. Nếu là đất đồng sở hữu, cần có văn bản đồng thuận của tất cả chủ sử dụng.
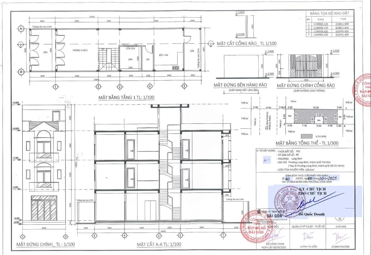
- Bản vẽ thiết kế xin phép xây dựng
- Gồm mặt bằng, mặt cắt, mặt đứng, sơ đồ điện – nước. Có chữ ký kỹ sư thiết kế và dấu pháp nhân của đơn vị có năng lực hành nghề.
- Bản vẽ hiện trạng hoặc bản đồ đo đạc vị trí thửa đất
- Thể hiện rõ ranh giới, diện tích, hành lang bảo vệ và chỉ giới đường đỏ.
- Giấy cam kết an toàn công trình liền kề (nếu xây sát nhà hàng xóm).
Một hồ sơ xin phép xây dựng hợp lệ sẽ giúp quá trình xét duyệt thuận lợi, rút ngắn thời gian và đảm bảo công trình được thi công đúng quy định pháp luật.
Quy trình xin giấy phép xây dựng phường Bình Lợi Trung, TP.HCM
Để hồ sơ được duyệt nhanh, hợp lệ và đúng quy định, chủ đầu tư cần nắm rõ quy trình xin giấy phép xây dựng phường Bình Lợi Trung theo hướng dẫn của UBND quận Bình Thạnh. Thực hiện đúng trình tự không chỉ giúp rút ngắn thời gian xử lý mà còn đảm bảo công trình được cấp phép hợp pháp.

Bước 1: Khảo sát hiện trạng và kiểm tra quy hoạch
Kỹ sư hoặc đơn vị dịch vụ tiến hành khảo sát khu đất, đo ranh giới, xác định mật độ xây dựng, chiều cao tầng và khoảng lùi theo quy hoạch 1/2000 tại quận Bình Thạnh.
Bước 2: Lập bản vẽ thiết kế và soạn hồ sơ xin phép xây dựng
Đơn vị thiết kế có chứng chỉ hành nghề sẽ lập bản vẽ mặt bằng, mặt cắt, mặt đứng, sơ đồ điện – nước; hồ sơ pháp lý được soạn đúng biểu mẫu quy định.
Bước 3: Nộp hồ sơ và theo dõi thẩm định
Hồ sơ được nộp tại UBND quận Bình Thạnh hoặc trực tuyến qua Cổng Dịch vụ công Quốc gia (https://dichvucong.gov.vn). Sau khi tiếp nhận, cán bộ thụ lý kiểm tra tính hợp lệ và hẹn ngày trả kết quả.
Bước 4: Nhận giấy phép xây dựng và khởi công
Khi hồ sơ được phê duyệt, chủ đầu tư nhận giấy phép xây dựng bản gốc, niêm yết tại công trình và có thể khởi công theo đúng nội dung được cấp phép.
Việc thực hiện đúng quy trình xin giấy phép xây dựng tại phường Bình Lợi Trung giúp công trình hợp pháp, an toàn và tiết kiệm tối đa thời gian cho chủ đầu tư.
Chi phí xin giấy phép xây dựng phường Bình Lợi Trung, TP.HCM
Khi chuẩn bị xây nhà, nhiều chủ đầu tư quan tâm đến chi phí xin giấy phép xây dựng phường Bình Lợi Trung để dự trù ngân sách hợp lý. Thực tế, mức phí sẽ khác nhau tùy loại công trình, quy mô xây dựng và hình thức dịch vụ mà bạn chọn. Dưới đây là các khoản chi phổ biến cần biết:

Lệ phí hành chính Nhà nước
Theo Thông tư 250/2016/TT-BTC, mức thu tại TP.HCM được quy định như sau:
- Nhà ở riêng lẻ của hộ gia đình: 75.000 – 150.000 đồng/lần hồ sơ.
- Công trình dân dụng, thương mại nhỏ: 300.000 – 500.000 đồng/lần hồ sơ.
Khoản phí này nộp trực tiếp tại UBND quận Bình Thạnh khi nộp hồ sơ xin phép.
Chi phí đo đạc, lập bản vẽ kỹ thuật
Bao gồm công tác khảo sát hiện trạng, đo đạc ranh giới đất, lập bản vẽ xin phép đúng tỷ lệ (1/50 – 1/200). Chi phí trung bình 1.000.000 – 2.000.000 đồng tùy quy mô.
Chi phí dịch vụ trọn gói BK-Saigon
Dịch vụ xin giấy phép xây dựng TP.HCM của BK-Saigon trọn gói từ 8.000.000 – 15.000.000 đồng, bao gồm đo đạc, thiết kế, nộp hồ sơ, theo dõi và nhận giấy phép xây dựng hợp lệ.
Tổng chi phí xin phép xây dựng phường Bình Lợi Trung luôn được BK-Saigon báo giá rõ ràng, minh bạch, không phát sinh, giúp chủ đầu tư dễ dàng lên kế hoạch thi công hiệu quả và tiết kiệm nhất.
Lợi ích khi thuê dịch vụ xin giấy phép xây dựng tại BK-Saigon
Thủ tục xin giấy phép xây dựng phường Bình Lợi Trung đòi hỏi am hiểu pháp lý, quy hoạch đô thị và kỹ thuật xây dựng. Nhiều chủ đầu tư tự thực hiện thường mất thời gian đi lại, bị trả hồ sơ hoặc chậm tiến độ thi công. Vì vậy, lựa chọn BK-Saigon – đơn vị chuyên nghiệp trong lĩnh vực xin giấy phép xây dựng TP.HCM – là giải pháp giúp công trình của bạn được cấp phép nhanh, đúng luật và tiết kiệm tối đa chi phí.

>>>>> Xem thêm: Dịch vụ xin giấy phép xây dựng Bình Thạnh
Hồ sơ hợp lệ 100% – được duyệt ngay lần đầu
BK-Saigon có đội ngũ kỹ sư, kiến trúc sư và chuyên viên pháp lý nhiều kinh nghiệm, đảm bảo hồ sơ đúng biểu mẫu, tỷ lệ bản vẽ chuẩn, đầy đủ chữ ký và chứng chỉ hành nghề.
Tiết kiệm thời gian – không cần đi lại nhiều
Toàn bộ quy trình đo đạc, lập bản vẽ, nộp hồ sơ, theo dõi thẩm định và nhận giấy phép được BK-Saigon thực hiện thay khách hàng.
Tư vấn quy hoạch miễn phí – chi phí minh bạch
Hỗ trợ kiểm tra mật độ xây dựng, khoảng lùi, chiều cao tầng trước khi thiết kế; báo giá trọn gói, có hợp đồng và hóa đơn rõ ràng, không phát sinh.
Với hơn 10 năm kinh nghiệm trong lĩnh vực pháp lý nhà đất, BK-Saigon là đối tác đáng tin cậy giúp bạn xin giấy phép xây dựng nhà ở tại phường Bình Lợi Trung nhanh – chuẩn – hợp pháp.
Liên hệ dịch vụ xin giấy phép xây dựng phường Bình Lợi Trung, TP.HCM
Nếu bạn đang có nhu cầu xây nhà, sửa chữa hoặc hoàn công công trình tại phường Bình Lợi Trung, TP.HCM, hãy để BK-Saigon đồng hành và thực hiện toàn bộ thủ tục thay bạn. Với hơn 10 năm kinh nghiệm trong lĩnh vực xin giấy phép xây dựng TP.HCM, BK-Saigon cam kết hồ sơ hợp lệ 100%, đúng quy định và được cấp phép nhanh chóng.


Chúng tôi cung cấp dịch vụ xin giấy phép xây dựng phường Bình Lợi Trung trọn gói:
- Khảo sát, đo đạc hiện trạng, lập bản vẽ đúng quy chuẩn.
- Chuẩn bị và hoàn thiện hồ sơ pháp lý đầy đủ, chính xác.
- Đại diện khách hàng nộp hồ sơ, theo dõi, xử lý yêu cầu bổ sung.
- Nhận giấy phép xây dựng bản gốc và bàn giao tận nơi.
- Tư vấn miễn phí về quy hoạch, mật độ xây dựng, chiều cao tầng.
Hotline / Zalo / Viber: 0977 960 616 (Mr. Hoan)
Website: https://phaplynhadathcm.vn
Email: bandososaigon@gmail.com
Hệ thống văn phòng tại TP.HCM:
- Trụ sở chính: 430 Nguyễn Xiển, P. Long Bình, TP. HCM
- Văn phòng 1: 29 Đồng Văn Cống, P. Cát Lái, TP. HCM
- Văn phòng 2: 47 Dương Đình Hội, P. Phước Long, TP. HCM
- Văn phòng 3: 51 Nguyễn Thị Thập, P. Tân Phú, TP. HCM
BK-Saigon – Dịch vụ xin giấy phép xây dựng phường Bình Lợi Trung, TP.HCM
Cam kết “Nhanh – Chuẩn – Hợp pháp – Tiết kiệm chi phí”, giúp bạn khởi công an toàn – đúng tiến độ – đúng quy định pháp luật.
Tìm Kiếm Liên Quan
xin giấy phép xây dựng phường Bình Quới
xin giấy phép xây dựng phường Thạnh Mỹ Tây
xin giấy phép xây dựng phường Bình Thạnh
xin giấy phép xây dựng phường Gia Định
xin giấy phép xây dựng quận Bình Thạnh