Dịch Vụ xin giấy phép xây dựng Huyện Hóc Môn, TP.HCM

Dịch vụ nhà đất
BẢN ĐỒ SỐ SÀI GÒN
Dịch Vụ xin giấy phép xây dựng Huyện Hóc Môn, TP.HCM
Mục lục [ show ]

Huyện Hóc Môn là khu vực có tốc độ đô thị hóa nhanh, tập trung nhiều khu dân cư, kho bãi, nhà xưởng và công trình thương mại. Nhu cầu xây dựng, sửa chữa, cải tạo ngày càng tăng cao. Tuy nhiên, để công trình hợp pháp, đúng quy hoạch và đảm bảo an toàn, xin giấy phép xây dựng Huyện Hóc Môn, TP.HCM là thủ tục bắt buộc. Đây cũng là cơ sở quan trọng cho hoàn công, xin cấp sổ hồng và giao dịch bất động sản sau này.

Giấy phép xây dựng là gì? Ý nghĩa tại Huyện Hóc Môn


Giấy phép xây dựng là văn bản pháp lý do cơ quan nhà nước có thẩm quyền cấp, cho phép chủ đầu tư được tiến hành xây mới, sửa chữa, cải tạo hoặc nâng tầng công trình theo đúng quy hoạch và tiêu chuẩn kỹ thuật. Đây là thủ tục bắt buộc với phần lớn công trình tại TP.HCM, trong đó có Huyện Hóc Môn – nơi đô thị hóa nhanh và dân cư ngày càng đông đúc.

Việc xin giấy phép xây dựng Huyện Hóc Môn, TP.HCM mang lại nhiều ý nghĩa quan trọng:

  • Đối với chủ đầu tư: giúp công trình hợp pháp, tránh bị xử phạt hoặc tháo dỡ; là cơ sở để hoàn công, xin cấp sổ hồng và thuận lợi khi giao dịch bất động sản.
  • Đối với quản lý nhà nước: đảm bảo trật tự xây dựng, hạn chế tình trạng xây dựng trái phép, đồng thời quản lý mật độ, chiều cao công trình phù hợp với hạ tầng khu vực Hóc Môn.

Căn cứ pháp lý khi xin giấy phép xây dựng Huyện Hóc Môn


Thủ tục xin giấy phép xây dựng Huyện Hóc Môn, TP.HCM được thực hiện dựa trên hệ thống pháp luật rõ ràng và thống nhất, nhằm đảm bảo công trình hợp pháp và đúng quy hoạch. Một số căn cứ pháp lý chính gồm:

  • Luật Xây dựng 2014 (được sửa đổi, bổ sung năm 2020): quy định nguyên tắc, điều kiện, thẩm quyền và trách nhiệm cấp phép.
  • Nghị định 15/2021/NĐ-CP: hướng dẫn chi tiết việc quản lý dự án đầu tư xây dựng, trong đó có quy trình cấp giấy phép.
  • Thông tư 15/2016/TT-BXD: quy định mẫu đơn, thành phần hồ sơ, yêu cầu bản vẽ thiết kế khi xin phép.
  • Quy định của UBND TP.HCM và UBND Huyện Hóc Môn: quy định cụ thể về mật độ xây dựng, khoảng lùi, chiều cao và lệ phí.

Việc nắm rõ và tuân thủ căn cứ pháp lý ngay từ đầu giúp hồ sơ xin phép hợp lệ, giảm nguy cơ bị trả lại và đảm bảo công trình triển khai minh bạch, đúng tiến độ.

Đối tượng phải xin giấy phép xây dựng tại Huyện Hóc Môn


Huyện Hóc Môn là khu vực ngoại thành TP.HCM, có tốc độ đô thị hóa cao với nhiều khu dân cư, chợ đầu mối, nhà xưởng và kho bãi. Do đó, hầu hết công trình xây dựng tại đây đều phải thực hiện thủ tục xin giấy phép xây dựng Huyện Hóc Môn, TP.HCM để đảm bảo tính pháp lý và an toàn.

Các đối tượng bắt buộc phải xin phép gồm:

  • Nhà ở riêng lẻ: xây mới, nâng tầng, cải tạo làm thay đổi kết cấu chịu lực.
  • Công trình dân dụng: biệt thự, căn hộ dịch vụ, văn phòng cho thuê.
  • Công trình thương mại – dịch vụ: showroom, cửa hàng, khách sạn, nhà hàng.
  • Công trình công nghiệp – hạ tầng kỹ thuật: nhà xưởng, kho bãi, bãi giữ xe, trạm kỹ thuật.

Một số trường hợp được miễn phép: sửa chữa nhỏ không ảnh hưởng kết cấu, công trình tạm phục vụ thi công, hoặc công trình đặc thù được UBND TP.HCM quy định.

Hồ sơ xin giấy phép xây dựng Huyện Hóc Môn


Để thủ tục xin giấy phép xây dựng Huyện Hóc Môn, TP.HCM được tiếp nhận và xử lý nhanh chóng, chủ đầu tư cần chuẩn bị bộ hồ sơ đầy đủ, đúng theo quy định pháp luật. Một bộ hồ sơ cơ bản bao gồm:

  • Đơn đề nghị cấp giấy phép xây dựng: theo mẫu ban hành bởi Bộ Xây dựng.
  • Giấy chứng nhận quyền sử dụng đất (sổ đỏ): chứng minh quyền hợp pháp của chủ đầu tư với thửa đất.
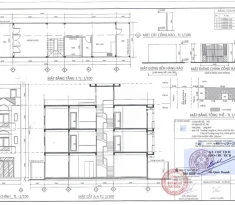
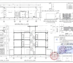
  • Bản vẽ thiết kế công trình: thể hiện rõ mặt bằng, mặt đứng, mặt cắt, cùng hệ thống cấp – thoát nước, điện, thoát hiểm. Bản vẽ phải có chữ ký và dấu pháp nhân của đơn vị tư vấn có chứng chỉ hành nghề.
  • Sơ đồ vị trí công trình: mô tả ranh giới, khoảng lùi, chỉ giới xây dựng và mối liên hệ với hạ tầng kỹ thuật xung quanh.
  • Văn bản thẩm duyệt PCCC hoặc báo cáo môi trường: áp dụng đối với công trình có yêu cầu đặc thù.

Hồ sơ được chuẩn bị kỹ lưỡng ngay từ đầu sẽ giúp rút ngắn thời gian xét duyệt, hạn chế tình trạng phải bổ sung nhiều lần, đảm bảo tiến độ khởi công công trình.

Quy trình xin giấy phép xây dựng tại UBND Huyện Hóc Môn


Để công trình được triển khai hợp pháp và đúng quy hoạch, chủ đầu tư cần nắm rõ quy trình xin giấy phép xây dựng Huyện Hóc Môn, TP.HCM. Các bước thực hiện gồm:

  • Bước 1: Chuẩn bị hồ sơ
    Soạn đơn đề nghị cấp phép theo mẫu, chuẩn bị giấy chứng nhận quyền sử dụng đất, bản vẽ thiết kế, sơ đồ vị trí và các giấy tờ bổ sung (PCCC, môi trường nếu thuộc diện bắt buộc).
  • Bước 2: Nộp hồ sơ
    Nộp trực tiếp tại Bộ phận một cửa UBND Huyện Hóc Môn hoặc qua Cổng dịch vụ công TP.HCM. Sau khi nộp, chủ đầu tư sẽ nhận giấy biên nhận để theo dõi tiến độ xử lý.
  • Bước 3: Thẩm định hồ sơ
    Cơ quan chức năng kiểm tra tính pháp lý, đối chiếu với quy hoạch chi tiết. Trong một số trường hợp, có thể tiến hành khảo sát thực tế tại vị trí công trình.
  • Bước 4: Bổ sung, chỉnh sửa hồ sơ (nếu cần)
    Nếu hồ sơ chưa đầy đủ, chủ đầu tư sẽ được yêu cầu bổ sung theo quy định.
  • Bước 5: Nhận giấy phép xây dựng
    Khi hồ sơ hợp lệ, UBND Huyện Hóc Môn cấp giấy phép chính thức, cho phép khởi công theo nội dung được phê duyệt.

Chủ đầu tư có thể ủy quyền cho đơn vị dịch vụ chuyên nghiệp để tiết kiệm thời gian, công sức và đảm bảo hồ sơ được xử lý nhanh chóng.

Thời gian và lệ phí xin giấy phép xây dựng Huyện Hóc Môn


Khi thực hiện thủ tục xin giấy phép xây dựng Huyện Hóc Môn, TP.HCM, chủ đầu tư cần nắm rõ thời gian giải quyết và lệ phí để chủ động trong kế hoạch thi công:

  • Thời gian giải quyết:
    • Hồ sơ hợp lệ: thông thường từ 15 – 30 ngày làm việc kể từ ngày nộp.
    • Trường hợp hồ sơ cần bổ sung hoặc phải thẩm định thêm (PCCC, môi trường), thời gian có thể kéo dài hơn.
  • Lệ phí cấp phép:
    • Nhà ở riêng lẻ: từ 50.000 – 100.000 đồng/giấy phép.
    • Công trình dân dụng, thương mại – dịch vụ, công nghiệp: mức phí cao hơn, tùy theo loại hình và quy mô.

Toàn bộ lệ phí đều được niêm yết công khai, minh bạch theo quy định của UBND TP.HCM. Việc chuẩn bị hồ sơ chính xác ngay từ đầu sẽ giúp tiết kiệm thời gian và hạn chế phát sinh chi phí ngoài mong muốn.

Lợi ích khi sử dụng dịch vụ xin giấy phép xây dựng trọn gói tại Huyện Hóc Môn


Mặc dù thủ tục xin giấy phép xây dựng Huyện Hóc Môn, TP.HCM đã có quy định cụ thể, nhưng thực tế nhiều chủ đầu tư vẫn gặp khó khăn: hồ sơ dễ sai sót, quy định pháp lý phức tạp, mất nhiều thời gian đi lại để bổ sung giấy tờ. Chính vì vậy, dịch vụ xin giấy phép xây dựng trọn gói là giải pháp tối ưu với nhiều lợi ích:

  • Hồ sơ hợp pháp, chính xác: được chuẩn bị bởi đội ngũ am hiểu luật xây dựng và quy hoạch tại địa phương.
  • Tiết kiệm thời gian, công sức: khách hàng không cần trực tiếp đi lại nhiều lần; đơn vị dịch vụ sẽ thay mặt xử lý toàn bộ quy trình.
  • Tư vấn chuyên sâu: hướng dẫn chi tiết về mật độ xây dựng, chỉ giới, chiều cao, các yêu cầu về PCCC và môi trường.
  • Chi phí minh bạch: báo giá rõ ràng, cam kết không phát sinh thêm ngoài hợp đồng.
  • Đảm bảo tiến độ: hồ sơ được xét duyệt nhanh chóng, giúp công trình khởi công đúng kế hoạch.

Đây là lựa chọn an toàn, hiệu quả cho hộ gia đình, doanh nghiệp và chủ đầu tư tại Hóc Môn.

Đơn vị uy tín hỗ trợ xin giấy phép xây dựng Huyện Hóc Môn


Khi thực hiện thủ tục xin giấy phép xây dựng Huyện Hóc Môn, TP.HCM, việc chọn một đơn vị dịch vụ uy tín sẽ giúp hồ sơ được xử lý nhanh chóng, giảm rủi ro pháp lý và tiết kiệm thời gian cho chủ đầu tư.

Một trong những đơn vị được nhiều khách hàng tin tưởng là Công ty TNHH Bản Đồ Số Sài Gòn (BK-Saigon).

Ưu điểm nổi bật của BK-Saigon:

  • Kinh nghiệm thực tế: đã hỗ trợ thành công hàng trăm hồ sơ xây dựng tại Hóc Môn và các quận, huyện khác ở TP.HCM.
  • Đội ngũ chuyên nghiệp: gồm kiến trúc sư, kỹ sư xây dựng và chuyên viên pháp lý am hiểu sâu quy định pháp luật và quy hoạch địa phương.
  • Dịch vụ trọn gói: từ tư vấn, khảo sát, chuẩn bị hồ sơ, nộp tại UBND đến theo dõi tiến độ và bàn giao giấy phép.
  • Chi phí minh bạch – tiến độ cam kết: giúp chủ đầu tư yên tâm triển khai công trình đúng kế hoạch.

Thông tin liên hệ dịch vụ xin giấy phép xây dựng Huyện Hóc Môn


Nếu bạn đang có nhu cầu xin giấy phép xây dựng Huyện Hóc Môn, TP.HCM, hãy liên hệ ngay với Công ty TNHH Bản Đồ Số Sài Gòn (BK-Saigon) để được tư vấn miễn phí và hỗ trợ trọn gói. Với nhiều năm kinh nghiệm, BK-Saigon cam kết mang đến dịch vụ nhanh chóng – hợp pháp – chi phí minh bạch.

Thông tin liên hệ:

 Hệ thống văn phòng tại TP.HCM

  • Trụ sở chính: 430 Nguyễn Xiển, P. Long Bình, TP. HCM
  • Văn phòng 1: 29 Đồng Văn Cống, P. Cát Lái, TP. HCM
  • Văn phòng 2: 47 Dương Đình Hội, P. Phước Long, TP. HCM
  • Văn phòng 3: 51 Nguyễn Thị Thập, P. Tân Phú, Tp. HCM

Liên hệ ngay để nhận báo giá chi tiết và triển khai thủ tục xây dựng hợp pháp, an toàn

CÁC CÂU HỎI THƯỜNG GẶP
Có cần xin giấy phép khi xây nhà ở Huyện Hóc Môn không?
Có. Ngoại trừ một số công trình sửa chữa nhỏ hoặc công trình tạm, hầu hết nhà ở riêng lẻ, biệt thự, nhà phố tại Hóc Môn đều phải xin phép trước khi thi công.
Hồ sơ xin giấy phép xây dựng Huyện Hóc Môn gồm những gì?
Hồ sơ cơ bản bao gồm: đơn đề nghị cấp phép, sổ đỏ, bản vẽ thiết kế, sơ đồ vị trí và các văn bản thẩm duyệt PCCC hoặc môi trường (nếu có).
Thời gian xin giấy phép mất bao lâu?
Nếu hồ sơ hợp lệ, thời gian giải quyết thường từ 15 – 30 ngày làm việc. Nếu hồ sơ cần bổ sung hoặc phải thẩm định thêm, thời gian có thể lâu hơn.
Lệ phí xin giấy phép xây dựng Huyện Hóc Môn là bao nhiêu?
Đối với nhà ở riêng lẻ, lệ phí dao động từ 50.000 – 100.000 đồng/giấy phép. Các công trình khác sẽ có mức phí cao hơn tùy theo loại hình và quy mô.
Có thể nộp hồ sơ trực tuyến không?
Có. Chủ đầu tư có thể nộp tại Bộ phận một cửa UBND Huyện Hóc Môn hoặc qua Cổng dịch vụ công TP.HCM.
Nếu xây dựng không phép sẽ bị xử lý thế nào?
Chủ đầu tư có thể bị xử phạt hành chính, đình chỉ thi công và buộc tháo dỡ công trình vi phạm.
LĨNH VỰC HOẠT ĐỘNG
01
Xin giấy phép xây dựng là bước bắt buộc trước khi khởi công bất kỳ công trình nào, và BK-SAIGON chính là đơn vị uy tín giúp bạn thực hiện thủ tục này nhanh chóng, chính xác. Với kinh nghiệm xử lý hồ sơ xin giấy phép xây dựng cho nhiều loại công trình từ nhà ở riêng lẻ, nhà phố đến dự án lớn, BK-SAIGON cam kết hỗ trợ trọn gói từ khâu tư vấn, chuẩn bị hồ sơ, nộp và theo dõi tiến trình để khách hàng tiết kiệm tối đa thời gian và công sức.
02
Bạn đang tìm kiếm dịch vụ đo vẽ nhà đất uy tín, chính xác tại TPHCM để phục vụ thủ tục pháp lý, xin phép xây dựng hoặc giải quyết tranh chấp? Trong môi trường đô thị phát triển nhanh, giá trị bất động sản tăng cao, một bản vẽ đo vẽ chính xác có thể quyết định việc bạn tiết kiệm hàng chục triệu đồng và tránh những rắc rối pháp lý kéo dài nhiều năm. BK-SAIGON – với đội ngũ kỹ thuật viên giàu kinh nghiệm, thiết bị đo đạc hiện đại và quy trình chuyên nghiệp – cam kết mang đến dịch vụ đo vẽ nhà đất nhanh chóng, chuẩn xác, giá hợp lý, đáp ứng yêu cầu của cả cá nhân lẫn doanh nghiệp.
03
Dịch vụ đo vẽ hoàn công nhà ở riêng lẻ chính xác, đúng hiện trạng thi công, hỗ trợ lập hồ sơ hoàn công, cập nhật sổ hồng nhanh chóng. Cam kết trọn gói A–Z, tư vấn pháp lý miễn phí, khảo sát tận nơi, không phát sinh chi phí. Liên hệ BK-SAIGON gặp Mr. Hoan - 0977 960 616
04
Dịch vụ cấp đổi sổ đỏ, sổ hồng nhanh chóng, đúng quy trình tại TP.HCM. Hỗ trợ đo vẽ hiện trạng, lập hồ sơ, nộp tại Văn phòng đăng ký đất đai. Tư vấn miễn phí – không phát sinh – cam kết ra sổ đúng hẹn, phù hợp cho sang tên, tách thửa, hoàn công.
05
BK-SAIGON là đơn vị chuyên cung cấp dịch vụ đo vẽ hiện trạng cắm mốc ranh uy tín tại TP.HCM. Chúng tôi cam kết đảm bảo hồ sơ kỹ thuật đúng chuẩn pháp lý, đo đạc nhanh chóng, chính xác và tiết kiệm chi phí cho khách hàng. Với đội ngũ kỹ sư chuyên nghiệp và trang thiết bị hiện đại, BK-SAIGON tự hào mang đến dịch vụ chất lượng cao, đáp ứng nhu cầu của khách hàng trong bối cảnh thị trường bất động sản đang phát triển mạnh mẽ.
06
Hồ sơ pháp lý nhà đất gồm giấy tờ chứng minh quyền sử dụng đất, quyền sở hữu nhà ở, hợp đồng chuyển nhượng, giấy phép xây dựng, bản vẽ hoàn công… Chúng tôi cung cấp dịch vụ trọn gói hồ sơ pháp lý nhà đất tại TP.HCM: đo vẽ, hoàn công, mua bán, tách thửa, hợp thửa, sang tên, đăng ký thế chấp, tra thông tin quy hoạch.
07
Dịch vụ xin phép và thi công hệ thống PCCC trọn gói tại TP.HCM. Tư vấn – thiết kế – lập hồ sơ xin phép PCCC, thi công lắp đặt hệ thống báo cháy, chữa cháy đạt chuẩn, nghiệm thu bàn giao đúng quy định. Cam kết đúng quy chuẩn, không phát sinh, hỗ trợ trọn gói.
08
Xây nhà trọn gói chuyên nghiệp tại TP.HCM: từ thiết kế kiến trúc, xin phép xây dựng, thi công phần thô – hoàn thiện đến hồ sơ hoàn công. Cam kết đúng tiến độ, đúng pháp lý, bảo hành dài hạn. Miễn phí tư vấn – khảo sát – báo giá theo yêu cầu từng công trình.
09
Dịch vụ mua bán, ký gửi nhà đất chuyên nghiệp tại TP.HCM. Hỗ trợ định giá, tìm kiếm khách hàng, tư vấn pháp lý, thủ tục công chứng, sang tên nhanh chóng. Cam kết giao dịch minh bạch, giá trị thực, hiệu quả cao – hỗ trợ tận nơi, không phát sinh chi phí.
Dịch vụ LIÊN QUAN
BK‑SAIGON hỗ trợ xin giấy phép xây dựng phường Tân Phú trọn gói
15-12

BK‑SAIGON hỗ trợ xin giấy phép xây dựng phường Tân Phú trọn gói

Xây dựng công trình tại phường Tân Phú luôn đòi hỏi phải tuân thủ pháp luật về xây dựng và quy hoạch. Để công trình hợp pháp, an toàn và tránh rủi ro pháp lý, việc xin giấy phép xây dựng phường Tân Phú là bước quan trọng mà mọi chủ đầu tư phải thực hiện. BK‑SAIGON cung cấp dịch vụ trọn gói từ tư vấn, chuẩn bị hồ sơ đến nộp và nhận giấy phép, giúp khách hàng tiết kiệm thời gian và công sức.
Hỗ trợ xin giấy phép xây dựng phường Phú Thạnh nhanh chóng
15-12

Hỗ trợ xin giấy phép xây dựng phường Phú Thạnh nhanh chóng

Bạn đang có kế hoạch xây dựng công trình tại phường Phú Thạnh nhưng chưa nắm rõ thủ tục pháp lý? Việc xin giấy phép xây dựng phường Phú Thạnh là bước quan trọng để công trình được thực hiện hợp pháp, an toàn và đúng tiến độ. BK-SAIGON cung cấp dịch vụ tư vấn và hỗ trợ xin giấy phép nhanh chóng, giúp khách hàng tiết kiệm thời gian, chi phí và tránh rủi ro pháp lý. Hãy để chúng tôi đồng hành để quá trình xin phép trở nên đơn giản và hiệu quả nhất.
Đơn vị xin giấy phép xây dựng phường Phú Thọ Hòa giá rẻ
15-12

Đơn vị xin giấy phép xây dựng phường Phú Thọ Hòa giá rẻ

Bạn đang tìm kiếm đơn vị xin giấy phép xây dựng phường Phú Thọ Hòa giá rẻ mà vẫn đảm bảo nhanh chóng và chính xác? Việc tự làm thủ tục giấy phép xây dựng thường mất nhiều thời gian, hồ sơ phức tạp và dễ bị trả lại. BK‑SAIGON cung cấp dịch vụ trọn gói, hỗ trợ từ A đến Z, giúp khách hàng tiết kiệm chi phí và thời gian. Với kinh nghiệm lâu năm, đơn vị chúng tôi cam kết thực hiện hồ sơ đúng pháp luật, nhanh chóng và uy tín.
Dịch vụ xin giấy phép xây dựng phường Tây Sơn Nhì uy tín
15-12

Dịch vụ xin giấy phép xây dựng phường Tây Sơn Nhì uy tín

Việc xin giấy phép xây dựng tại phường Tây Sơn Nhì là bước quan trọng để công trình được thực hiện hợp pháp, an toàn và đúng quy hoạch. Tuy nhiên, thủ tục rườm rà và hồ sơ phức tạp khiến nhiều chủ đầu tư gặp khó khăn. Dịch vụ xin giấy phép xây dựng phường Tây Sơn Nhì uy tín của BK‑SAIGON hỗ trợ trọn gói từ chuẩn bị hồ sơ đến nhận giấy phép nhanh chóng và chính xác. Nhờ đó, bạn hoàn toàn yên tâm khởi công xây dựng mà không lo vướng thủ tục pháp lý.
Thủ tục và chi phí xin giấy phép xây dựng phường Tây Thạnh
15-12

Thủ tục và chi phí xin giấy phép xây dựng phường Tây Thạnh

Khi xây dựng nhà ở hay cải tạo công trình tại phường Tây Thạnh, việc xin giấy phép xây dựng là bước bắt buộc để đảm bảo công trình hợp pháp và an toàn. Hiểu rõ thủ tục và chi phí xin giấy phép sẽ giúp chủ đầu tư tiết kiệm thời gian, tránh sai sót và hạn chế rủi ro pháp lý. Bài viết này BK-SAIGON sẽ hướng dẫn chi tiết các bước, chi phí và lưu ý quan trọng để quá trình xin phép diễn ra thuận lợi.
Tư vấn xin giấy phép xây dựng quận Tân Phú cho nhà ở và công trình
15-12

Tư vấn xin giấy phép xây dựng quận Tân Phú cho nhà ở và công trình

Việc xin giấy phép xây dựng quận Tân Phú là bước quan trọng để mọi công trình, từ nhà ở đến công trình thương mại, được thực hiện hợp pháp và đúng quy hoạch. Thủ tục xin giấy phép thường đòi hỏi nhiều hồ sơ pháp lý và bản vẽ kỹ thuật, khiến chủ đầu tư mất nhiều thời gian nếu tự thực hiện. Dịch vụ tư vấn xin giấy phép xây dựng của BK-SAIGON giúp khách hàng chuẩn bị hồ sơ đầy đủ, nộp nhanh chóng và đảm bảo đúng quy định pháp luật. Nhờ đó, công trình được thi công an toàn, tiết kiệm thời gian và chi phí.
Cấp phép xây dựng phường Long Phước nhanh – chuẩn – đúng quy hoạch
06-12

Cấp phép xây dựng phường Long Phước nhanh – chuẩn – đúng quy hoạch

Dịch vụ cấp phép xây dựng phường Long Phước uy tín: hỗ trợ đo vẽ hiện trạng, lập bản vẽ xin phép, chuẩn bị hồ sơ và nộp cho UBND Thủ Đức theo quy trình chuẩn. BK-Saigon cam kết hồ sơ chính xác, xử lý nhanh, không phát sinh chi phí. Liên hệ tư vấn miễn phí qua hotline 0977 960 616.
Cấp phép xây dựng phường Long Trường nhanh – chuẩn – đúng quy hoạch
06-12

Cấp phép xây dựng phường Long Trường nhanh – chuẩn – đúng quy hoạch

Dịch vụ cấp phép xây dựng phường Long Trường uy tín tại TP.HCM: đo vẽ hiện trạng, lập bản vẽ xin phép, chuẩn bị hồ sơ và nộp cho UBND theo quy trình chuẩn. BK-Saigon cam kết xử lý nhanh, hồ sơ đúng kỹ thuật, không phát sinh chi phí. Liên hệ tư vấn miễn phí: 0977 960 616.
Cấp phép xây dựng phường Tam Bình nhanh, chuẩn và đúng quy hoạch
06-12

Cấp phép xây dựng phường Tam Bình nhanh, chuẩn và đúng quy hoạch

Dịch vụ cấp phép xây dựng phường Tam Bình uy tín: đo vẽ hiện trạng, lập bản vẽ xin phép, chuẩn bị hồ sơ và nộp cho cơ quan chức năng trọn gói. BK-Saigon cam kết hồ sơ chuẩn, xử lý nhanh, đúng quy định, không phát sinh chi phí. Liên hệ tư vấn ngay: 0977 960 616.
Cấp phép xây dựng phường Hiệp Bình nhanh – chuẩn – hợp pháp
06-12

Cấp phép xây dựng phường Hiệp Bình nhanh – chuẩn – hợp pháp

Dịch vụ cấp phép xây dựng phường Hiệp Bình uy tín: đo vẽ hiện trạng, lập bản vẽ xin phép, chuẩn bị hồ sơ và nộp cơ quan chức năng trọn gói. BK-Saigon cam kết hồ sơ chuẩn, xử lý nhanh, đúng quy hoạch, không phát sinh chi phí. Hotline tư vấn: 0977 960 616.
Cấp phép xây dựng phường Linh Xuân nhanh chóng, đúng quy định
05-12

Cấp phép xây dựng phường Linh Xuân nhanh chóng, đúng quy định

Dịch vụ cấp phép xây dựng phường Linh Xuân uy tín tại TP. HCM: đo vẽ hiện trạng, lập bản vẽ xin phép, chuẩn bị hồ sơ và nộp cơ quan chức năng trọn gói. Cam kết nhanh, đúng quy hoạch, không phát sinh chi phí. Tư vấn miễn phí qua Hotline 0977 960 616.
Cấp phép xây dựng phường Bình Trưng – Hồ sơ, thủ tục, dịch vụ trọn gói
05-12

Cấp phép xây dựng phường Bình Trưng – Hồ sơ, thủ tục, dịch vụ trọn gói

BK-Saigon cung cấp dịch vụ cấp phép xây dựng phường Bình Trưng, Tp. HCM uy tín, chuyên nghiệp. Hỗ trợ kiểm tra quy hoạch, đo vẽ hiện trạng, lập bản vẽ xin phép và đại diện nộp hồ sơ tại Quận 2. Cam kết hồ sơ chuẩn, duyệt nhanh, chi phí minh bạch.

BẢN ĐỒ SỐ SÀI GÒN là đơn vị hàng đầu trong lĩnh vực đo vẽ nhà đất, xin phép xây dựng, đo vẽ hoàn công và thi công xây dựng tại TP.HCM, cam kết uy tín – chuyên nghiệp – minh bạch.

KẾT NỐI NGAY
THÔNG TIN CÔNG TY
BẢN ĐỒ SỐ SÀI GÒN

Giấy Phép Kinh Doanh: 0318055956 

Chứng Chỉ Thiết Kế, XPXD: HCM-00076991 

Chứng Chỉ Đo Đạc Bản Đồ: 00582

Đại Diện Pháp Luật: Ông Đỗ Công Hoan

Email: bandososaigon@gmail.com

Hotline: Mr. Hoan - 0977.960.616 (Tư vấn 24/7)

Trụ sở chính: 29 Đồng Văn Cống, P. Cát Lái, Tp. HCM

Văn phòng 1: 430 Nguyễn Xiển, P. Long Bình, TP.HCM

Văn phòng 2: 47 Dương Định Hội, P. Phước Long, TP.HCM

Văn phòng 3: 51 Nguyễn Thị Thập, P. Tân Mỹ, TP. HCM

Copyright © 2025 BẢN ĐỒ SỐ SÀI GÒN All rights reserved.webideas.vn