TP. Thủ Đức đang phát triển mạnh với nhiều khu dân cư và dự án cao cấp, kéo theo nhu cầu xây dựng biệt thự ngày càng tăng. Tuy nhiên, để công trình hợp pháp, đúng quy hoạch và tránh rủi ro xử phạt, xin giấy phép xây dựng biệt thự tại TP. Thủ Đức là thủ tục bắt buộc. Giấy phép không chỉ bảo đảm tính pháp lý mà còn là cơ sở quan trọng cho hoàn công, xin sổ hồng và giao dịch bất động sản sau này.
Giấy phép xây dựng biệt thự là gì? Ý nghĩa tại TP. Thủ Đức
Giấy phép xây dựng biệt thự là văn bản pháp lý do cơ quan có thẩm quyền cấp, cho phép chủ đầu tư được xây mới, sửa chữa, cải tạo hoặc nâng tầng biệt thự theo đúng quy hoạch và tiêu chuẩn kỹ thuật. Đây là thủ tục bắt buộc để công trình hợp pháp, đặc biệt tại TP. Thủ Đức, TP.HCM – nơi quy hoạch đô thị đang phát triển nhanh chóng với nhiều khu dân cư cao cấp.

Việc xin giấy phép xây dựng biệt thự tại TP. Thủ Đức mang nhiều ý nghĩa quan trọng:
- Đối với chủ đầu tư:
- Đảm bảo công trình hợp pháp, tránh bị xử phạt hành chính hoặc buộc tháo dỡ.
- Là cơ sở pháp lý để hoàn công, xin cấp sổ hồng.
- Giúp tăng giá trị pháp lý và thương mại khi chuyển nhượng, mua bán hoặc thế chấp biệt thự.
- Đối với cơ quan quản lý:
- Kiểm soát mật độ xây dựng, chiều cao, kiến trúc để phù hợp với quy hoạch đô thị.
- Ngăn chặn tình trạng xây dựng trái phép, lấn chiếm đất công.
- Bảo đảm mỹ quan đô thị, an toàn hạ tầng kỹ thuật và quyền lợi cộng đồng dân cư.
Có thể thấy, giấy phép xây dựng biệt thự ở TP. Thủ Đức không chỉ là điều kiện pháp lý cần thiết mà còn là “lá chắn” giúp công trình của bạn an toàn, đúng quy hoạch và thuận lợi trong mọi giao dịch bất động sản.
Căn cứ pháp lý khi xin giấy phép xây dựng biệt thự tại TP. Thủ Đức
Thủ tục xin giấy phép xây dựng biệt thự tại TP. Thủ Đức, TP.HCM được thực hiện dựa trên hệ thống văn bản pháp luật cụ thể và minh bạch. Đây là cơ sở quan trọng để cơ quan nhà nước thẩm định, phê duyệt hồ sơ và đảm bảo công trình biệt thự của chủ đầu tư được triển khai hợp pháp.

Một số căn cứ pháp lý chính bao gồm:
- Luật Xây dựng 2014 (đã được sửa đổi, bổ sung năm 2020): quy định điều kiện, trình tự và thẩm quyền cấp giấy phép xây dựng.
- Nghị định 15/2021/NĐ-CP: hướng dẫn chi tiết việc quản lý dự án đầu tư xây dựng, trong đó có thủ tục xin cấp giấy phép xây dựng biệt thự.
- Thông tư 15/2016/TT-BXD: quy định rõ thành phần hồ sơ, mẫu đơn đề nghị cấp phép và yêu cầu đối với bản vẽ thiết kế.
- Quy định của UBND TP.HCM và UBND TP. Thủ Đức: liên quan đến chỉ giới xây dựng, mật độ, tầng cao, quy hoạch chi tiết 1/500, cũng như mức lệ phí cấp giấy phép xây dựng.
Việc nắm rõ căn cứ pháp lý khi xin giấy phép xây dựng biệt thự ở TP. Thủ Đức giúp chủ đầu tư chuẩn bị hồ sơ đầy đủ, đúng quy định, tránh bị trả lại và rút ngắn thời gian cấp phép. Đây là bước quan trọng để công trình biệt thự được xây dựng hợp pháp, an toàn và thuận lợi trong khâu hoàn công sau này.
Đối tượng và trường hợp cần xin giấy phép xây dựng biệt thự
Tại TP. Thủ Đức, TP.HCM, mọi hoạt động xây dựng đều phải tuân thủ đúng quy định để đảm bảo an toàn, trật tự đô thị và phù hợp quy hoạch. Với công trình biệt thự – vốn có giá trị cao và yêu cầu kỹ thuật đặc thù – việc xin giấy phép xây dựng biệt thự gần như bắt buộc trong hầu hết các trường hợp.

>>>>> Xem thêm: Dịch vụ đo vẽ nhà đất tại TP. HCM
Các trường hợp cần xin giấy phép xây dựng biệt thự
- Xây dựng biệt thự mới: bao gồm biệt thự đơn lập, song lập hoặc biệt thự trong các khu dân cư cao cấp.
- Cải tạo, sửa chữa lớn: khi thay đổi kết cấu chịu lực, mở rộng diện tích hoặc thay đổi thiết kế tổng thể.
- Nâng tầng hoặc thay đổi chiều cao: áp dụng cho biệt thự muốn xây thêm tầng hoặc điều chỉnh kiến trúc.
- Biệt thự kết hợp kinh doanh: sử dụng một phần làm văn phòng, homestay, showroom hoặc cơ sở dịch vụ.
Các trường hợp được miễn giấy phép xây dựng biệt thự
Theo quy định của Luật Xây dựng và UBND TP.HCM, một số trường hợp có thể được miễn giấy phép, bao gồm:
- Biệt thự sửa chữa, cải tạo nhỏ không làm thay đổi kết cấu chịu lực, không ảnh hưởng công năng sử dụng.
- Công trình tạm phục vụ thi công trong thời gian ngắn.
- Một số công trình thuộc dự án đã có quyết định phê duyệt quy hoạch chi tiết 1/500 và được cơ quan có thẩm quyền cho phép triển khai mà không cần cấp phép riêng lẻ.
Việc xác định chính xác biệt thự có thuộc diện phải xin giấy phép xây dựng hay không giúp chủ đầu tư chủ động trong kế hoạch, tránh rủi ro pháp lý và bảo đảm tiến độ thi công.
Hồ sơ xin giấy phép xây dựng biệt thự tại TP. Thủ Đức
Để thủ tục xin giấy phép xây dựng biệt thự tại TP. Thủ Đức, TP.HCM được xét duyệt nhanh chóng và hợp pháp, chủ đầu tư cần chuẩn bị đầy đủ các giấy tờ theo quy định pháp luật. Một bộ hồ sơ cơ bản thường bao gồm:

- Đơn đề nghị cấp giấy phép xây dựng: theo mẫu thống nhất của Bộ Xây dựng.
- Giấy chứng nhận quyền sử dụng đất (sổ đỏ): chứng minh quyền sở hữu và sử dụng hợp pháp đối với thửa đất.
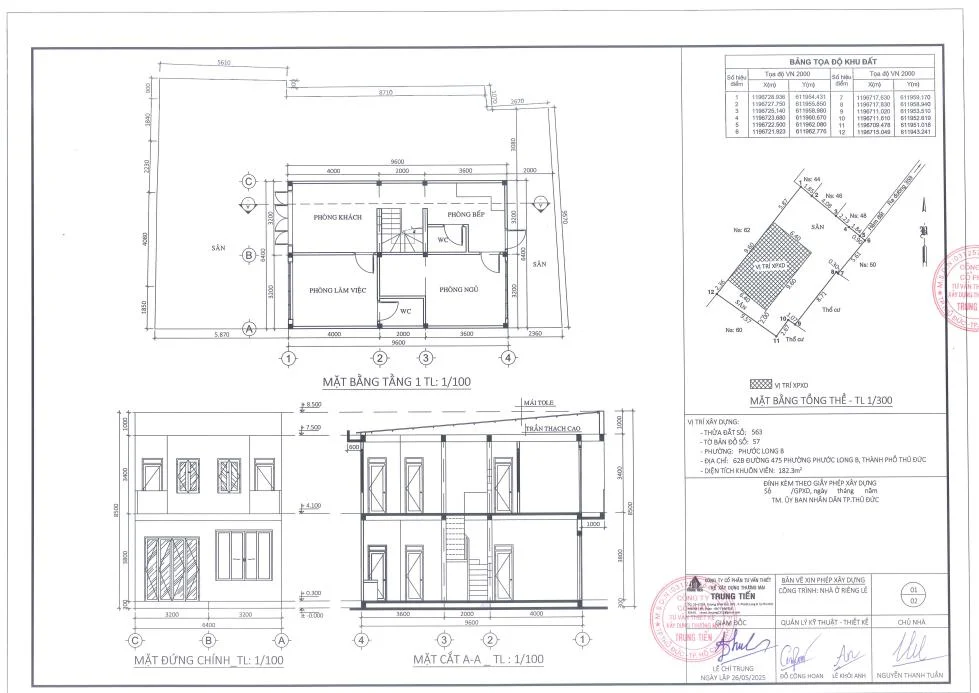
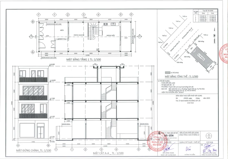
- Bản vẽ thiết kế biệt thự:
- Mặt bằng, mặt đứng, mặt cắt công trình.
- Sơ đồ hệ thống điện, cấp thoát nước, kết nối hạ tầng kỹ thuật.
- Bản vẽ phải có chữ ký của chủ đầu tư và dấu pháp nhân của đơn vị thiết kế đủ năng lực hành nghề.
- Sơ đồ vị trí công trình: thể hiện rõ ranh giới thửa đất, chỉ giới xây dựng, khoảng lùi và vị trí kết nối hạ tầng khu vực.
- Văn bản thẩm duyệt PCCC hoặc báo cáo môi trường (nếu thuộc diện bắt buộc): áp dụng cho biệt thự có quy mô lớn hoặc kết hợp kinh doanh dịch vụ.
Chuẩn bị hồ sơ xin giấy phép xây dựng biệt thự tại TP. Thủ Đức đầy đủ, chính xác ngay từ đầu sẽ giúp chủ đầu tư tiết kiệm thời gian, hạn chế việc bị trả hồ sơ nhiều lần và đảm bảo công trình khởi công đúng tiến độ.
Quy trình xin giấy phép xây dựng biệt thự tại UBND TP. Thủ Đức
Để công trình biệt thự được triển khai đúng pháp luật, chủ đầu tư cần nắm rõ các bước trong quy trình xin giấy phép xây dựng biệt thự tại TP. Thủ Đức, TP.HCM. Thông thường, thủ tục này được thực hiện qua 5 bước cơ bản:

Bước 1: Chuẩn bị hồ sơ
- Chuẩn bị đầy đủ giấy tờ gồm: đơn đề nghị, giấy chứng nhận quyền sử dụng đất, bản vẽ thiết kế, sơ đồ vị trí công trình và các văn bản bổ sung (PCCC, môi trường nếu có).
- Hồ sơ nên được kiểm tra kỹ để tránh thiếu sót.
Bước 2: Nộp hồ sơ
- Chủ đầu tư có thể nộp trực tiếp tại Bộ phận một cửa UBND TP. Thủ Đức.
- Hoặc nộp trực tuyến thông qua Cổng dịch vụ công TP.HCM, giúp tiết kiệm thời gian đi lại.
- Sau khi nộp, sẽ được cấp giấy biên nhận để theo dõi tiến độ.
Bước 3: Thẩm định hồ sơ
- Cơ quan chức năng xem xét tính hợp pháp của hồ sơ, đối chiếu với quy hoạch chi tiết tại khu vực xây dựng biệt thự.
- Trong nhiều trường hợp, cơ quan quản lý có thể tiến hành khảo sát thực địa để kiểm tra thực tế.
Bước 4: Bổ sung, chỉnh sửa hồ sơ (nếu cần)
- Nếu hồ sơ chưa hợp lệ hoặc còn thiếu giấy tờ, UBND sẽ thông báo để chủ đầu tư bổ sung kịp thời.
- Đây là bước thường gây mất thời gian nếu hồ sơ chuẩn bị không kỹ ngay từ đầu.
Bước 5: Nhận giấy phép xây dựng biệt thự
- Khi hồ sơ đã đạt yêu cầu, UBND TP. Thủ Đức sẽ cấp giấy phép xây dựng.
- Giấy phép sẽ quy định rõ: vị trí xây dựng, diện tích, mật độ, tầng cao, kiến trúc và các yêu cầu kỹ thuật.
Chủ đầu tư có thể ủy quyền cho dịch vụ xin giấy phép xây dựng biệt thự trọn gói để đảm bảo quy trình diễn ra thuận lợi, tiết kiệm thời gian và hạn chế sai sót.
Thời gian và lệ phí xin giấy phép xây dựng biệt thự
Khi tiến hành thủ tục xin giấy phép xây dựng biệt thự tại TP. Thủ Đức, TP.HCM, chủ đầu tư cần nắm rõ thời gian xử lý hồ sơ cũng như mức lệ phí để chủ động trong kế hoạch thi công.

Thời gian giải quyết xin giấy phép xây dựng biệt thự tại TP. Thủ Đức, TP.HCM
- Hồ sơ hợp lệ: thường được xử lý trong vòng 15 – 30 ngày làm việc kể từ ngày tiếp nhận.
- Trường hợp cần thẩm định thêm: nếu biệt thự có yêu cầu phê duyệt PCCC, báo cáo môi trường hoặc hồ sơ còn thiếu, thời gian có thể kéo dài hơn.
- Nếu hồ sơ được chuẩn bị kỹ ngay từ đầu, tiến độ xét duyệt sẽ nhanh hơn, tránh phải bổ sung nhiều lần.
Lệ phí xin giấy phép xây dựng biệt thự
Mức phí được quy định rõ bởi UBND TP.HCM, minh bạch và công khai:
- Biệt thự (nhà ở riêng lẻ cao cấp): khoảng 75.000 – 100.000 đồng/giấy phép.
- Biệt thự kết hợp kinh doanh dịch vụ: mức lệ phí có thể cao hơn, tùy vào quy mô và tính chất công trình.
Việc nắm rõ thời gian và lệ phí xin giấy phép xây dựng biệt thự tại TP. Thủ Đức giúp chủ đầu tư chủ động trong tài chính, sắp xếp kế hoạch thi công, tránh bị gián đoạn tiến độ xây dựng.
Khó khăn thường gặp khi tự xin giấy phép xây dựng biệt thự
Thủ tục xin giấy phép xây dựng biệt thự tại TP. Thủ Đức, TP.HCM tuy đã được quy định rõ ràng nhưng trong thực tế, nhiều chủ đầu tư khi tự thực hiện vẫn gặp không ít trở ngại. Một số khó khăn phổ biến gồm:

>>>>> Xem thêm: Dịch vụ đo vẽ cấp đổi sổ tại TP. HCM
- Hồ sơ không đầy đủ hoặc sai mẫu: nhiều chủ đầu tư không nắm rõ thành phần hồ sơ, dẫn đến bị trả lại nhiều lần.
- Thiết kế không phù hợp quy hoạch: bản vẽ biệt thự không đáp ứng yêu cầu về mật độ, chiều cao, chỉ giới xây dựng theo quy hoạch địa phương.
- Thủ tục hành chính phức tạp: cần đi lại nhiều lần giữa các cơ quan chức năng, tốn thời gian và công sức.
- Thiếu hiểu biết về pháp lý: khó khăn trong việc áp dụng đúng các quy định của Luật Xây dựng, Nghị định, Thông tư liên quan.
- Ảnh hưởng tiến độ công trình: việc kéo dài thời gian xin phép khiến kế hoạch thi công bị chậm trễ, gây phát sinh chi phí.
Chính vì vậy, nhiều chủ đầu tư đã lựa chọn dịch vụ xin giấy phép xây dựng biệt thự trọn gói để hạn chế sai sót, tiết kiệm thời gian và đảm bảo tiến độ dự án.
Lợi ích khi sử dụng dịch vụ xin giấy phép xây dựng biệt thự trọn gói
Thay vì tự mình thực hiện các thủ tục phức tạp, nhiều chủ đầu tư lựa chọn dịch vụ xin giấy phép xây dựng biệt thự trọn gói tại TP. Thủ Đức. Đây là giải pháp giúp tiết kiệm thời gian, chi phí và đảm bảo hồ sơ hợp pháp ngay từ đầu.

Những lợi ích nổi bật:
- Hồ sơ hợp pháp, chính xác: được chuẩn bị bởi đội ngũ am hiểu pháp luật xây dựng, quy hoạch và quy trình cấp phép tại Thủ Đức.
- Tiết kiệm thời gian, công sức: khách hàng không cần trực tiếp đi lại nhiều lần, mọi thủ tục được đơn vị dịch vụ thay mặt xử lý.
- Tư vấn toàn diện: hỗ trợ từ khâu khảo sát, thiết kế, quy hoạch đến các yêu cầu về mật độ, chiều cao, chỉ giới, PCCC và môi trường.
- Chi phí minh bạch: báo giá rõ ràng, không phát sinh ngoài hợp đồng.
- Đảm bảo tiến độ: hồ sơ được xử lý nhanh, giấy phép được cấp đúng hẹn, giúp công trình biệt thự khởi công đúng kế hoạch.
- Giảm thiểu rủi ro: tránh được việc hồ sơ bị trả lại hoặc bị xử phạt do thiếu sót trong quá trình chuẩn bị.
Có thể thấy, sử dụng dịch vụ xin giấy phép xây dựng biệt thự trọn gói tại TP. Thủ Đức là lựa chọn tối ưu cho các chủ đầu tư mong muốn sự an toàn pháp lý, nhanh gọn và chuyên nghiệp.
Đơn vị uy tín hỗ trợ xin giấy phép xây dựng biệt thự tại TP. Thủ Đức
Để thủ tục xin giấy phép xây dựng biệt thự tại TP. Thủ Đức, TP.HCM được diễn ra nhanh chóng và hợp pháp, việc lựa chọn một đơn vị dịch vụ uy tín là vô cùng quan trọng. Một trong những đơn vị được nhiều khách hàng tin tưởng là Công ty TNHH Bản Đồ Số Sài Gòn (BK-Saigon).


Ưu điểm nổi bật của BK-Saigon:
- Kinh nghiệm thực tế phong phú: đã xử lý thành công hàng trăm hồ sơ xin giấy phép xây dựng biệt thự, nhà phố, công trình dân dụng tại Thủ Đức và nhiều quận huyện khác.
- Đội ngũ chuyên môn cao: gồm kiến trúc sư, kỹ sư xây dựng và chuyên viên pháp lý am hiểu luật xây dựng, quy hoạch địa phương.
- Dịch vụ trọn gói: từ tư vấn ban đầu, khảo sát hiện trạng, soạn thảo hồ sơ, nộp tại cơ quan chức năng, theo dõi tiến độ đến khi bàn giao giấy phép cho khách hàng.
- Chi phí minh bạch – tiến độ cam kết: báo giá rõ ràng ngay từ đầu, không phát sinh chi phí ngoài hợp đồng, đảm bảo thời gian xử lý nhanh chóng.
- Tư vấn tận tâm: luôn đồng hành cùng khách hàng trong suốt quá trình, giải đáp mọi thắc mắc về quy định pháp lý, quy hoạch, thiết kế biệt thự.
Với uy tín và chuyên nghiệp, BK-Saigon là lựa chọn tin cậy giúp chủ đầu tư yên tâm khi cần xin giấy phép xây dựng biệt thự tại TP. Thủ Đức, bảo đảm công trình được khởi công đúng tiến độ và hợp pháp.
Thông tin liên hệ dịch vụ xin giấy phép xây dựng biệt thự tại TP. Thủ Đức
Nếu bạn đang có nhu cầu xin giấy phép xây dựng biệt thự tại TP. Thủ Đức, TP.HCM, hãy liên hệ ngay với Công ty TNHH Bản Đồ Số Sài Gòn (BK-Saigon) để được tư vấn và hỗ trợ nhanh chóng. Với nhiều năm kinh nghiệm xử lý hồ sơ xây dựng biệt thự, BK-Saigon cam kết mang đến dịch vụ uy tín – chuyên nghiệp – chi phí minh bạch.

>>>>> Xem thêm: Dịch vụ xin giấy phép xây dựng tại TP. HCM
Thông tin liên hệ:
- Website: https://phaplynhadathcm.vn
- Hotline/Zalo/Viber: 0977 960 616 (Mr. Hoan)
- Email: bandososaigon@gmail.com
Hệ thống văn phòng tại TP.HCM:
- Trụ sở chính: 430 Nguyễn Xiển, P. Long Bình, TP. HCM
- Văn phòng 1: 29 Đồng Văn Cống, P. Cát Lái, TP. HCM
- Văn phòng 2: 47 Dương Đình Hội, P. Phước Long, TP. HCM
- Văn phòng 3: 51 Nguyễn Thị Thập, P. Tân Phú, TP. HCM
Hãy liên hệ ngay hôm nay để nhận báo giá chi tiết và được tư vấn miễn phí. BK-Saigon sẽ đồng hành cùng bạn trong toàn bộ quy trình, giúp thủ tục xin giấy phép xây dựng biệt thự tại TP. Thủ Đức diễn ra thuận lợi, nhanh chóng và đúng pháp luật.