TP.HCM là trung tâm kinh tế lớn, nơi nhu cầu xây dựng nhà ở, biệt thự, công trình thương mại – dịch vụ ngày càng tăng cao. Tuy nhiên, để công trình hợp pháp, an toàn và đúng quy hoạch, thủ tục xin giấy phép xây dựng là bắt buộc. Vì vậy, nhiều khách hàng quan tâm đến báo giá xin giấy phép xây dựng tại TP.HCM để nắm rõ chi phí, hồ sơ, quy trình trước khi khởi công, giúp tiết kiệm thời gian và hạn chế rủi ro pháp lý.
Giấy phép xây dựng là gì? Ý nghĩa với chủ đầu tư tại TP.HCM
Giấy phép xây dựng là văn bản pháp lý do cơ quan nhà nước có thẩm quyền cấp, cho phép chủ đầu tư được tiến hành xây mới, cải tạo, sửa chữa hoặc nâng tầng công trình theo đúng quy hoạch và tiêu chuẩn kỹ thuật. Đây là thủ tục bắt buộc đối với phần lớn công trình trên địa bàn TP.HCM, từ trung tâm đến các quận ngoại thành.

Việc thực hiện đúng thủ tục và nắm rõ báo giá xin giấy phép xây dựng tại TP.HCM mang lại nhiều ý nghĩa quan trọng:
- Đối với chủ đầu tư:
- Bảo đảm công trình hợp pháp, tránh bị xử phạt hành chính hoặc buộc tháo dỡ.
- Là cơ sở pháp lý quan trọng để hoàn công, xin cấp sổ hồng.
- Thuận lợi hơn trong việc mua bán, chuyển nhượng hoặc thế chấp bất động sản.
- Đối với cơ quan quản lý:
- Giúp kiểm soát trật tự xây dựng, ngăn ngừa tình trạng xây dựng trái phép.
- Đảm bảo sự phát triển đô thị đồng bộ, an toàn và đúng quy hoạch.
- Tạo nền tảng cho việc quản lý hạ tầng, môi trường và phòng cháy chữa cháy.
Có thể thấy, giấy phép xây dựng không chỉ là thủ tục bắt buộc mà còn mang lại nhiều lợi ích lâu dài, cả cho chủ đầu tư lẫn cộng đồng dân cư tại TP.HCM.
Căn cứ pháp lý khi xin giấy phép xây dựng tại TP.HCM
Thủ tục xin giấy phép xây dựng tại TP.HCM được thực hiện dựa trên hệ thống pháp luật minh bạch, giúp cả cơ quan quản lý lẫn chủ đầu tư tuân thủ đúng quy định. Việc nắm rõ căn cứ pháp lý sẽ giúp hồ sơ dễ được chấp thuận và tránh tình trạng bị trả lại.

>>>>> Xem thêm: Xin giấy phép xây dựng tại Tp. HCM
Một số văn bản quan trọng gồm:
- Luật Xây dựng 2014 (sửa đổi, bổ sung năm 2020): quy định chi tiết nguyên tắc, điều kiện và thẩm quyền cấp giấy phép xây dựng.
- Nghị định 15/2021/NĐ-CP: hướng dẫn quản lý dự án đầu tư xây dựng, trong đó có thủ tục cấp giấy phép.
- Thông tư 15/2016/TT-BXD: quy định rõ mẫu đơn, thành phần hồ sơ và yêu cầu đối với bản vẽ thiết kế.
- Quy định của UBND TP.HCM và UBND các quận/huyện: quy định cụ thể về quy hoạch chi tiết, mật độ xây dựng, chỉ giới đường đỏ, khoảng lùi và lệ phí cấp phép.
Việc tuân thủ đúng căn cứ pháp lý ngay từ đầu sẽ giúp chủ đầu tư tiết kiệm thời gian, chi phí, đồng thời bảo đảm công trình xây dựng tại TP.HCM hợp pháp, an toàn và thuận lợi cho các thủ tục sau này như hoàn công, cấp sổ hồng hay chuyển nhượng.
Đối tượng cần xin giấy phép xây dựng tại TP.HCM
Tại một thành phố phát triển nhanh như TP.HCM, mọi hoạt động xây dựng đều phải tuân thủ quy định để đảm bảo trật tự đô thị, an toàn công trình và quyền lợi hợp pháp cho chủ đầu tư. Vì vậy, phần lớn công trình trước khi khởi công đều cần thực hiện thủ tục xin giấy phép xây dựng.

Các công trình bắt buộc phải xin giấy phép xây dựng
- Nhà ở riêng lẻ: xây mới, nâng tầng, cải tạo làm thay đổi kết cấu chịu lực.
- Biệt thự và nhà phố cao cấp: xây mới hoặc cải tạo quy mô lớn.
- Công trình dân dụng: văn phòng, nhà cho thuê, căn hộ dịch vụ.
- Công trình thương mại – dịch vụ: khách sạn, cửa hàng, showroom, trung tâm thương mại.
- Công trình công nghiệp – hạ tầng kỹ thuật: nhà xưởng, kho bãi, bãi giữ xe, trạm hạ tầng.
Các trường hợp được miễn giấy phép xây dựng
Theo Luật Xây dựng và quy định của UBND TP.HCM, một số trường hợp được miễn giấy phép gồm:
- Sửa chữa, cải tạo nhỏ, không làm thay đổi kết cấu chịu lực và công năng.
- Công trình tạm phục vụ thi công chính.
- Một số dự án đã có quyết định phê duyệt quy hoạch chi tiết 1/500.
Hồ sơ xin giấy phép xây dựng tại TP.HCM
Để thủ tục xin giấy phép xây dựng tại TP.HCM được tiếp nhận và xét duyệt thuận lợi, chủ đầu tư cần chuẩn bị hồ sơ đầy đủ theo quy định pháp luật. Một bộ hồ sơ cơ bản bao gồm:

- Đơn đề nghị cấp giấy phép xây dựng: theo mẫu do Bộ Xây dựng ban hành.
- Giấy chứng nhận quyền sử dụng đất (sổ đỏ): chứng minh quyền sở hữu và sử dụng hợp pháp của thửa đất.
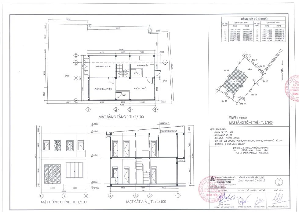
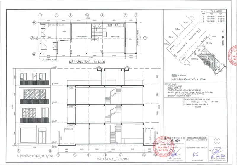
- Bản vẽ thiết kế công trình:
- Mặt bằng, mặt cắt, mặt đứng.
- Sơ đồ hệ thống cấp – thoát nước, điện, hạ tầng kỹ thuật.
- Có chữ ký của chủ đầu tư và dấu pháp nhân của đơn vị thiết kế đủ năng lực hành nghề.
- Sơ đồ vị trí công trình: thể hiện rõ ranh giới thửa đất, chỉ giới xây dựng, khoảng lùi, kết nối hạ tầng khu vực.
- Văn bản thẩm duyệt PCCC hoặc báo cáo môi trường (nếu công trình thuộc diện bắt buộc).
Chuẩn bị hồ sơ xin giấy phép xây dựng tại TP.HCM càng đầy đủ, chính xác thì quá trình thẩm định càng nhanh, hạn chế việc bị trả lại và giúp công trình khởi công đúng tiến độ.
Quy trình xin giấy phép xây dựng tại TP.HCM
Để công trình được khởi công hợp pháp, chủ đầu tư cần nắm rõ các bước trong quy trình xin giấy phép xây dựng tại TP.HCM. Thông thường, thủ tục được thực hiện theo 5 bước cơ bản sau:

Bước 1: Chuẩn bị hồ sơ
- Gồm đơn đề nghị, giấy chứng nhận quyền sử dụng đất, bản vẽ thiết kế, sơ đồ vị trí công trình và các văn bản bổ sung (PCCC, môi trường nếu có).
- Hồ sơ càng đầy đủ, chính xác thì quy trình xét duyệt càng nhanh.
Bước 2: Nộp hồ sơ
- Nộp trực tiếp tại Bộ phận một cửa UBND quận/huyện nơi có công trình.
- Hoặc nộp trực tuyến qua Cổng dịch vụ công TP.HCM để tiết kiệm thời gian.
- Sau khi nộp, chủ đầu tư sẽ nhận giấy biên nhận hồ sơ.
Bước 3: Thẩm định hồ sơ
- Cơ quan chức năng xem xét tính pháp lý của hồ sơ và đối chiếu với quy hoạch chi tiết.
- Có thể tiến hành khảo sát thực địa tại công trình để đảm bảo tính chính xác.
Bước 4: Bổ sung, chỉnh sửa hồ sơ (nếu cần)
- Nếu hồ sơ chưa đúng quy định hoặc thiếu giấy tờ, UBND sẽ thông báo để chủ đầu tư kịp thời bổ sung.
- Đây là bước thường khiến nhiều người mất thời gian nếu hồ sơ ban đầu không chuẩn.
Bước 5: Nhận giấy phép xây dựng
- Khi hồ sơ đạt yêu cầu, UBND quận/huyện sẽ cấp giấy phép xây dựng.
- Giấy phép quy định rõ vị trí, diện tích, mật độ, chiều cao, kiến trúc và các yêu cầu kỹ thuật cần tuân thủ.
Để tránh sai sót, nhiều chủ đầu tư tại TP.HCM thường lựa chọn dịch vụ xin giấy phép xây dựng trọn gói, vừa tiết kiệm thời gian vừa đảm bảo hồ sơ hợp pháp ngay từ đầu.
Thời gian xin giấy phép xây dựng tại TP.HCM
Một trong những vấn đề được nhiều chủ đầu tư quan tâm khi thực hiện thủ tục xin giấy phép xây dựng tại TP.HCM chính là thời gian xử lý hồ sơ. Việc nắm rõ quy định này giúp chủ đầu tư chủ động trong kế hoạch thi công và hạn chế chậm tiến độ.

>>>>> Xem thêm: Dịch vụ đo vẽ nhà đất tại Tp. HCM
Thời gian giải quyết theo quy định
- Hồ sơ hợp lệ: thông thường được giải quyết trong khoảng 15 – 30 ngày làm việc kể từ ngày tiếp nhận.
- Công trình cần thẩm định thêm: nếu có yêu cầu phê duyệt PCCC, báo cáo môi trường hoặc hồ sơ còn thiếu, thời gian có thể kéo dài hơn.
- Gia hạn giấy phép: trường hợp chưa kịp khởi công trong thời gian hiệu lực, chủ đầu tư có thể xin gia hạn thêm theo quy định.
Lưu ý quan trọng xin giấy phép xây dựng tại TP.HCM
- Hồ sơ càng đầy đủ, chính xác thì thời gian cấp phép càng nhanh.
- Chủ đầu tư nên theo dõi tiến độ tại Bộ phận một cửa hoặc qua Cổng dịch vụ công TP.HCM để kịp thời bổ sung nếu có yêu cầu.
- Việc thuê dịch vụ xin giấy phép xây dựng giúp rút ngắn thời gian xử lý, vì hồ sơ được chuẩn bị bài bản và hạn chế sai sót.
Như vậy, nếu chuẩn bị tốt hồ sơ và tuân thủ đúng quy định, thời gian xin giấy phép xây dựng tại TP.HCM sẽ diễn ra nhanh chóng, giúp công trình khởi công đúng kế hoạch.
Báo giá xin giấy phép xây dựng tại TP.HCM
Chi phí là vấn đề được nhiều chủ đầu tư quan tâm khi thực hiện thủ tục xin giấy phép xây dựng tại TP.HCM. Việc nắm rõ mức phí giúp bạn chủ động về tài chính và tránh phát sinh chi phí ngoài dự kiến.

Lệ phí nhà nước theo quy định
- Nhà ở riêng lẻ: khoảng 50.000 – 100.000 đồng/giấy phép.
- Biệt thự, công trình dân dụng lớn: khoảng 75.000 – 150.000 đồng/giấy phép.
- Công trình thương mại – dịch vụ, công nghiệp: lệ phí sẽ cao hơn, tùy theo quy mô và loại hình công trình.
- Mức phí này do UBND TP.HCM ban hành và được niêm yết công khai tại các cơ quan chức năng.
Chi phí dịch vụ hỗ trợ (nếu có)
Ngoài lệ phí nhà nước, nếu chủ đầu tư lựa chọn dịch vụ xin giấy phép xây dựng trọn gói, sẽ có thêm chi phí dịch vụ. Khoản phí này phụ thuộc vào:
- Loại công trình (nhà phố, biệt thự, công trình thương mại).
- Quy mô, diện tích, mức độ phức tạp của hồ sơ.
- Yêu cầu bổ sung về PCCC, môi trường, quy hoạch chi tiết.
Lợi ích khi biết trước báo giá
- Giúp chủ đầu tư dự trù chi phí chính xác.
- Tránh tình trạng bị báo giá cao bất thường hoặc phát sinh ngoài hợp đồng.
- Lựa chọn được đơn vị dịch vụ uy tín, minh bạch về giá.
Với báo giá xin giấy phép xây dựng tại TP.HCM rõ ràng và minh bạch, chủ đầu tư có thể yên tâm triển khai công trình mà không lo rủi ro tài chính.
Yếu tố ảnh hưởng đến chi phí xin giấy phép xây dựng tại TP.HCM
Mức báo giá xin giấy phép xây dựng tại TP.HCM có thể khác nhau tùy từng trường hợp. Sự chênh lệch này phụ thuộc vào nhiều yếu tố cụ thể:

Loại công trình
- Nhà ở riêng lẻ, nhà phố: thường có chi phí thấp nhất.
- Biệt thự, công trình dân dụng lớn: yêu cầu hồ sơ phức tạp hơn, chi phí cao hơn.
- Công trình thương mại – dịch vụ, công nghiệp: thường cần nhiều thủ tục bổ sung (PCCC, môi trường), nên chi phí sẽ cao hơn.
Quy mô và diện tích xây dựng
- Công trình càng lớn, nhiều tầng, diện tích sàn rộng thì hồ sơ thiết kế càng phức tạp → chi phí cao hơn.
Vị trí xây dựng
- Quận trung tâm (Quận 1, Quận 3, Quận 5…): quy định chặt chẽ hơn, hồ sơ thường khó được phê duyệt, chi phí dịch vụ có thể cao hơn.
- Ngoại thành (Nhà Bè, Bình Chánh, Hóc Môn…): thủ tục đơn giản hơn, chi phí thấp hơn.
Hồ sơ pháp lý đất đai
- Thửa đất có sổ đỏ đầy đủ, nằm trong khu vực quy hoạch rõ ràng: chi phí thấp, hồ sơ nhanh được duyệt.
- Đất trong diện quy hoạch, chưa tách thửa, chưa hoàn thiện pháp lý: cần xử lý bổ sung → chi phí phát sinh.
Yêu cầu bổ sung khác
- Công trình có quy mô lớn, kết hợp kinh doanh, cần phê duyệt PCCC, môi trường sẽ làm tăng chi phí.
Việc hiểu rõ yếu tố ảnh hưởng đến chi phí xin giấy phép xây dựng tại TP.HCM giúp chủ đầu tư dự trù ngân sách chính xác, tránh bị động khi triển khai hồ sơ.
Lợi ích khi sử dụng dịch vụ xin giấy phép xây dựng trọn gói tại TP.HCM
Thay vì tự mình thực hiện thủ tục phức tạp, nhiều chủ đầu tư đã chọn dịch vụ xin giấy phép xây dựng trọn gói tại TP.HCM. Đây là giải pháp tối ưu giúp tiết kiệm thời gian, chi phí và đảm bảo hồ sơ hợp pháp ngay từ đầu.

Những lợi ích nổi bật:
- Hồ sơ chính xác, hợp pháp: được chuẩn bị bởi đội ngũ am hiểu pháp luật xây dựng, quy hoạch và quy trình xét duyệt tại các quận/huyện.
- Tiết kiệm thời gian, công sức: khách hàng không cần đi lại nhiều lần; đơn vị dịch vụ sẽ thay mặt xử lý toàn bộ thủ tục.
- Tư vấn toàn diện: từ quy hoạch, mật độ, chiều cao công trình đến các yêu cầu về PCCC, môi trường.
- Chi phí minh bạch: báo giá rõ ràng ngay từ đầu, tránh phát sinh ngoài hợp đồng.
- Đảm bảo tiến độ thi công: hồ sơ được duyệt nhanh chóng, giúp công trình khởi công đúng kế hoạch.
- Giảm thiểu rủi ro: tránh bị trả hồ sơ nhiều lần hoặc bị xử phạt do thiếu sót về pháp lý.
Đơn vị uy tín hỗ trợ xin giấy phép xây dựng tại TP.HCM
Để thủ tục xin giấy phép xây dựng tại TP.HCM diễn ra nhanh chóng, đúng pháp luật và hạn chế rủi ro, việc chọn một đơn vị dịch vụ uy tín là rất quan trọng. Một trong những địa chỉ được nhiều khách hàng tin tưởng chính là Công ty TNHH Bản Đồ Số Sài Gòn (BK-Saigon).

>>>>> Xem thêm: Dịch vụ đo vẽ hoàn công nhà ở tại Tp. HCM
Ưu điểm nổi bật của BK-Saigon:
- Kinh nghiệm thực tế phong phú: đã xử lý thành công hàng trăm hồ sơ xin giấy phép xây dựng ở tất cả các quận/huyện TP.HCM.
- Đội ngũ chuyên môn cao: gồm kiến trúc sư, kỹ sư xây dựng, chuyên viên pháp lý am hiểu quy định địa phương và quy hoạch đô thị.
- Dịch vụ trọn gói: từ khảo sát, tư vấn, chuẩn bị hồ sơ, nộp tại cơ quan chức năng, theo dõi tiến độ cho đến khi bàn giao giấy phép.
- Chi phí minh bạch, tiến độ cam kết: báo giá rõ ràng ngay từ đầu, không phát sinh chi phí ngoài hợp đồng.
- Tư vấn tận tâm: luôn đồng hành cùng khách hàng, hỗ trợ giải đáp mọi vướng mắc liên quan đến thủ tục xây dựng.
Với uy tín và chuyên nghiệp, BK-Saigon là lựa chọn đáng tin cậy cho chủ đầu tư có nhu cầu xin giấy phép xây dựng tại TP.HCM, giúp công trình được triển khai hợp pháp, an toàn và đúng tiến độ.
Thông tin liên hệ dịch vụ xin giấy phép xây dựng tại TP.HCM
Nếu bạn đang có nhu cầu xin giấy phép xây dựng tại TP.HCM và muốn biết báo giá chi tiết, hãy liên hệ ngay với Công ty TNHH Bản Đồ Số Sài Gòn (BK-Saigon) để được tư vấn miễn phí và hỗ trợ nhanh chóng. Với nhiều năm kinh nghiệm xử lý hồ sơ tại tất cả các quận/huyện, BK-Saigon cam kết mang đến dịch vụ uy tín – minh bạch – đúng tiến độ.


Thông tin liên hệ:
- Website: https://phaplynhadathcm.vn
- Hotline/Zalo/Viber: 0977 960 616 (Mr. Hoan)
- Email: bandososaigon@gmail.com
Hệ thống văn phòng tại TP.HCM:
- Trụ sở chính: 430 Nguyễn Xiển, Phường Long Bình, TP. HCM
- Văn phòng 1: 29 Đồng Văn Cống, Phường Cát Lái, TP. HCM
- Văn phòng 2: 47 Dương Đình Hội, Phường Phước Long, TP. HCM
- Văn phòng 3: 51 Nguyễn Thị Thập, Phường Tân Phú, TP. HCM
- Văn phòng 4: 52 Đường số 30, Phường An Nhơn, TP. HCM
Liên hệ ngay hôm nay để nhận báo giá xin giấy phép xây dựng tại TP.HCM minh bạch, chi tiết và triển khai thủ tục nhanh chóng, giúp công trình của bạn khởi công đúng kế hoạch và hợp pháp